ル・シヤージュ神宮前(物件No:92832693)
ル・シヤージュ神宮前は、渋谷区神宮前にあるSOHO物件です。最寄り駅は、JR線の原宿駅、東京メトロ副都心線の明治神宮前、東京メトロ千代田線の表参道駅です。2004年竣工で、エレベーターは1基あります。駐車場が利用可能な、渋谷区神宮前のSOHO物件です。
| 階 | 面積 | 賃料 | 共益費 | 敷金 | 入居日 | お問合せ | お気に入り | |
|---|---|---|---|---|---|---|---|---|
|
4F
(401区画) |
17.04 坪 56.32 ㎡ |
※現在空室情報はございません |
※現在空室情報は 確認する |
|||||
-
物件情報
- 住所
- 東京都渋谷区神宮前3-18-42
- 最寄り駅
-
東京メトロ副都心線
明治神宮前〈原宿〉駅
徒歩6分
東京メトロ千代田線 明治神宮前〈原宿〉駅 徒歩7分
JR山手線 原宿駅 徒歩8分
東京メトロ千代田線 表参道駅 徒歩8分
- 竣工
- 2004年
- 耐震
- 新耐震基準
- 規模・構造
- B1F - 5F 鉄筋コンクリート造
-
設備情報
- トイレ
- -
- 床
- -
- 空調
- -
- セキュリティ
- -
- 駐車場
- 有
- 会議室
- -
- エレベーター
- 1基
- 天井高
- -
-
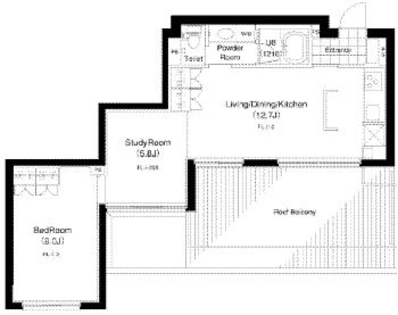
間取り図
-
近隣相場情報
神宮前3丁目(20坪以下)の相場
19822 円 (坪)
※ビルサク調べ
周辺施設情報
| コンビニ |
ローソン/神宮前三丁目/350m(徒歩5分) デイリーヤマザキ/神宮前店/450m(徒歩6分) |
|---|---|
| 郵便局/銀行 |
三井住友銀行/ATM 南青山三丁目出張所/[営業時間] [ATM]平日 8:00~21:30 土曜 8:00~21:30 日曜 10:00~21:00/650m(徒歩9分) みずほ銀行/ATM 神宮前三丁目出張所/[営業時間] [ATM]平日 7:00~24:00 土曜日 8:00~21:00 日曜日 8:00~21:00 祝日・振替休日 8:00~21:00/350m(徒歩4分) |
| 飲食店 |
BE:SIDE 表参道店/11時00分~18時00分/400m(徒歩5分) カフェリトルマジック原宿店/11時00分~18時00分/350m(徒歩4分) |
| カフェ |
TAKE-AWAY/9時00分~17時00分/300m(徒歩4分) Cafe Hooky/12時00分~18時00分/200m(徒歩2分) |
| コインパーキング |
NBパーキング/表参道第2 12台 エコロパーク/神宮前コートC [料金] 全日 終日 15分300円 [最大料金] 全日 24時間 最大2600円 [台数]3 |
周辺地図
ル・シヤージュ神宮前は、渋谷区神宮前にあるSOHO物件です。最寄り駅は、JR線の原宿駅、東京メトロ副都心線の明治神宮前、東京メトロ千代田線の表参道駅です。2004年竣工で、エレベーターは1基あります。駐車場が利用可能な、渋谷区神宮前のSOHO物件です。
全フロア情報
更新日:2025年12月11日
| 階 | 面積 | 賃料 | 共益費 | 敷金 | 入居日 | お問合せ | お気に入り | |
|---|---|---|---|---|---|---|---|---|
|
2F
(205区画) |
10.02 坪 33.14 ㎡ |
※現在空室情報はございません |
※現在空室情報は 確認する |
|||||
|
3F
(304区画) |
10.02 坪 33.14 ㎡ |
※現在空室情報はございません |
※現在空室情報は 確認する |
|||||
|
3F
(305区画) |
10.02 坪 33.14 ㎡ |
※現在空室情報はございません |
※現在空室情報は 確認する |
|||||
|
4F
(401区画) |
17.04 坪 56.32 ㎡ |
※現在空室情報はございません |
※現在空室情報は 確認する |
|||||
お問い合わせ
似た条件の物件はこちら
-
渋谷3丁目ビル
東京都渋谷区渋谷3-18-4
坪数:17.43 坪
坪単価:26,000 円(坪)
-
三貴ビル
東京都渋谷区渋谷2-12-12
坪数:13.8 坪
坪単価:22,000 円(坪)
-
倉島渋谷ビル
東京都渋谷区渋谷2-3-8
坪数:20.53 坪
坪単価:18,000 円(坪)
-
若草ビルB館
東京都渋谷区渋谷1-1-16
坪数:20.35 坪
坪単価:18,000 円(坪)
-
フォーラム神宮前
東京都渋谷区神宮前4-6-2
坪数:13.16 坪
坪単価:22,796 円(坪)
-
アクシーズ7号館ビル
東京都渋谷区渋谷3-17-4
坪数:18 坪
坪単価:20,000 円(坪)
-
越一ビル
東京都渋谷区神宮前6-19-16
坪数:19 坪
坪単価:22,000 円(坪)
-
若葉ビル
東京都渋谷区道玄坂1-22-10
坪数:16.1 坪
坪単価:15,300 円(坪)
-
ナルセビルディング
東京都渋谷区渋谷3-18-7
坪数:18.5 坪
坪単価:27,500 円(坪)
-
宮益坂ビルディング
東京都渋谷区渋谷2-19-15
坪数:18.11 坪
坪単価:31,309 円(坪)