龍公亭ビル(物件No:92597582)
龍公亭ビルは、新宿区神楽坂にある地下1階、地上7階建ての賃貸事務所です。最寄駅はJR中央・総武線の飯田橋駅から徒歩3分、東京メトロ東西線の飯田橋駅から徒歩3分、東京メトロ有楽町線の有楽町駅から徒歩3分、東京メトロ南北線の飯田橋駅から徒歩3分です。2008年3月竣工の鉄骨造です。設備としては、エレベーターが1基あります。トイレは室内男女別です。耐震設計となっている、複数路線利用可能なアクセスの良い新宿区神楽坂の賃貸オフィスです。
-
物件情報
-
設備情報
- トイレ
- 室内男女別
- 床
- -
- 空調
- -
- セキュリティ
- -
- 駐車場
- -
- 会議室
- -
- エレベーター
- 1基
- 天井高
- -
-
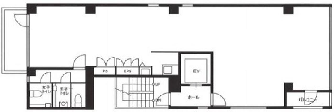
間取り図
-
近隣相場情報
神楽坂3丁目(30~40坪)の相場
16656 円 (坪)
※ビルサク調べ
周辺施設情報
| コンビニ |
ファミリーマート/神楽坂三丁目店/29m(徒歩1分) セブンイレブン/新宿神楽坂3丁目/97m(徒歩1分) |
|---|---|
| 郵便局/銀行 |
セブン銀行/新宿神楽坂3丁目店/[営業時間]24時間営業/97m(徒歩1分) イーネット/ファミリーマート神楽坂三丁目/[営業時間]0:00~24:00/29m(徒歩1分) |
| 飲食店 |
カルボナーラ専門店 HASEGAWA/11時30分~14時30分 17時30分~21時00分/59m(徒歩1分) 神楽坂五十番 総本店/10時30分~21時00分/110m(徒歩2分) |
| カフェ |
上島珈琲店/神楽坂店/[営業時間]平日 9:00~20:00 / 土日祝 8:00~20:00/58m(徒歩1分) ベローチェ/神楽坂店/[営業時間]7:00~23:00/170m(徒歩2分) |
| コインパーキング |
三井のリパーク/神楽坂3丁目 [料金] [料金]全日 00:00~24:00 15分/330 [最大料金] [料金]全日 00:00~24:00 15分/330円 [台数]1 NPC24H/神楽坂三丁目 [料金] [料金]通常料金 20分/300円 [最大料金] [料金]最大料金 12時間毎 2700円 全日夜間 500円(19時~8時) [台数]6 |
周辺地図
龍公亭ビルは、新宿区神楽坂にある地下1階、地上7階建ての賃貸事務所です。最寄駅はJR中央・総武線の飯田橋駅から徒歩3分、東京メトロ東西線の飯田橋駅から徒歩3分、東京メトロ有楽町線の有楽町駅から徒歩3分、東京メトロ南北線の飯田橋駅から徒歩3分です。2008年3月竣工の鉄骨造です。設備としては、エレベーターが1基あります。トイレは室内男女別です。耐震設計となっている、複数路線利用可能なアクセスの良い新宿区神楽坂の賃貸オフィスです。
全フロア情報
更新日:2026年1月30日
| 階 | 面積 | 賃料 | 共益費 | 敷金 | 入居日 | お問合せ | お気に入り | |
|---|---|---|---|---|---|---|---|---|
| 3F |
31.16 坪 103.01 ㎡ |
※現在空室情報はございません |
※現在空室情報は 確認する |
|||||
| 4F |
31.16 坪 103.01 ㎡ |
515,000 円 16,528 円(坪) |
40,000 円 1,284 円(坪) |
3,090,000 円 6 ヶ月 |
相談 |
|
|
|
| 5F |
31.16 坪 103.01 ㎡ |
※現在空室情報はございません |
※現在空室情報は 確認する |
|||||
| 6F |
31.16 坪 103.01 ㎡ |
※現在空室情報はございません |
※現在空室情報は 確認する |
|||||
お問い合わせ
似た条件の物件はこちら
-
生泉市ヶ谷ビル
東京都新宿区市谷砂土原町3-4-1
坪数:34.98 坪
坪単価:10,997 円(坪)
-
シティ市ヶ谷
東京都新宿区市谷田町2-38-3
坪数:26.86 坪
坪単価:14,000 円(坪)
-
THE GATE ICHIGAYA
東京都新宿区市谷田町3-6
坪数:23.96 坪
坪単価:22,000 円(坪)
-
江戸川橋東誠ビル
東京都新宿区山吹町337
坪数:33.62 坪
坪単価:13,000 円(坪)
-
セントヒルズ神楽坂
東京都新宿区西五軒町3-18
坪数:25.07 坪
坪単価:9,972 円(坪)
-
日信ビル
東京都新宿区余丁町12-33
坪数:25.64 坪
坪単価:7,020 円(坪)
-
トゥービル
東京都新宿区市谷田町3-2
坪数:21.5 坪
坪単価:11,628 円(坪)
-
榎町ビル
東京都新宿区榎町34-3
坪数:26.39 坪
坪単価:8,715 円(坪)
-
新小川町ビル
東京都新宿区新小川町9-20
坪数:28.83 坪
坪単価:13,077 円(坪)
-
メイゾン神楽坂
東京都新宿区神楽坂6-76
坪数:25.12 坪
坪単価:22,727 円(坪)
関連エリアから探す
- 赤城下町
- 市谷加賀町
- 揚場町
- 河田町
- 市谷砂土原町
- 市谷左内町
- 市谷田町
- 市谷台町
- 市谷長延寺町
- 市谷仲之町
- 市谷八幡町
- 市谷船河原町
- 市谷本村町
- 市谷薬王寺町
- 市谷柳町
- 市谷山伏町
- 岩戸町
- 榎町
- 改代町
- 神楽河岸
- 神楽坂
- 北町
- 北山伏町
- 細工町
- 下宮比町
- 白銀町
- 新小川町
- 水道町
- 箪笥町
- 築地町
- 筑土八幡町
- 津久戸町
- 天神町
- 富久町
- 中里町
- 中町
- 納戸町
- 西五軒町
- 二十騎町
- 払方町
- 東榎町
- 東五軒町
- 袋町
- 南町
- 南山伏町
- 山吹町
- 矢来町
- 横寺町
- 余丁町
- 住吉町