雅ビル(物件No:92569790)
雅ビルは渋谷区千駄ヶ谷にある地下1階、地上4階建ての賃貸事務所です。最寄駅は東京メトロ副都心線の北参道駅から徒歩4分、JR山手線の原宿駅から徒歩10分です。1992年6月竣工の鉄筋コンクリート造です。設備としては、エレベーターが1基あります。トイレは室内男女共用です。耐震設計となっている、ビジネス街として人気のある渋谷区千駄ヶ谷の賃貸オフィスです。
| 階 | 面積 | 賃料 | 共益費 | 敷金 | 入居日 | お問合せ | お気に入り |
|---|---|---|---|---|---|---|---|
| 3F |
28.64 坪 94.68 ㎡ |
430,000 円 15,014 円(坪) |
57,280 円 2,000 円(坪) |
2,580,000 円 6 ヶ月 |
相談 |
|
|
| 階 | 面積 | 賃料 | 共益費 | 敷金 | 入居日 | お問合せ | お気に入り |
|---|---|---|---|---|---|---|---|
| 3F |
28.64 坪 94.68 ㎡ |
430,000 円 15,014 円(坪) |
57,280 円 2,000 円(坪) |
2,580,000 円 6 ヶ月 |
相談 |
|
|
-
物件情報
-
設備情報
- トイレ
- 室内男女共用
- 床
- -
- 空調
- -
- セキュリティ
- -
- 駐車場
- -
- 会議室
- -
- エレベーター
- 1基
- 天井高
- -
-
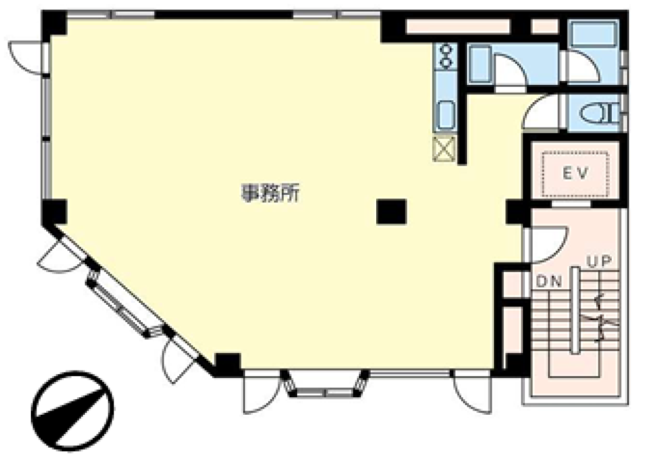
間取り図
-
近隣相場情報
千駄ヶ谷3丁目(20~30坪)の相場
18095 円 (坪)
※ビルサク調べ
周辺施設情報
| コンビニ |
セブンイレブン/渋谷千駄ヶ谷1丁目/550m(徒歩7分) ミニストップ/千駄ヶ谷3丁目店/200m(徒歩3分) |
|---|---|
| 郵便局/銀行 |
ローソン銀行/千駄ヶ谷二丁目共同出張所/[営業時間]24時間 サービス提供時間は、設置先の営業時間に準じます(設置している店舗等の営業時間により、一部時間帯でご利用いただけない場合があります) [取扱]本人確認サービス対応、ATMチャージ/ATM払戻サービス、スマホATM(QR入出金)、海外発行カード/海外送金、視覚障害者対応 [備考]当/550m(徒歩7分) 信用組合/第一勧業信用組合 千駄ケ谷支店/600m(徒歩8分) |
| 飲食店 |
ティースタンド ナナ/11時00分~19時00分/230m(徒歩3分) へぎそば 昆 北参道店/11時30分~14時30分、17時00分~23時30分/110m(徒歩1分) |
| カフェ |
ロンハーマン カフェ 千駄ヶ谷店/10時00分~20時00分/300m(徒歩3分) タスヤード/11時30分~18時00分/300m(徒歩4分) |
| コインパーキング |
パークアベニュー/千駄ヶ谷第1 駐車場 [料金] 昼 30分/400円 夜 60分/100円 [台数]6 タイムズ/千駄ヶ谷第20 [料金] [全日]8:00~22:00 12分 220円 [全日]22:00~8:00 60分 110円 [最大料金] [全日]駐車後5時間 最大料金2640円 [台数]4 |
周辺地図
雅ビルは渋谷区千駄ヶ谷にある地下1階、地上4階建ての賃貸事務所です。最寄駅は東京メトロ副都心線の北参道駅から徒歩4分、JR山手線の原宿駅から徒歩10分です。1992年6月竣工の鉄筋コンクリート造です。設備としては、エレベーターが1基あります。トイレは室内男女共用です。耐震設計となっている、ビジネス街として人気のある渋谷区千駄ヶ谷の賃貸オフィスです。
全フロア情報
更新日:2026年3月10日
| 階 | 面積 | 賃料 | 共益費 | 敷金 | 入居日 | お問合せ | お気に入り | |
|---|---|---|---|---|---|---|---|---|
| B1F |
23.75 坪 78.51 ㎡ |
※現在空室情報はございません |
※現在空室情報は 確認する |
|||||
| 2F |
28.64 坪 94.68 ㎡ |
※現在空室情報はございません |
※現在空室情報は 確認する |
|||||
| 3F |
28.64 坪 94.68 ㎡ |
430,000 円 15,014 円(坪) |
57,280 円 2,000 円(坪) |
2,580,000 円 6 ヶ月 |
相談 |
|
|
|
| 4F |
17.54 坪 57.98 ㎡ |
※現在空室情報はございません |
※現在空室情報は 確認する |
|||||
お問い合わせ
似た条件の物件はこちら
-
バルビゾン11
東京都渋谷区千駄ヶ谷1-20-3
坪数:33.43 坪
坪単価:12,863 円(坪)
-
呉羽小野木ビル
東京都渋谷区代々木2-20-12
坪数:38.00 坪
坪単価:12,000 円(坪)
-
メゾン・ドゥ・ボナール
東京都渋谷区千駄ヶ谷4-22-4
坪数:28.89 坪
坪単価:12,461 円(坪)
-
ミユキビル
東京都渋谷区代々木1-36-1
坪数:19.82 坪
坪単価:18,000 円(坪)
-
ウエストサイド新宿御苑
東京都渋谷区千駄ヶ谷5-12-13
坪数:32.64 坪
坪単価:21,446 円(坪)
-
MEPOⅠビル
東京都渋谷区千駄ヶ谷5-30-11
坪数:18.75 坪
坪単価:16,000 円(坪)
-
エタニティーマンション和田第3
東京都渋谷区代々木1-4-9
坪数:18.66 坪
坪単価:17,685 円(坪)
-
DSビル
東京都渋谷区千駄ヶ谷5-15-5
坪数:18 坪
坪単価:19,461 円(坪)
-
代々木オーシャンビル
東京都渋谷区代々木3-35-10
坪数:18.97 坪
坪単価:17,923 円(坪)
-
渡貫ビル
東京都渋谷区千駄ヶ谷1-7-4
坪数:25 坪
坪単価:17,091 円(坪)