諏訪ビル(物件No:92323652)
諏訪ビルは、台東区北上野にある貸事務所物件です。最寄り駅は、JR線の上野駅、鶯谷駅、東京メトロ日比谷線の入谷駅、東京メトロ銀座線の稲荷町駅です。1989年竣工の賃貸オフィスビルです。空調は個別空調(吊り下げ式)です。エレベーターは1基あります。複数路線利用可能な、アクセスの良い台東区北上野の貸事務所です。
-
物件情報
-
設備情報
- トイレ
- 室内男女共用
- 床
- -
- 空調
- 個別空調
- セキュリティ
- -
- 駐車場
- -
- 会議室
- -
- エレベーター
- 1基
- 天井高
- -
-
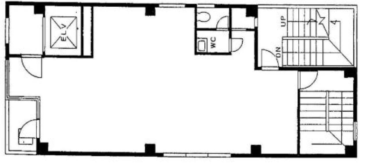
間取り図
-
近隣相場情報
北上野1丁目(20坪以下)の相場
11034 円 (坪)
※ビルサク調べ
周辺地図
諏訪ビルは、台東区北上野にある貸事務所物件です。最寄り駅は、JR線の上野駅、鶯谷駅、東京メトロ日比谷線の入谷駅、東京メトロ銀座線の稲荷町駅です。1989年竣工の賃貸オフィスビルです。空調は個別空調(吊り下げ式)です。エレベーターは1基あります。複数路線利用可能な、アクセスの良い台東区北上野の貸事務所です。
全フロア情報
更新日:2022年7月1日
| 階 | 面積 | 賃料 | 共益費 | 敷金 | 入居日 | お問合せ | お気に入り | |
|---|---|---|---|---|---|---|---|---|
| 1F |
17.72 坪 58.57 ㎡ |
※現在空室情報はございません |
※現在空室情報は 確認する |
|||||
| 2F |
18 坪 59.50 ㎡ |
※現在空室情報はございません |
※現在空室情報は 確認する |
|||||
| 3F |
18 坪 59.50 ㎡ |
※現在空室情報はございません |
※現在空室情報は 確認する |
|||||
| 4F |
18 坪 59.50 ㎡ |
※現在空室情報はございません |
※現在空室情報は 確認する |
|||||
| 5F |
18 坪 59.50 ㎡ |
※現在空室情報はございません |
※現在空室情報は 確認する |
|||||
| 6F |
20.36 坪 67.31 ㎡ |
※現在空室情報はございません |
※現在空室情報は 確認する |
|||||
お問い合わせ
似た条件の物件はこちら
-
B・ビレッヂIビル
東京都台東区台東1-14-7
坪数:14.5 坪
坪単価:10,000 円(坪)
-
冨田ビル
東京都台東区東上野1-7-2
坪数:14.99 坪
坪単価:14,676 円(坪)
-
明和センチュリー21
東京都台東区台東4-29-13
坪数:16 坪
坪単価:12,500 円(坪)
-
HMビル
東京都台東区台東2-30-11
坪数:19.33 坪
坪単価:10,864 円(坪)
-
KHビル
東京都台東区上野5-17-5
坪数:18.72 坪
坪単価:10,000 円(坪)
-
メゾン上野桜木
東京都台東区上野桜木1-15-6
坪数:18 坪
坪単価:8,333 円(坪)
-
井門東上野ビル
東京都台東区東上野3-1-10
坪数:21.92 坪
坪単価:13,000 円(坪)
-
上野TKSビル
東京都台東区上野2-11-12
坪数:16.43 坪
坪単価:16,489 円(坪)
-
御徒町グリーンプラザ
東京都台東区台東4-6-5
坪数:14.99 坪
坪単価:11,341 円(坪)
-
宮島ビル
東京都台東区東上野3-15-3
坪数:22.22 坪
坪単価:8,551 円(坪)