箱崎ダイヤマンション(物件No:92054206)
箱崎ダイヤマンションは中央区日本橋箱崎町にある地上8階建ての店舗貸事務所です。最寄駅は東京メトロ半蔵門線の水天宮前駅から徒歩4分、東京メトロ日比谷線の茅場町駅から徒歩7分です。1981年竣工の鉄骨造です。設備としてはトイレは室内です。空調は個別空調です。複数駅利用可能な、アクセスの良い中央区日本橋箱崎町の店舗貸事務所です。
| 階 | 面積 | 賃料 | 共益費 | 敷金 | 入居日 | お問合せ | お気に入り | |
|---|---|---|---|---|---|---|---|---|
| 1F (101区画) | 19.58 坪 64.73 ㎡ | ※現在空室情報はございません | ※現在空室情報は 確認する | |||||
- 
                    物件情報
- 
                        設備情報- トイレ
- 室内男女共用
- 床
- -
- 空調
- 個別空調
- セキュリティ
- -
- 駐車場
- -
- 会議室
- -
- エレベーター
- -
- 天井高
- -
 
- 
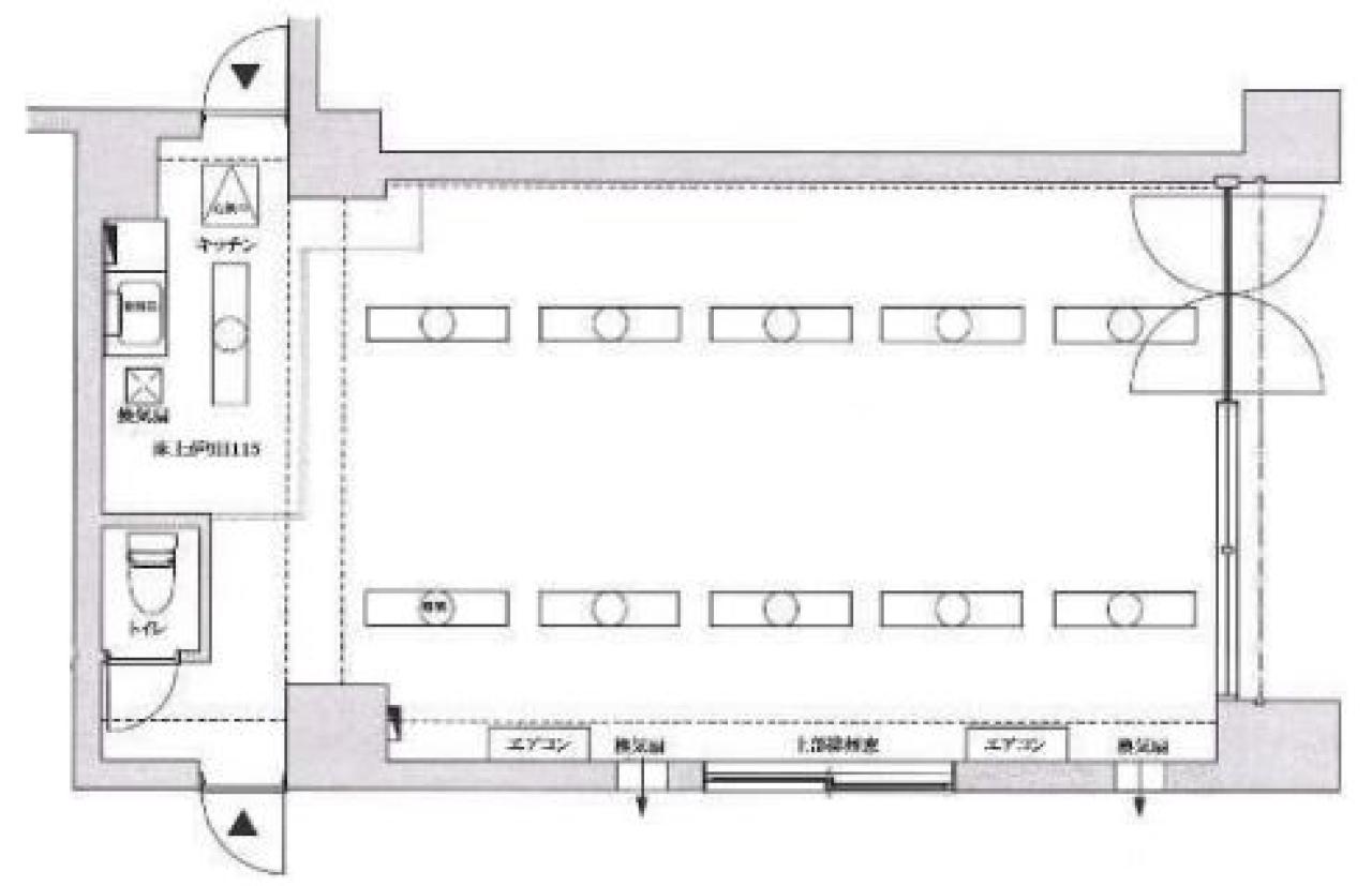
                        間取り図
- 
                    近隣相場情報日本橋箱崎町13丁目(20坪以下)の相場 17518 円 (坪) 
 ※ビルサク調べ
周辺施設情報
| コンビニ | ファミリーマート/IBM箱崎ビル店/220m(徒歩3分) ローソン/箱崎湊橋/170m(徒歩2分) | 
|---|---|
| 郵便局/銀行 | ローソン銀行/箱崎湊橋共同出張所/[営業時間]24時間/170m(徒歩2分) イーネット/ファミリーマートIBM箱崎ビル/[営業時間]7:00~23:00/220m(徒歩3分) | 
| 飲食店 | 鶏の尾っぽ/ 18時00分~2時00分/110m(徒歩1分) 炭火焼肉 ふくぶく/17時00分~23時30分/94m(徒歩1分) | 
| カフェ | カフェドクリエ/箱崎町/[営業時間][平 日] 7:30-18:00 [土日祝] (土)休業 (日/祝)休業/180m(徒歩2分) タリーズ/IBM箱崎店/[営業時間]平日:7:00~19:00 土 :休業日 日祝:休業日/180m(徒歩2分) | 
| コインパーキング | 三井のリパーク/日本橋箱崎町第8 [料金] [料金]平日 08:00~22:00 15分/300円 平日 22:00~08:00 60分/100円 日祝 08:00~22:00 15分/300円 日祝 22:00~08:00 60分/100円 [最大料金] 最大料金 【月~土】8:00~22:00以内 最大料金3200円 【月~土】22:00~8:00以内 最大料金500円 【日祝】8:00~22:00以内 最大料金1200円 【日祝】22:00~8:00以内 最大料金500円 [台数]3 タイムズ駐車場/日本橋箱崎町第3 [料金] [月~土]通常料金 / 0:00~0:00 20分 330円 [日・祝]通常料金 / 0:00~0:00 20分 330円 [最大料金] [月~土]8:00~19:00 最大料金2860円 19:00~8:00 最大料金440円 [日・祝]8:00~19:00 最大料金1100円 19:00~8:00 最大料金440円 [台数]4 | 
周辺地図
箱崎ダイヤマンションは中央区日本橋箱崎町にある地上8階建ての店舗貸事務所です。最寄駅は東京メトロ半蔵門線の水天宮前駅から徒歩4分、東京メトロ日比谷線の茅場町駅から徒歩7分です。1981年竣工の鉄骨造です。設備としてはトイレは室内です。空調は個別空調です。複数駅利用可能な、アクセスの良い中央区日本橋箱崎町の店舗貸事務所です。
全フロア情報
更新日:2020年11月12日
| 階 | 面積 | 賃料 | 共益費 | 敷金 | 入居日 | お問合せ | お気に入り | |
|---|---|---|---|---|---|---|---|---|
| 1F (101区画) | 19.58 坪 64.73 ㎡ | ※現在空室情報はございません | ※現在空室情報は 確認する | |||||
お問い合わせ
似た条件の物件はこちら
- 
                    
                        グリーンパーク日本橋参番館東京都中央区日本橋大伝馬町6-2 坪数:16.35 坪 坪単価:25,688 円(坪) 
- 
                    
                          三上ビル東京都中央区日本橋横山町1-1 坪数:21.35 坪 坪単価:30,000 円(坪) 
- 
                    
                        PORT ONE 茅場町東京都中央区日本橋箱崎町5-15 坪数:16.75 坪 坪単価:24,000 円(坪) 
- 
                    
                        三幸日本橋プラザビル東京都中央区東日本橋1-1-20 坪数:21.97 坪 坪単価:13,000 円(坪) 
- 
                    
                        FSビル東京都中央区日本橋人形町2-21-1 坪数:22.05 坪 坪単価:11,000 円(坪) 
- 
                    
                        リブラ東日本橋Ⅵ東京都中央区東日本橋3-12-11 坪数:16.3 坪 坪単価:23,313 円(坪) 
- 
                    
                        古川ビル東京都中央区日本橋蛎殻町1-18-1 坪数:17.9 坪 坪単価:11,996 円(坪) 
- 
                    
                        鈴善ビル東京都中央区日本橋小舟町1-12 坪数:22.15 坪 坪単価:11,000 円(坪) 
- 
                    
                        和円ビル東京都中央区日本橋久松町9-12 坪数:17.69 坪 坪単価:15,828 円(坪) 
- 
                    
                          アスカ日本橋小伝馬町ビル東京都中央区日本橋大伝馬町4-7 坪数:19.9 坪 坪単価:25,126 円(坪) 
関連エリアから探す
- 日本橋大伝馬町
- 日本橋蛎殻町
- 日本橋小網町
- 日本橋小伝馬町
- 日本橋小舟町
- 日本橋富沢町
- 日本橋人形町
- 日本橋箱崎町
- 日本橋堀留町
- 日本橋中洲
- 日本橋馬喰町
- 日本橋浜町
- 日本橋久松町
- 日本橋横山町
- 東日本橋
 
         
    