黒江屋八丁堀ビル(物件No:91989161)
黒江屋八丁堀ビルは、中央区八丁堀にある貸事務所物件です。最寄駅は東京メトロ日比谷線、JR八丁堀駅、東京メトロ有楽町線新富町駅、都営浅草線宝町駅となっています。1980年竣工で、基準階が17.85坪の賃貸オフィスビルです。床はOAフロアとなっています。トイレは室内で、空調は個別空調です。エレベーターは1基あります。最寄駅から徒歩2分。複数路線利用可能で交通アクセスの良い、中央区八丁堀の貸事務所です。
- 
                    物件情報
- 
                        設備情報- トイレ
- 室内男女共用
- 床
- フリーアクセス
- 空調
- 個別空調
- セキュリティ
- -
- 駐車場
- 無
- 会議室
- -
- エレベーター
- 1基
- 天井高
- -
 
- 
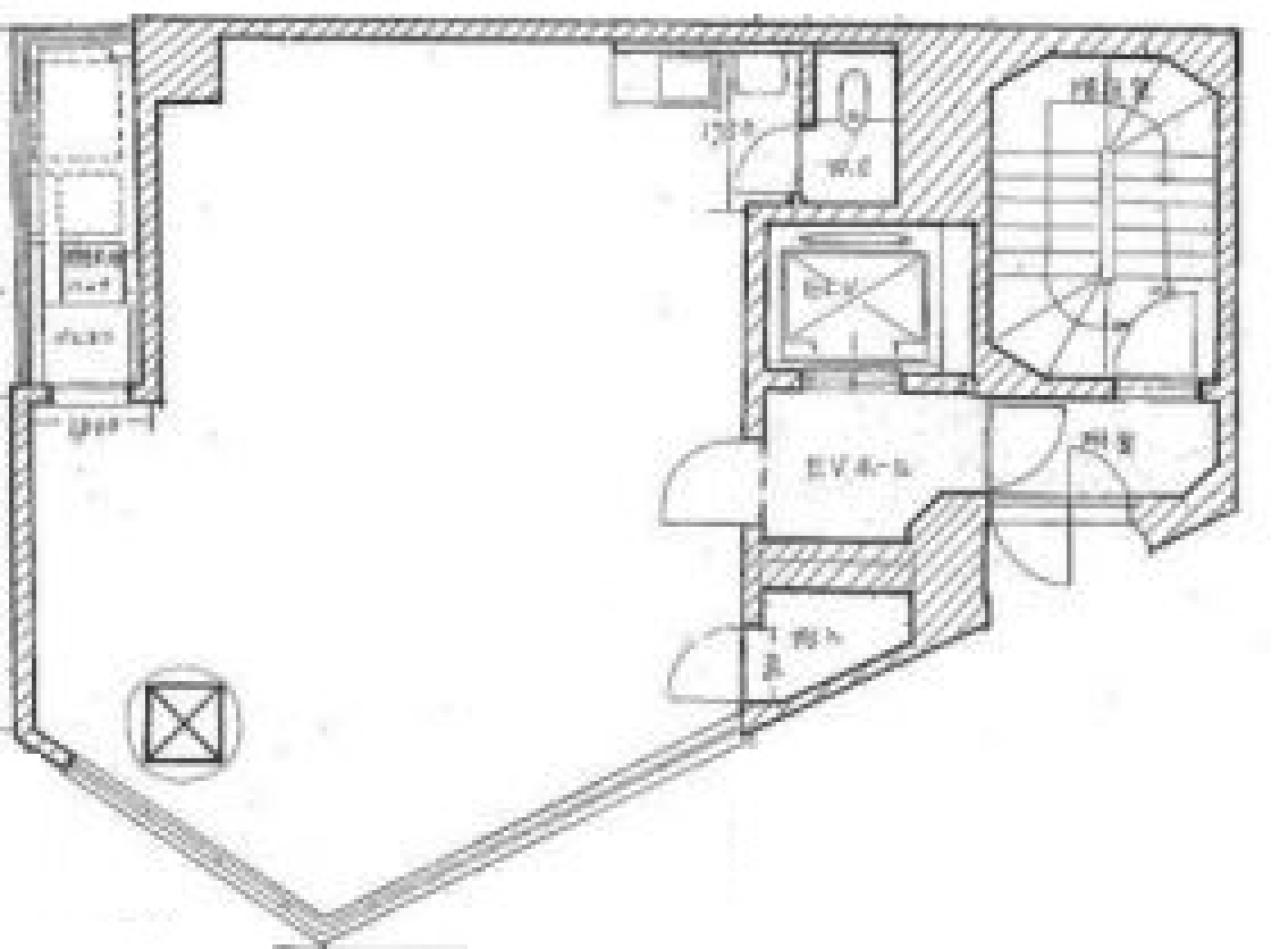
                        間取り図
- 
                    近隣相場情報八丁堀3丁目(20坪以下)の相場 13889 円 (坪) 
 ※ビルサク調べ
周辺施設情報
| コンビニ | ローソン/H八丁堀四丁目/260m(徒歩3分) ファミリーマート/八丁堀二丁目店/190m(徒歩2分) | 
|---|---|
| 郵便局/銀行 | 郵便局/新富(東京都)/平日 9:00-18:00 土曜 - 日曜・祝日 - [ATM]平日 8:00-20:00 土曜 9:00-17:00 日曜・祝日 -/250m(徒歩3分) きらぼし銀行/八丁堀支店/[営業時間]店舗 平日 9:00~15:00 土曜日 - 日・祝日 - 【貸金庫ご利用時間】 平日9:00~18:00 ATM 平日 8:00~21:00 土曜日 8:00~21:00 日・祝日 8:00~21:00/350m(徒歩4分) | 
| 飲食店 | 名代 宇奈とと 八丁堀店/11時00分~22時00分/ 地粉うどん 福福/11時00分~21時00分/120m(徒歩1分) | 
| カフェ | コロラド/八丁堀店/[営業時間]平 日:08:00 - 21:00 土曜日:- 日 祝:- [休業日]日曜、祝日、土曜 [備考]総席数:47 禁煙席:8 喫煙席:39/80m(徒歩1分) ベルコーヒー/[定休日]土曜・日曜・祝日/140m(徒歩2分) | 
| コインパーキング | 名鉄協商パーキング/八丁堀駅前 [料金] 全日 15分 (00:00 - 24:00) 400円 [最大料金] 平日・土 (08:00 - 19:00) 3,600円 日祝 (08:00 - 19:00) 1,500円 全日 (19:00 - 08:00) 500円 [台数]3台 タイムズ駐車場/八丁堀駅前第2 [料金] [月~土]00:00-00:00 15分 400円 [日・祝]00:00-00:00 15分 400円 [最大料金] [月~土]07:00-22:00 最大料金3800円 22:00-07:00 最大料金600円 [日・祝]07:00-22:00 最大料金1500円 22:00-07:00 最大料金600円 [台数]17 | 
周辺地図
黒江屋八丁堀ビルは、中央区八丁堀にある貸事務所物件です。最寄駅は東京メトロ日比谷線、JR八丁堀駅、東京メトロ有楽町線新富町駅、都営浅草線宝町駅となっています。1980年竣工で、基準階が17.85坪の賃貸オフィスビルです。床はOAフロアとなっています。トイレは室内で、空調は個別空調です。エレベーターは1基あります。最寄駅から徒歩2分。複数路線利用可能で交通アクセスの良い、中央区八丁堀の貸事務所です。
全フロア情報
更新日:2024年3月15日
| 階 | 面積 | 賃料 | 共益費 | 敷金 | 入居日 | お問合せ | お気に入り | |
|---|---|---|---|---|---|---|---|---|
| 2F | 17.85 坪 59.01 ㎡ | ※現在空室情報はございません | ※現在空室情報は 確認する | |||||
| 3F | 17.85 坪 59.01 ㎡ | ※現在空室情報はございません | ※現在空室情報は 確認する | |||||
お問い合わせ
似た条件の物件はこちら
- 
                    
                        AUBE新川ビル東京都中央区新川2-18-10 坪数:20.82 坪 坪単価:14,000 円(坪) 
- 
                    
                        第5山京ビル東京都中央区新川1-2-8 坪数:21.25 坪 坪単価:17,082 円(坪) 
- 
                    
                        碧山ビル東京都中央区日本橋茅場町2-8-10 坪数:21 坪 坪単価:13,000 円(坪) 
- 
                    
                        石川ビル東京都中央区日本橋茅場町2-14-5 坪数:22 坪 坪単価:8,000 円(坪) 
- 
                    
                        TKヤマダビル東京都中央区八丁堀4-10-6 坪数:17.99 坪 坪単価:11,006 円(坪) 
- 
                    
                        第1井上ビル東京都中央区日本橋茅場町2-14-1 坪数:20.82 坪 坪単価:28,000 円(坪) 
- 
                    
                        ニューリバータワー東京都中央区新川1-6-11 坪数:16.2 坪 坪単価:22,000 円(坪) 
- 
                    
                        井門茅場町ビル東京都中央区日本橋茅場町2-4-8 坪数:20.9 坪 坪単価:15,000 円(坪) 
- 
                    
                        高田ビル東京都中央区日本橋茅場町3-3-2 坪数:14 坪 坪単価:12,143 円(坪) 
- 
                    
                        野沢天祐堂東京都中央区八丁堀2-22-11 坪数:15.21 坪 坪単価:9,999 円(坪) 
 
         
    