神田中央ビル(物件No:91988067)
神田中央ビルは、千代田区西神田にある貸事務所物件です。最寄り駅はJR水道橋駅、東京メトロ半蔵門線、都営新宿線、三田線神保町駅、東京メトロ東西線九段下駅です。1975年竣工で基準階が43坪の賃貸オフィスビルです。空調は個別空調です。エレベーターは1基あり、セキュリティは機械警備となっています。駐車場が利用可能です。複数路線利用可能で、交通アクセスの良い、千代田区西神田の貸事務所です。
| 階 | 面積 | 賃料 | 共益費 | 敷金 | 入居日 | お問合せ | お気に入り |
|---|---|---|---|---|---|---|---|
|
3F
(301区画) |
16.64 坪 55 ㎡ |
191,245 円 11,493 円(坪) |
33,280 円 2,000 円(坪) |
1,147,470 円 6 ヶ月 |
2026/03 |
|
|
| 階 | 面積 | 賃料 | 共益費 | 敷金 | 入居日 | お問合せ | お気に入り |
|---|---|---|---|---|---|---|---|
|
3F
(301区画) |
16.64 坪 55 ㎡ |
191,245 円 11,493 円(坪) |
33,280 円 2,000 円(坪) |
1,147,470 円 6 ヶ月 |
2026/03 |
|
|
-
物件情報
-
設備情報
- トイレ
- -
- 床
- -
- 空調
- 個別空調
- セキュリティ
- 有
- 駐車場
- 有
- 会議室
- -
- エレベーター
- 1基
- 天井高
- -
-
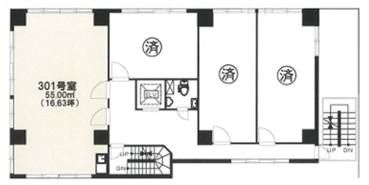
間取り図
-
近隣相場情報
西神田2丁目(20坪以下)の相場
15664 円 (坪)
※ビルサク調べ
周辺施設情報
| コンビニ |
セブンイレブン/神田神保町3丁目/450m(徒歩6分) ファミリーマート/水道橋駅東口店/400m(徒歩5分) |
|---|---|
| 郵便局/銀行 |
ろうきん/協会・連合会・関連団体 株式会社 労金カードサービス/[営業時間]9:00~17:00 [休業日]土曜・日曜・祝日/550m(徒歩7分) りそな銀行/九段支店/[営業時間]平日/9:00~17:00 [ATM]平日/8:00~21:00 土・日・祝/8:00~21:00/700m(徒歩9分) |
| 飲食店 |
かつ村/11時20分~14時00分、17時00分~21時45分/34m(徒歩1分) モスバーガー 水道橋西通り店/10時00分~21時00分/25m(徒歩1分) |
| カフェ |
ベローチェ/三崎町店/[営業時間]7:00~22:00(土・日・祝21:00閉店)※営業時間の変更情報あり。詳細についてはHPを参照 [備考]全席禁煙/Wi-Fiあり/150m(徒歩2分) あめにてぃCAFE・梨の木舎/12時00分~19時00分/230m(徒歩3分) |
| コインパーキング |
ショウワパーク/三崎町 [料金] 全日 11:00~24:00 30分/500円 全日 24:00~11:00 30分/300円 [最大料金] 全日5時間2500円 繰り返し× [台数]3台 NPC24H/西神田2丁目 [料金] 20分/330円(8時~22時) 30分/110円(22時~8時) [最大料金] 【No.3~13・17・21・25・29】3時間毎 1300円 【No.1・2・14~16・18~20・22~24・26~28】12時間毎 2700円 [台数]29台 |
周辺地図
神田中央ビルは、千代田区西神田にある貸事務所物件です。最寄り駅はJR水道橋駅、東京メトロ半蔵門線、都営新宿線、三田線神保町駅、東京メトロ東西線九段下駅です。1975年竣工で基準階が43坪の賃貸オフィスビルです。空調は個別空調です。エレベーターは1基あり、セキュリティは機械警備となっています。駐車場が利用可能です。複数路線利用可能で、交通アクセスの良い、千代田区西神田の貸事務所です。
全フロア情報
更新日:2026年1月5日
| 階 | 面積 | 賃料 | 共益費 | 敷金 | 入居日 | お問合せ | お気に入り | |
|---|---|---|---|---|---|---|---|---|
| 1F |
36.37 坪 120.23 ㎡ |
※現在空室情報はございません |
※現在空室情報は 確認する |
|||||
|
2F
(201区画) |
8.01 坪 26.48 ㎡ |
※現在空室情報はございません |
※現在空室情報は 確認する |
|||||
|
2F
(202区画) |
8.62 坪 28.5 ㎡ |
※現在空室情報はございません |
※現在空室情報は 確認する |
|||||
|
2F
(203区画) |
6.8 坪 22.48 ㎡ |
※現在空室情報はございません |
※現在空室情報は 確認する |
|||||
|
3F
(301区画) |
16.64 坪 55 ㎡ |
191,245 円 11,493 円(坪) |
33,280 円 2,000 円(坪) |
1,147,470 円 6 ヶ月 |
2026/03 |
|
|
|
|
3F
(304区画) |
8.4 坪 27.77 ㎡ |
※現在空室情報はございません |
※現在空室情報は 確認する |
|||||
|
4F
(401区画) |
8.01 坪 26.5 ㎡ |
※現在空室情報はございません |
※現在空室情報は 確認する |
|||||
|
4F
(402区画) |
8.62 坪 28.5 ㎡ |
※現在空室情報はございません |
※現在空室情報は 確認する |
|||||
|
4F
(403区画) |
6.8 坪 22.48 ㎡ |
※現在空室情報はございません |
※現在空室情報は 確認する |
|||||
|
4F
(404区画) |
8.4 坪 27.77 ㎡ |
※現在空室情報はございません |
※現在空室情報は 確認する |
|||||
|
4F
(405区画) |
8.4 坪 27.77 ㎡ |
※現在空室情報はございません |
※現在空室情報は 確認する |
|||||
|
5F
(203区画) |
6.8 坪 22.48 ㎡ |
※現在空室情報はございません |
※現在空室情報は 確認する |
|||||
|
5F
(501区画) |
8.01 坪 26.48 ㎡ |
※現在空室情報はございません |
※現在空室情報は 確認する |
|||||
|
5F
(502区画) |
8.62 坪 28.5 ㎡ |
※現在空室情報はございません |
※現在空室情報は 確認する |
|||||
|
5F
(503区画) |
6.8 坪 22.48 ㎡ |
※現在空室情報はございません |
※現在空室情報は 確認する |
|||||
|
5F
(505区画) |
15.5 坪 51.24 ㎡ |
※現在空室情報はございません |
※現在空室情報は 確認する |
|||||
|
6F
(601区画) |
8.01 坪 26.48 ㎡ |
※現在空室情報はございません |
※現在空室情報は 確認する |
|||||
|
6F
(602区画) |
8.62 坪 28.5 ㎡ |
※現在空室情報はございません |
※現在空室情報は 確認する |
|||||
|
6F
(604区画) |
8.4 坪 27.77 ㎡ |
※現在空室情報はございません |
※現在空室情報は 確認する |
|||||
|
6F
(605区画) |
8.4 坪 27.77 ㎡ |
※現在空室情報はございません |
※現在空室情報は 確認する |
|||||
|
6F
(608区画) |
36.37 坪 120.23 ㎡ |
※現在空室情報はございません |
※現在空室情報は 確認する |
|||||
|
7F
(701区画) |
16.63 坪 54.98 ㎡ |
※現在空室情報はございません |
※現在空室情報は 確認する |
|||||
|
7F
(703区画) |
6.8 坪 22.48 ㎡ |
※現在空室情報はございません |
※現在空室情報は 確認する |
|||||
|
7F
(705区画) |
8.4 坪 27.77 ㎡ |
※現在空室情報はございません |
※現在空室情報は 確認する |
|||||
|
8F
(801区画) |
16.63 坪 54.98 ㎡ |
※現在空室情報はございません |
※現在空室情報は 確認する |
|||||
|
8F
(803区画) |
6.92 坪 22.88 ㎡ |
※現在空室情報はございません |
※現在空室情報は 確認する |
|||||
|
8F
(805区画) |
18.83 坪 62.25 ㎡ |
※現在空室情報はございません |
※現在空室情報は 確認する |
|||||
お問い合わせ
似た条件の物件はこちら
-
パリスビル
東京都千代田区富士見1-7-10
坪数:19.07 坪
坪単価:10,488 円(坪)
-
新都心ビル
東京都千代田区飯田橋3-4-6
坪数:17.77 坪
坪単価:14,000 円(坪)
-
第二プレシーザビル
東京都千代田区飯田橋4-8-4
坪数:20.96 坪
坪単価:12,023 円(坪)
-
三久ビル
東京都千代田区西神田2-3-3
坪数:15.89 坪
坪単価:14,005 円(坪)
-
モリカワビル
東京都千代田区飯田橋1-7-4
坪数:16 坪
坪単価:12,000 円(坪)
-
日建神保町ビル
東京都千代田区神田神保町3-1-6
坪数:16.86 坪
坪単価:16,014 円(坪)
-
内田ビル
東京都千代田区飯田橋2-15-3
坪数:17.09 坪
坪単価:8,601 円(坪)
-
福岡第3ビル
東京都千代田区飯田橋1-4-7
坪数:14 坪
坪単価:12,857 円(坪)
-
TQ神田猿楽町
東京都千代田区神田猿楽町2-6-8
坪数:18.92 坪
坪単価:23,000 円(坪)
-
MM Ⅲビル
東京都千代田区神田三崎町3-10-17
坪数:18.96 坪
坪単価:12,000 円(坪)