神田ミハマビル(物件No:91986059)
神田ミハマビルは、千代田区神田須田町にある貸事務所物件で地下鉄丸ノ内線淡路町駅、都営新宿線小川町駅、JR神田駅です。1987年竣工の賃貸オフィスビルです。トイレは室外男女別で、空調は個別空調です。エレベーターは1基あり、セキュリティは機械警備となっています。駐車場が利用可能です。複数路線利用可能で交通アクセスの良い千代田区神田須田町の貸事務所です。
- 
                    物件情報
- 
                        設備情報- トイレ
- 室外男女別
- 床
- -
- 空調
- 個別空調
- セキュリティ
- 有
- 駐車場
- 有
- 会議室
- -
- エレベーター
- 1基
- 天井高
- -
 
- 
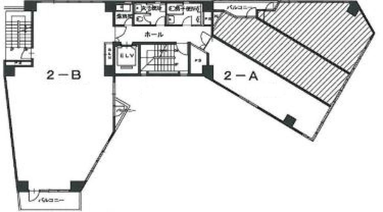
                        間取り図
- 
                    近隣相場情報神田須田町1丁目(30~40坪)の相場 24272 円 (坪) 
 ※ビルサク調べ
周辺施設情報
| コンビニ | セブンイレブン/神田岩本町/450m(徒歩6分) ファミリーマート/神田万世橋店/300m(徒歩4分) | 
|---|---|
| 郵便局/銀行 | ローソン銀行/LTF万世本店共同出張所/[営業時間]24時間 [取扱]本人確認サービス対応、ATMチャージ/ATM払戻サービス、スマホATM(QR入出金)、海外発行カード/海外送金、視覚障害者対応 [備考]ご利用可能な金融機関 当店のATM管理はローソン銀行です/130m(徒歩2分) みずほ銀行/神田支店/[営業時間] [窓口]平日9:00~15:00 [ATM]平日 6:00~26:00 土曜日 8:00~22:00 日曜日 8:00~21:00 祝日・振替休日 8:00~21:00 備考 *月曜日の6:00~7:00はご利用いただけません [駐車場]日幸神田ビル駐車場/450m(徒歩6分) | 
| 飲食店 | はなまるうどん秋葉原南店/10時00分~22時00分/110m(徒歩1分) シディーク秋葉原 神田須田町店 Akihabara/11時00分~20時00分/57m(徒歩1分) | 
| カフェ | AWAJI cafe&gallery/12時00分~20時00分/350m(徒歩5分) 英会話カフェ 80's Cafe/17時15分~22時30分/300m(徒歩4分) | 
| コインパーキング | 三井のリパーク/神田多町 [料金] 全日 08:00~22:00 15分/400円 全日 22:00~08:00 60分/100円 [最大料金] 【全日】最大料金入庫後4時間以内2800円 [台数]2 ナビパーク/神田東松下町第1 [料金] 全曜日 8:00~20:00 12分/300円 全曜日 20:00~8:00 60分/100円 [最大料金] 当日最大(日・祝)2,000円 夜間最大(全曜日)20:00~8:00 300円 当日最大(月~土)4,600円 [台数]5台 その他区画 0台 | 
周辺地図
神田ミハマビルは、千代田区神田須田町にある貸事務所物件で地下鉄丸ノ内線淡路町駅、都営新宿線小川町駅、JR神田駅です。1987年竣工の賃貸オフィスビルです。トイレは室外男女別で、空調は個別空調です。エレベーターは1基あり、セキュリティは機械警備となっています。駐車場が利用可能です。複数路線利用可能で交通アクセスの良い千代田区神田須田町の貸事務所です。
全フロア情報
更新日:2023年5月11日
| 階 | 面積 | 賃料 | 共益費 | 敷金 | 入居日 | お問合せ | お気に入り | |
|---|---|---|---|---|---|---|---|---|
| 2F (A区画) | 11.10 坪 36.69 ㎡ | ※現在空室情報はございません | ※現在空室情報は 確認する | |||||
| 2F (B区画) | 34.61 坪 114.41 ㎡ | ※現在空室情報はございません | ※現在空室情報は 確認する | |||||
| 3F (A区画) | 11.10 坪 36.69 ㎡ | ※現在空室情報はございません | ※現在空室情報は 確認する | |||||
| 4F (A区画) | 21.60 坪 71.40 ㎡ | ※現在空室情報はございません | ※現在空室情報は 確認する | |||||
| 6F (A区画) | 21.60 坪 71.40 ㎡ | ※現在空室情報はございません | ※現在空室情報は 確認する | |||||
| 7F (A区画) | 32.30 坪 106.78 ㎡ | ※現在空室情報はございません | ※現在空室情報は 確認する | |||||
| 7F (B区画) | 34.61 坪 114.41 ㎡ | ※現在空室情報はございません | ※現在空室情報は 確認する | |||||
| 8F (A区画) | 32.30 坪 106.78 ㎡ | ※現在空室情報はございません | ※現在空室情報は 確認する | |||||
| 8F (B区画) | 34.60 坪 114.38 ㎡ | ※現在空室情報はございません | ※現在空室情報は 確認する | |||||
| 10F (A区画) | 32.03 坪 105.88 ㎡ | ※現在空室情報はございません | ※現在空室情報は 確認する | |||||
お問い合わせ
似た条件の物件はこちら
- 
                    
                          大手町ゲートビルディング東京都千代田区内神田1-31-11 坪数:34.8 坪 坪単価:70,402 円(坪) 
- 
                    
                        NTビル東京都千代田区内神田1-9-12 坪数:42.58 坪 坪単価:24,507 円(坪) 
- 
                    
                        新八光ビル東京都千代田区内神田3-22-9 坪数:38.3 坪 坪単価:20,000 円(坪) 
- 
                    
                        神田中沢ビル東京都千代田区外神田6-14-12 坪数:28.5 坪 坪単価:10,526 円(坪) 
- 
                    
                        神田松楠ビル東京都千代田区内神田2-7-10 坪数:37.07 坪 坪単価:15,000 円(坪) 
- 
                    
                        KSKビル東京都千代田区外神田5-1-15 坪数:39.4 坪 坪単価:16,000 円(坪) 
- 
                    
                        エスポワールビル東京都千代田区神田紺屋町38 坪数:36.67 坪 坪単価:13,000 円(坪) 
- 
                    
                        ism神田東京都千代田区神田東松下町48 坪数:31.72 坪 坪単価:16,000 円(坪) 
- 
                    
                        神田荒木ビル東京都千代田区神田須田町1-14-6 坪数:30.03 坪 坪単価:18,000 円(坪) 
- 
                    
                        大栄堂ビル東京都千代田区神田小川町3-6 坪数:30 坪 坪単価:20,000 円(坪) 
関連エリアから探す
- 内神田
- 神田淡路町
- 神田小川町
- 神田鍛冶町
- 神田須田町
- 神田駿河台
- 神田多町
- 神田司町
- 神田錦町
- 神田美土代町
- 岩本町
- 鍛冶町
- 神田岩本町
- 神田北乗物町
- 神田紺屋町
- 神田富山町
- 神田西福田町
- 神田東松下町
- 神田東紺屋町
- 神田美倉町
- 東神田
- 神田相生町
- 神田和泉町
- 神田佐久間町
- 神田佐久間河岸
- 神田練塀町
- 神田花岡町
- 神田松永町
- 外神田
- 神田平河町
 
         
    