GRAND VALUE MITA(物件No:91982194)
GRAND VALUE MITAは港区芝にある地上10階建ての賃貸事務所です。最寄駅は都営三田線の三田駅から徒歩5分、ゆりかもめの日の出駅から徒歩6分、JR線の田町駅から徒歩8分です。1985年8月竣工の鉄骨鉄筋コンクリート造です。設備としては、空調は個別空調です。複数路線利用可能なアクセスの良い港区芝の賃貸オフィスです。
- 
                    
物件情報
 - 
                        
設備情報
- トイレ
 - 室内男女共用
 - 床
 - タイルカーペット
 - 空調
 - 個別空調
 - セキュリティ
 - -
 - 駐車場
 - -
 - 会議室
 - -
 - エレベーター
 - -
 - 天井高
 - -
 
 - 
                        
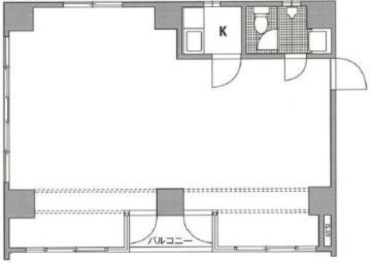
間取り図
 - 
                    
近隣相場情報
芝2丁目(20坪以下)の相場
16526 円 (坪)
※ビルサク調べ 
周辺施設情報
| コンビニ | 
                                                                                                                     ファミリーマート/グローバルフロントタワー店/300m(徒歩5分) セブンイレブン/三田駅北/400m(徒歩5分)  | 
                
|---|---|
| 郵便局/銀行 | 
                                                                                                                     みずほ銀行/ATM シーバンス出張所/[営業時間]ATM 平日 /Monday - Friday 7:00~22:00 土曜日/Saturday 8:00~21:00 日曜日/Sunday 8:00~21:00 祝日・振替休日 /Public Holidays 8:00~21:00 備考 *設置施設の休業日・休業時間帯は、一般のお客さま/500m(徒歩7分) 郵便局/芝一/平日 9:00-17:00 土曜 - 日曜・祝日 - [ATM]平日 9:00-18:00 土曜 9:00-12:30 日曜・祝日 -/180m(徒歩3分)  | 
                
| 飲食店 | 
                                                                                                                     はらぺこダイニング/11:30~14:30(L.O.14:00)、18:00~21:00/450m(徒歩6分) 生駒軒/11時00分~15時00分、17時00分~20時30分/180m(徒歩2分)  | 
                
| カフェ | 
                                                                                                                     ドトール/シーバンス ア・モール店/[営業時間]平 日:07:00 - 19:00 土曜日:- 日 祝:- [休業日]日曜、祝日、土曜 [備考]総席数:53 禁煙席:34 喫煙席:19/400m(徒歩6分) プチ・メゾン/月~金 10:00~18:00/250m(徒歩3分)  | 
                
| コインパーキング | 
                                                                                     タイムズ駐車場/芝浦第6 [料金] [月~土]00:00-00:00 20分 500円 [日・祝]00:00-00:00 20分 100円 [最大料金] [月~土]08:00-19:00 最大料金4000円 19:00-08:00 最大料金500円 [日・祝]08:00-19:00 最大料金1000円 19:00-08:00 最大料金500円 [台数]9 コインパーク/芝4丁目 [料金] 【全日】 ■通常料金 【00:00~24:00】 15分/400円 [最大料金] 【全日】 ■最大料金 【20:00~8:00】 600円 [台数][車: 2台]  | 
                
周辺地図
GRAND VALUE MITAは港区芝にある地上10階建ての賃貸事務所です。最寄駅は都営三田線の三田駅から徒歩5分、ゆりかもめの日の出駅から徒歩6分、JR線の田町駅から徒歩8分です。1985年8月竣工の鉄骨鉄筋コンクリート造です。設備としては、空調は個別空調です。複数路線利用可能なアクセスの良い港区芝の賃貸オフィスです。
全フロア情報
更新日:2021年11月25日
| 階 | 面積 | 賃料 | 共益費 | 敷金 | 入居日 | お問合せ | お気に入り | |
|---|---|---|---|---|---|---|---|---|
| 2F | 
             18.68 坪 61.75 ㎡  | 
                    ※現在空室情報はございません | 
                 ※現在空室情報は 確認する  | 
            |||||
| 3F | 
             18.68 坪 61.75 ㎡  | 
                    ※現在空室情報はございません | 
                 ※現在空室情報は 確認する  | 
            |||||
| 4F | 
             18.72 坪 61.88 ㎡  | 
                    ※現在空室情報はございません | 
                 ※現在空室情報は 確認する  | 
            |||||
| 5F | 
             18.68 坪 61.75 ㎡  | 
                    ※現在空室情報はございません | 
                 ※現在空室情報は 確認する  | 
            |||||
お問い合わせ
似た条件の物件はこちら
- 
                    
                        
菅谷ビル
東京都港区三田3-3-5
坪数:15.5 坪
坪単価:29,032 円(坪)
 - 
                    
                        
マリンクス・タワー
東京都港区海岸1-9-11
坪数:17.73 坪
坪単価:16,000 円(坪)
 - 
                    
                        
武藤ビル
東京都港区芝浦3-11-9
坪数:21.35 坪
坪単価:12,000 円(坪)
 - 
                    
                        
芝サニーハイツ
東京都港区芝5-27-4
坪数:17.28 坪
坪単価:11,574 円(坪)
 - 
                    
                        
My Maison
東京都港区芝3-16-9
坪数:15.13 坪
坪単価:16,530 円(坪)
 - 
                    
                        
山口ビル
東京都港区芝公園1-7-7
坪数:22 坪
坪単価:11,364 円(坪)
 - 
                    
                        
YKホープ芝大門
東京都港区芝大門1-3-9
坪数:15.56 坪
坪単価:12,211 円(坪)
 - 
                    
                        
EARTH SHIBA BLD
東京都港区芝2-10-6
坪数:22.47 坪
坪単価:29,000 円(坪)
 - 
                    
                        
山田ビル
東京都港区芝5-27-5
坪数:14.91 坪
坪単価:13,000 円(坪)
 - 
                    
                        
星野ビル
東京都港区浜松町1-15-6
坪数:15 坪
坪単価:12,000 円(坪)