栄ビル(物件No:91887172)
栄ビルは、中央区八丁堀にある貸事務所物件です。最寄駅は東京メトロ日比谷線、JR八丁堀駅、東京メトロ銀座線京橋駅、都営浅草線宝町駅となっています。1967年竣工で、基準階が21坪の賃貸オフィスビルです。床はタイルカーペットとなっています。空調は個別空調となっています。エレベーターは1基あり、駐車場が利用可能です。最寄駅から徒歩3分。複数路線利用可能で交通アクセスの良い、中央区八丁堀の貸事務所です。
-
物件情報
-
設備情報
- トイレ
- -
- 床
- タイルカーペット
- 空調
- 個別空調
- セキュリティ
- 無
- 駐車場
- 有
- 会議室
- -
- エレベーター
- 1基
- 天井高
- -
-
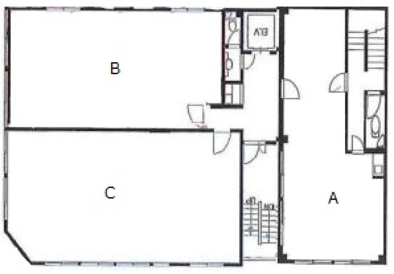
間取り図
-
近隣相場情報
八丁堀3丁目(20~30坪)の相場
14190 円 (坪)
※ビルサク調べ
周辺施設情報
| コンビニ |
ローソン/H八丁堀弾正橋/210m(徒歩3分) セブンイレブン/中央区八丁堀4丁目/200m(徒歩2分) |
|---|---|
| 郵便局/銀行 |
セブン銀行/中央区八丁堀4丁目店/[営業時間]24時間営業/200m(徒歩2分) ゆうちょ/中央八丁堀郵便局/[駐車場]なし/82m(徒歩1分) |
| 飲食店 |
宝町サケスクエア/11時00分~14時00分 17時00分~22時00分/150m(徒歩1分) 八丁堀ぜん/11時30分~14時00分 17時30分~22時30分/55m(徒歩1分) |
| カフェ |
ベローチェ/八丁堀一丁目店/[営業時間]7:00~22:00(土・日・祝7:00~21:00)/300m(徒歩4分) ドトール/八丁堀店/■通常営業時間 平日 7:00~19:30 土曜 7:30~16:00 日祝 9:00~16:00 /350m(徒歩5分) |
| コインパーキング |
NPC24H/八丁堀3丁目 [料金] [料金]通常料金【月~土】15分/300円(7時~22時)60分/100円(22時~7時) [料金]通常料金【日祝】20分/100円(7時~22時)60分/100円(22時~7時) [最大料金] [料金]最大料金【月~土】No.1・7・8のみ 4時間毎 2800円 夜間 800円(18時~7時) [料金]最大料金【日祝】区間最大 1000円(7時~18時)夜間 800円(18時~7時) [台数]11台 タイムズ/JNビル [料金] [月~土]通常料金 / 0:00~0:00 20分 440円 [日・祝]通常料金 / 0:00~0:00 20分 440円 [最大料金] [月~土]8:00~20:00 最大料金3960円 20:00~8:00 最大料金440円 [日・祝]8:00~20:00 最大料金880円 20:00~8:00 最大料金440円 [台数]2 |
周辺地図
栄ビルは、中央区八丁堀にある貸事務所物件です。最寄駅は東京メトロ日比谷線、JR八丁堀駅、東京メトロ銀座線京橋駅、都営浅草線宝町駅となっています。1967年竣工で、基準階が21坪の賃貸オフィスビルです。床はタイルカーペットとなっています。空調は個別空調となっています。エレベーターは1基あり、駐車場が利用可能です。最寄駅から徒歩3分。複数路線利用可能で交通アクセスの良い、中央区八丁堀の貸事務所です。
全フロア情報
更新日:2020年5月7日
| 階 | 面積 | 賃料 | 共益費 | 敷金 | 入居日 | お問合せ | お気に入り | |
|---|---|---|---|---|---|---|---|---|
|
2F
(A区画) |
17.00 坪 56.20 ㎡ |
※現在空室情報はございません |
※現在空室情報は 確認する |
|||||
|
3F
(A区画) |
17.00 坪 56.20 ㎡ |
※現在空室情報はございません |
※現在空室情報は 確認する |
|||||
|
3F
(B区画) |
21.00 坪 69.42 ㎡ |
※現在空室情報はございません |
※現在空室情報は 確認する |
|||||
|
3F
(C区画) |
20 坪 66.12 ㎡ |
※現在空室情報はございません |
※現在空室情報は 確認する |
|||||
|
4F
(B区画) |
13.00 坪 42.98 ㎡ |
※現在空室情報はございません |
※現在空室情報は 確認する |
|||||
|
4F
(C区画) |
21.00 坪 69.42 ㎡ |
※現在空室情報はございません |
※現在空室情報は 確認する |
|||||
お問い合わせ
似た条件の物件はこちら
-
AUBE新川ビル
東京都中央区新川2-18-10
坪数:20.82 坪
坪単価:14,000 円(坪)
-
第5山京ビル
東京都中央区新川1-2-8
坪数:21.25 坪
坪単価:17,082 円(坪)
-
塩部ビル
東京都中央区八丁堀4-9-6
坪数:24.06 坪
坪単価:12,500 円(坪)
-
KSビル
東京都中央区八丁堀3-9-5
坪数:25.06 坪
坪単価:12,000 円(坪)
-
碧山ビル
東京都中央区日本橋茅場町2-8-10
坪数:21 坪
坪単価:13,000 円(坪)
-
石川ビル
東京都中央区日本橋茅場町2-14-5
坪数:22 坪
坪単価:8,000 円(坪)
-
TKヤマダビル
東京都中央区八丁堀4-10-6
坪数:17.99 坪
坪単価:11,006 円(坪)
-
第1井上ビル
東京都中央区日本橋茅場町2-14-1
坪数:20.82 坪
坪単価:28,000 円(坪)
-
ニューリバータワー
東京都中央区新川1-6-11
坪数:16.2 坪
坪単価:22,000 円(坪)
-
井門茅場町ビル
東京都中央区日本橋茅場町2-4-8
坪数:20.9 坪
坪単価:15,000 円(坪)