パインランドビル(物件No:91887102)
パインランドビルは、中央区日本橋大伝馬町にある貸事務所物件です。最寄り駅は東京メトロ日比谷線小伝馬町駅、都営新宿線馬喰横山駅、JR馬喰町駅です。1992年竣工で基準階が27.25坪の賃貸オフィスビルです。床は2WAY、タイルカーペットとなっています。トイレは室内男女別で、空調は個別空調です。エレベーターは1基あり、セキュリティは機械警備となっています。複数路線利用可能で交通アクセスの良い、中央区日本橋大伝馬町の貸事務所です。
-
物件情報
-
設備情報
- トイレ
- -
- 床
- -
- 空調
- -
- セキュリティ
- 有
- 駐車場
- 無
- 会議室
- -
- エレベーター
- 1基
- 天井高
- -
-
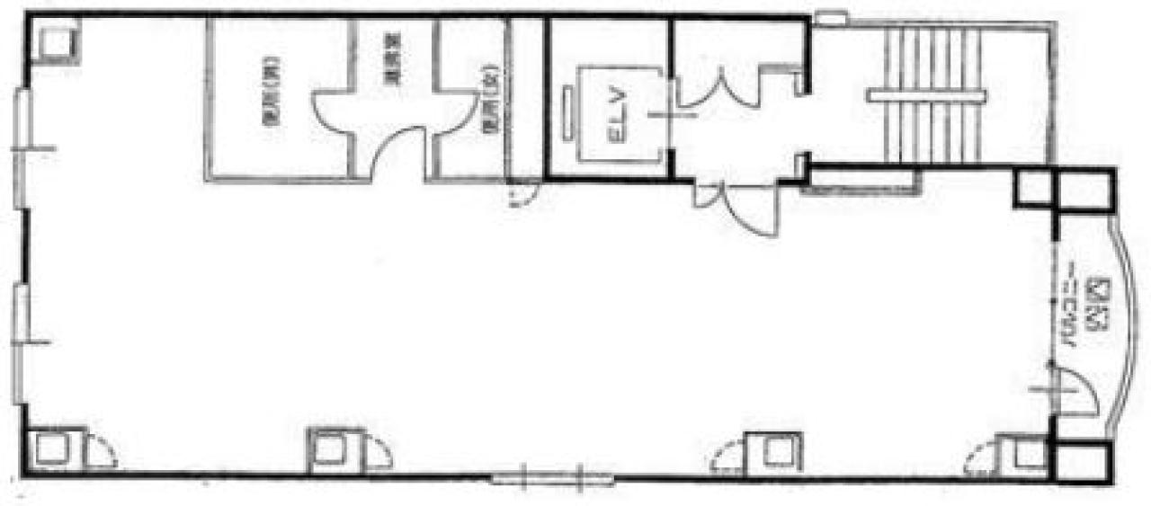
間取り図
-
近隣相場情報
日本橋大伝馬町3丁目(20~30坪)の相場
18500 円 (坪)
※ビルサク調べ
周辺施設情報
| コンビニ |
ファミリーマート/大伝馬町店/110m(徒歩1分) セブンイレブン/小伝馬町駅前/110m(徒歩1分) |
|---|---|
| 郵便局/銀行 |
イーネット/ファミリーマート大伝馬町/[営業時間]0:00~24:00/110m(徒歩1分) セブン銀行/小伝馬町駅前店/[営業時間]24時間営業/110m(徒歩1分) |
| 飲食店 |
餃子乃寶/不定休/83m(徒歩1分) なか卯 小伝馬町店/24 時間営業/300m(徒歩4分) |
| カフェ |
ベローチェ/小伝馬町店/[営業時間]7:00~21:00 土・日・祝7:00~19:00/300m(徒歩4分) サンマルクカフェ/小伝馬町駅前店/[営業時間]7:00~22:00/190m(徒歩3分) |
| コインパーキング |
三井のリパーク/日本橋本町3丁目第3 [料金] [料金]平日 07:00~21:00 15分/300円 平日 21:00~07:00 60分/100円 [料金]日祝 07:00~21:00 15分/300円 日祝 21:00~07:00 60分/100円 [最大料金] 最大料金 【月~土】7:00~21:00以内 最大料金4200円 最大料金 【日祝】7:00~21:00以内 最大料金900円 [台数]3 タイムズ駐車場/日本橋大伝馬町第4 [料金] [月~土]通常料金 / 0:00~0:00 15分 330円 [日・祝]通常料金 / 0:00~0:00 15分 330円 [最大料金] [月~土]19:00~8:00 最大料金550円 [日・祝]8:00~19:00 最大料金880円 19:00~8:00 最大料金550円 [台数]3 |
周辺地図
パインランドビルは、中央区日本橋大伝馬町にある貸事務所物件です。最寄り駅は東京メトロ日比谷線小伝馬町駅、都営新宿線馬喰横山駅、JR馬喰町駅です。1992年竣工で基準階が27.25坪の賃貸オフィスビルです。床は2WAY、タイルカーペットとなっています。トイレは室内男女別で、空調は個別空調です。エレベーターは1基あり、セキュリティは機械警備となっています。複数路線利用可能で交通アクセスの良い、中央区日本橋大伝馬町の貸事務所です。
全フロア情報
更新日:2025年11月28日
| 階 | 面積 | 賃料 | 共益費 | 敷金 | 入居日 | お問合せ | お気に入り | |
|---|---|---|---|---|---|---|---|---|
| 2F |
27.24 坪 90.05 ㎡ |
※現在空室情報はございません |
※現在空室情報は 確認する |
|||||
| 3F |
27.24 坪 90.05 ㎡ |
※現在空室情報はございません |
※現在空室情報は 確認する |
|||||
| 4F |
27.24 坪 90.05 ㎡ |
※現在空室情報はございません |
※現在空室情報は 確認する |
|||||
| 5F |
27.24 坪 90.05 ㎡ |
※現在空室情報はございません |
※現在空室情報は 確認する |
|||||
お問い合わせ
似た条件の物件はこちら
-
伊勢兼ビル
東京都中央区日本橋人形町1-7-9
坪数:27.05 坪
坪単価:17,000 円(坪)
-
横山町ビル
東京都中央区日本橋横山町1-1
坪数:21.35 坪
坪単価:23,419 円(坪)
-
林ビル
東京都中央区日本橋馬喰町1-5-10
坪数:29.43 坪
坪単価:10,000 円(坪)
-
ACE日本橋ビル
東京都中央区日本橋久松町13-5
坪数:17 坪
坪単価:13,000 円(坪)
-
オーキッドプレイス蛎殻町ビル
東京都中央区日本橋蛎殻町1-4-1
坪数:24.87 坪
坪単価:16,000 円(坪)
-
FSビル
東京都中央区日本橋人形町2-21-1
坪数:22.05 坪
坪単価:11,000 円(坪)
-
Ikigai Bashi ビル
東京都中央区日本橋大伝馬町1-7
坪数:21.86 坪
坪単価:22,000 円(坪)
-
aLATO日本橋小伝馬町
東京都中央区日本橋小伝馬町16-9
坪数:18.32 坪
坪単価:16,376 円(坪)
-
エムジー小伝馬町ビル
東京都中央区日本橋小伝馬町7-10
坪数:27.38 坪
坪単価:12,500 円(坪)
-
JP浜町ビル
東京都中央区日本橋浜町2-23-5
坪数:19.1 坪
坪単価:13,000 円(坪)
関連エリアから探す
- 日本橋大伝馬町
- 日本橋蛎殻町
- 日本橋小網町
- 日本橋小伝馬町
- 日本橋小舟町
- 日本橋富沢町
- 日本橋人形町
- 日本橋箱崎町
- 日本橋堀留町
- 日本橋中洲
- 日本橋馬喰町
- 日本橋浜町
- 日本橋久松町
- 日本橋横山町
- 東日本橋