マストライフ西新橋ビル(物件No:91880145)
マストライフ西新橋ビルは港区西新橋にある地上9階建ての賃貸事務所です。最寄駅はJR山手線の新橋駅から徒歩8分、JR京浜東北線の新橋駅から徒歩8分、都営三田線の御成門駅から徒歩5分、JR東海道本線の新橋駅から徒歩8分、JR横須賀線の新橋駅から徒歩8分です。2010年9月竣工の基準階面積が94.92坪の鉄骨造です。設備としては、エレベーターが2基あり、駐車場もあります。セキュリティは機械警備です。トイレは男女別です。空調は個別空調です。床仕様はフリーアクセスです。天高は2700mmです。耐震設計となっている、複数路線利用可能なアクセスの良い港区西新橋の賃貸オフィスです。
| 階 | 面積 | 賃料 | 共益費 | 敷金 | 入居日 | お問合せ | お気に入り | |
|---|---|---|---|---|---|---|---|---|
|
8F
(801区画) |
26.86 坪 88.79 ㎡ |
※現在空室情報はございません |
※現在空室情報は 確認する |
|||||
-
物件情報
-
設備情報
- トイレ
- 男女別
- 床
- フリーアクセス
- 空調
- 個別空調
- セキュリティ
- 有
- 駐車場
- 有
- 会議室
- -
- エレベーター
- 2基
- 天井高
- 2700mm
-
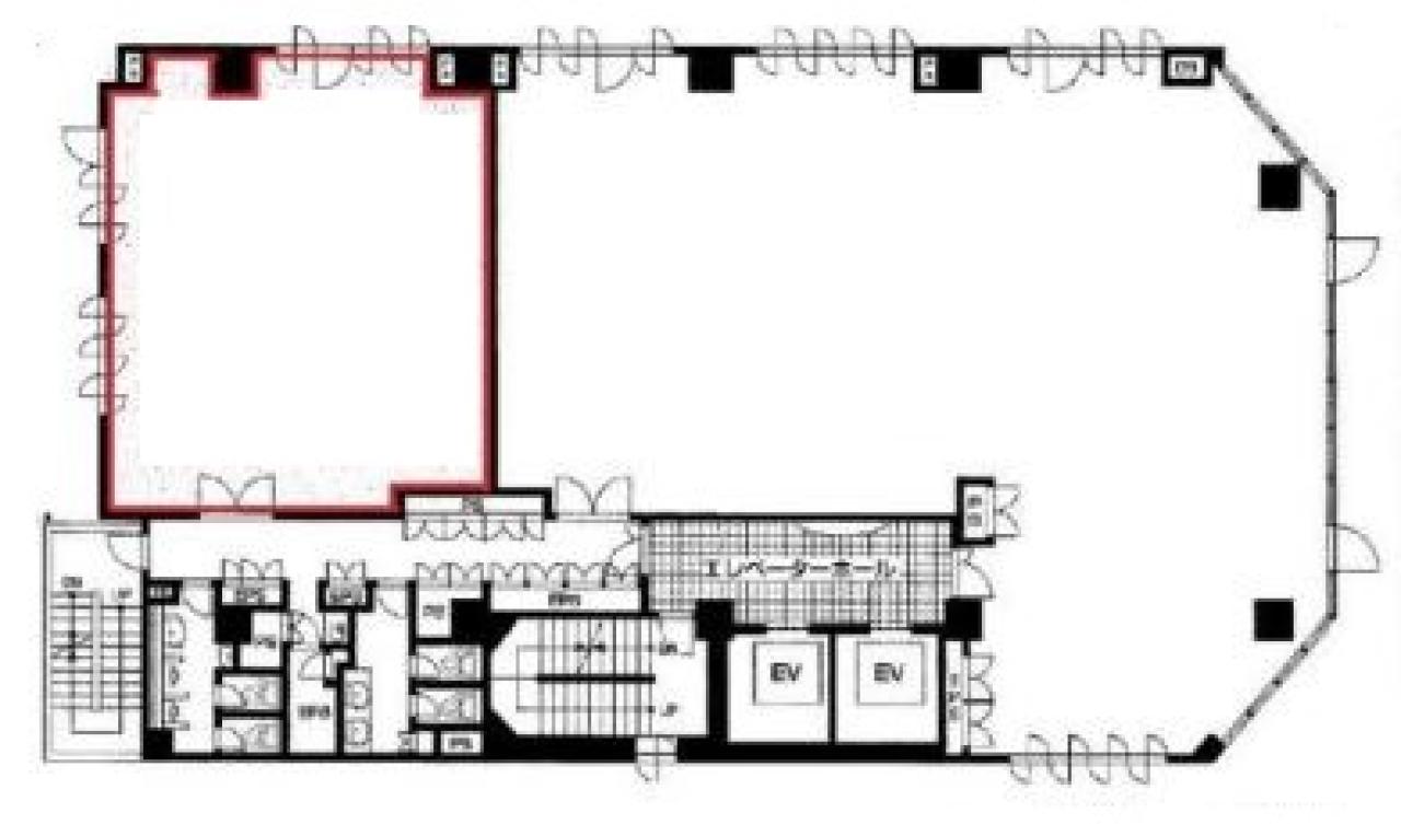
間取り図
-
近隣相場情報
西新橋3丁目(20~30坪)の相場
18034 円 (坪)
※ビルサク調べ
周辺施設情報
| コンビニ |
セブンイレブン/西新橋3丁目/34m(徒歩1分) ファミリーマート/ファミマ虎ノ門ヒルズ店/350m(徒歩5分) |
|---|---|
| 郵便局/銀行 |
イーネット/ファミリーマート西新橋二丁目/[営業時間]0:00~24:00/180m(徒歩2分) セブン銀行/御成門駅北店/[営業時間]24時間営業 [備考]1 台/400m(徒歩5分) |
| 飲食店 |
日本全国美味い物居酒屋 新橋 健美/11時30分~4時00分/500m(徒歩7分) 嘉徳園 新橋店/11:00~14:30 17:00~24:00(LO23:30)/400m(徒歩6分) |
| カフェ |
珈琲大使館 新橋店/7時00分~18時00分/350m(徒歩4分) ヘッケルン/8時00分~19時00分/450m(徒歩5分) |
| コインパーキング |
パークジャパン/新橋第6 [料金] オールタイム 300円/20 分 [最大料金] 8:00~20:00 最大料金3,500円 20:00~8:00 最大料金500円 [台数]6台 三井のリパーク/西新橋2丁目第4 [料金] 平日 08:00~22:00 10分/400円、平日 22:00~08:00 60分/100円 日祝 08:00~22:00 20分/200円、日祝 22:00~08:00 60分/100円 [最大料金] 【日祝】8:00~22:00以内 最大料金1800円 [台数]5 |
周辺地図
マストライフ西新橋ビルは港区西新橋にある地上9階建ての賃貸事務所です。最寄駅はJR山手線の新橋駅から徒歩8分、JR京浜東北線の新橋駅から徒歩8分、都営三田線の御成門駅から徒歩5分、JR東海道本線の新橋駅から徒歩8分、JR横須賀線の新橋駅から徒歩8分です。2010年9月竣工の基準階面積が94.92坪の鉄骨造です。設備としては、エレベーターが2基あり、駐車場もあります。セキュリティは機械警備です。トイレは男女別です。空調は個別空調です。床仕様はフリーアクセスです。天高は2700mmです。耐震設計となっている、複数路線利用可能なアクセスの良い港区西新橋の賃貸オフィスです。
全フロア情報
更新日:2023年2月17日
| 階 | 面積 | 賃料 | 共益費 | 敷金 | 入居日 | お問合せ | お気に入り | |
|---|---|---|---|---|---|---|---|---|
| 2F |
36.07 坪 119.24 ㎡ |
※現在空室情報はございません |
※現在空室情報は 確認する |
|||||
|
2F
(202区画) |
31.99 坪 105.75 ㎡ |
※現在空室情報はございません |
※現在空室情報は 確認する |
|||||
|
3F
(301区画) |
26.86 坪 88.79 ㎡ |
※現在空室情報はございません |
※現在空室情報は 確認する |
|||||
| 4F |
94.92 坪 313.78 ㎡ |
※現在空室情報はございません |
※現在空室情報は 確認する |
|||||
|
4F
(401区画) |
26.86 坪 88.79 ㎡ |
※現在空室情報はございません |
※現在空室情報は 確認する |
|||||
|
8F
(701区画) |
26.86 坪 88.79 ㎡ |
※現在空室情報はございません |
※現在空室情報は 確認する |
|||||
|
8F
(801区画) |
26.86 坪 88.79 ㎡ |
※現在空室情報はございません |
※現在空室情報は 確認する |
|||||
お問い合わせ
似た条件の物件はこちら
-
日比谷パークビル
東京都港区西新橋2-23-2
坪数:21.98 坪
坪単価:18,004 円(坪)
-
桔梗備前ビル
東京都港区西新橋1-19-6
坪数:20.63 坪
坪単価:18,905 円(坪)
-
麻布台ヒルズ ガーデンプラザB
東京都港区虎ノ門5-9-1
坪数:27.2 坪
坪単価:50,000 円(坪)
-
丸万1号館
東京都港区西新橋1-11-1
坪数:24.44 坪
坪単価:15,000 円(坪)
-
新橋安達ビル
東京都港区新橋5-28-7
坪数:29.34 坪
坪単価:14,500 円(坪)
-
S.A.グレイス
東京都港区西新橋1-23-3
坪数:16.65 坪
坪単価:23,000 円(坪)
-
石井ビル
東京都港区新橋3-1-10
坪数:33.46 坪
坪単価:16,000 円(坪)
-
近鉄銀座中央通りビルⅢ
東京都港区新橋1-7-10
坪数:35.1 坪
坪単価:26,001 円(坪)
-
アヴァンセ虎ノ門ビル
東京都港区西新橋2-13-15
坪数:33.22 坪
坪単価:34,618 円(坪)
-
ル・グラシエルBLDG.5
東京都港区新橋5-20-1
坪数:27 坪
坪単価:10,500 円(坪)