四谷トーセイビル(物件No:91789166)
四谷トーセイビルは、新宿区四谷にある貸事務所物件です。最寄駅は東京メトロ丸ノ内線四谷三丁目駅、都営新宿線曙橋駅、JR千駄ヶ谷駅となっています。1990年竣工で、基準階が86.85坪の賃貸オフィスビルです。床はOAフロア、Pタイルで、天井の高さは2560mm。トイレは男女別で、空調は個別空調です。エレベーターは2基あり、駐車場が利用可能です。最寄駅から徒歩3分。複数路線利用可能な新宿区四谷の貸事務所です。
| 階 | 面積 | 賃料 | 共益費 | 敷金 | 入居日 | お問合せ | お気に入り |
|---|---|---|---|---|---|---|---|
| 9F |
86.85 坪 287.11 ㎡ |
1,737,000 円 20,000 円(坪) |
無 |
17,370,000 円 10 ヶ月 |
2026/08/01 |
|
|
| 階 | 面積 | 賃料 | 共益費 | 敷金 | 入居日 | お問合せ | お気に入り |
|---|---|---|---|---|---|---|---|
| 9F |
86.85 坪 287.11 ㎡ |
1,737,000 円 20,000 円(坪) |
無 |
17,370,000 円 10 ヶ月 |
2026/08/01 |
|
|
-
物件情報
-
設備情報
- トイレ
- 室外男女別
- 床
- フリーアクセス
- 空調
- 個別空調
- セキュリティ
- 有
- 駐車場
- 有
- 会議室
- -
- エレベーター
- 2基
- 天井高
- 2560mm
-
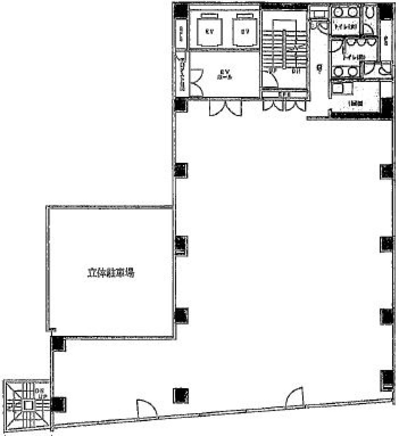
間取り図
-
近隣相場情報
四谷4丁目(50~100坪)の相場
24000 円 (坪)
※ビルサク調べ
周辺施設情報
| コンビニ |
セブンイレブン/四谷4丁目/87m(徒歩1分) ファミリーマート/四谷三丁目店/120m(徒歩1分) |
|---|---|
| 郵便局/銀行 |
ゆうちょ/ATM 本店 ファミリーマート四谷三丁目店内出張所/[取扱]ATM/カードATM/120m(徒歩1分) りそな銀行/ATM 四谷出張所/[営業時間]平日/8:00~21:00 土・日・祝/8:00~21:00/54m(徒歩1分) |
| 飲食店 |
和欧食堂 AGITO/11時45分~14時30分 17時30分~22時00分/170m(徒歩2分) 東京麺珍亭本舗 四谷四丁目店/11時00分~1時00分/130m(徒歩2分) |
| カフェ |
コメダ珈琲/新宿御苑前店/[営業時間]7:00~21:30/450m(徒歩7分) ドトール/四谷3丁目店/■通常営業時間 平日 7:00~20:00 土曜 7:30~19:00 日祝 8:30~19:00/290m(徒歩4分) |
| コインパーキング |
名鉄協商パーキング/四谷4丁目 [料金] [料金]全日 0:00~24:00 15分 200円 20:00~7:00 [最大料金] [料金]最大料金 400円 月~金・土 7:00~20:00 最大料金 2,500円 日祝 7:00~20:00 最大料金 1,400円 [台数]4台 タイムズ/新宿愛住町第3 [料金] [全日]通常料金 / 8:00~18:00 15分 220円 18:00~8:00 20分 220円 [最大料金] [全日]8:00~18:00 最大料金1980円 18:00~8:00 最大料金660円 [台数]9 |
周辺地図
四谷トーセイビルは、新宿区四谷にある貸事務所物件です。最寄駅は東京メトロ丸ノ内線四谷三丁目駅、都営新宿線曙橋駅、JR千駄ヶ谷駅となっています。1990年竣工で、基準階が86.85坪の賃貸オフィスビルです。床はOAフロア、Pタイルで、天井の高さは2560mm。トイレは男女別で、空調は個別空調です。エレベーターは2基あり、駐車場が利用可能です。最寄駅から徒歩3分。複数路線利用可能な新宿区四谷の貸事務所です。
全フロア情報
更新日:2026年2月16日
| 階 | 面積 | 賃料 | 共益費 | 敷金 | 入居日 | お問合せ | お気に入り | |
|---|---|---|---|---|---|---|---|---|
| 2F |
90.22 坪 298.25 ㎡ |
※現在空室情報はございません |
※現在空室情報は 確認する |
|||||
| 3F |
86.85 坪 287.11 ㎡ |
※現在空室情報はございません |
※現在空室情報は 確認する |
|||||
| 5F |
86.85 坪 287.11 ㎡ |
※現在空室情報はございません |
※現在空室情報は 確認する |
|||||
| 6F |
86.85 坪 287.11 ㎡ |
※現在空室情報はございません |
※現在空室情報は 確認する |
|||||
| 7F |
86.85 坪 287.11 ㎡ |
1,737,000 円 20,000 円(坪) |
無 |
17,370,000 円 10 ヶ月 |
2026/08/01 |
|
|
|
| 8F |
86.85 坪 287.11 ㎡ |
1,737,000 円 20,000 円(坪) |
無 |
17,370,000 円 10 ヶ月 |
2026/08/01 |
|
|
|
| 9F |
86.85 坪 287.11 ㎡ |
1,737,000 円 20,000 円(坪) |
無 |
17,370,000 円 10 ヶ月 |
2026/08/01 |
|
|
|
お問い合わせ
似た条件の物件はこちら
-
第2田中ビル
東京都新宿区四谷本塩町14-1
坪数:96.54 坪
坪単価:14,502 円(坪)
-
第2新興ビル(パレ・ウルー)
東京都新宿区四谷4-28-14
坪数:68.76 坪
坪単価:12,000 円(坪)
-
Arbor Yotsuya
東京都新宿区信濃町1-2
坪数:83.52 坪
坪単価:29,000 円(坪)
-
第3山田ビル
東京都新宿区愛住町22-7
坪数:66.83 坪
坪単価:11,401 円(坪)
-
カーサ四谷
東京都新宿区四谷本塩町15-12
坪数:97.78 坪
坪単価:9,000 円(坪)
-
内藤町ハウス
東京都新宿区内藤町1-121
坪数:67.71 坪
坪単価:22,153 円(坪)