後楽園SAJビル(物件No:91787196)
後楽園SAJビルは、文京区本郷にある地下1階、地上9階建ての賃貸オフィスです。最寄駅は都営三田線の春日駅から徒歩2分、東京メトロ丸ノ内線の後楽園駅から徒歩4分、JR中央・総武線の水道橋駅から徒歩6分です。1992年竣工の基準階面積が65.97坪の鉄骨造です。設備としては、エレベーターが1基あります。トイレは男女別です。空調は個別空調です。床仕様はフリーアクセスです。天高は2500mmです。耐震設計となっている、複数駅利用可能なアクセスの良い文京区本郷の賃貸事務所です。
-
物件情報
-
設備情報
- トイレ
- 男女別
- 床
- フリーアクセス
- 空調
- 個別空調
- セキュリティ
- -
- 駐車場
- 無
- 会議室
- -
- エレベーター
- 1基
- 天井高
- 2400mm
-
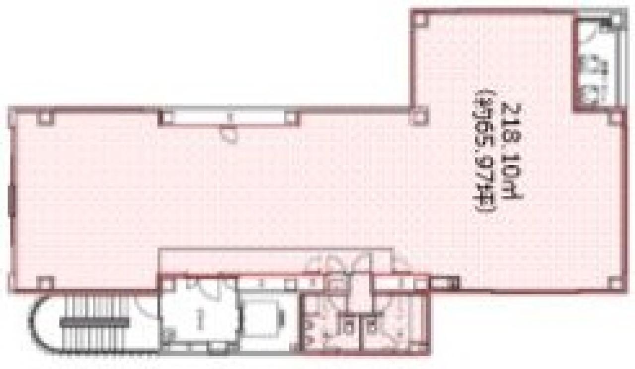
間取り図
-
近隣相場情報
本郷1丁目(50~100坪)の相場
22549 円 (坪)
※ビルサク調べ
周辺地図
後楽園SAJビルは、文京区本郷にある地下1階、地上9階建ての賃貸オフィスです。最寄駅は都営三田線の春日駅から徒歩2分、東京メトロ丸ノ内線の後楽園駅から徒歩4分、JR中央・総武線の水道橋駅から徒歩6分です。1992年竣工の基準階面積が65.97坪の鉄骨造です。設備としては、エレベーターが1基あります。トイレは男女別です。空調は個別空調です。床仕様はフリーアクセスです。天高は2500mmです。耐震設計となっている、複数駅利用可能なアクセスの良い文京区本郷の賃貸事務所です。
全フロア情報
更新日:2026年1月14日
| 階 | 面積 | 賃料 | 共益費 | 敷金 | 入居日 | お問合せ | お気に入り | |
|---|---|---|---|---|---|---|---|---|
| 2F |
65.97 坪 218.08 ㎡ |
※現在空室情報はございません |
※現在空室情報は 確認する |
|||||
| 2-9F |
463.52 坪 1532.3 ㎡ |
※現在空室情報はございません |
※現在空室情報は 確認する |
|||||
| 3F |
65.97 坪 218.08 ㎡ |
※現在空室情報はございません |
※現在空室情報は 確認する |
|||||
| 4F |
65.97 坪 218.08 ㎡ |
※現在空室情報はございません |
※現在空室情報は 確認する |
|||||
| 5F |
65.97 坪 218.08 ㎡ |
※現在空室情報はございません |
※現在空室情報は 確認する |
|||||
| 6F |
65.97 坪 218.08 ㎡ |
※現在空室情報はございません |
※現在空室情報は 確認する |
|||||
| 7F |
65.97 坪 218.08 ㎡ |
※現在空室情報はございません |
※現在空室情報は 確認する |
|||||
| 8F |
33.79 坪 111.7 ㎡ |
相談 |
101,370 円 3,000 円(坪) |
12ヶ月 |
2026/07 |
|
|
|
| 9F |
33.97 坪 112.3 ㎡ |
※現在空室情報はございません |
※現在空室情報は 確認する |
|||||
お問い合わせ
似た条件の物件はこちら
-
三共小石川THビル
東京都文京区小石川5-36-5
坪数:59.49 坪
坪単価:12,000 円(坪)
-
ITP本郷オフィス
東京都文京区湯島2-25-7
坪数:53.51 坪
坪単価:14,000 円(坪)
-
IS弓町ビル
東京都文京区本郷1-28-24
坪数:57.24 坪
坪単価:11,500 円(坪)
-
ソフィアお茶の水
東京都文京区湯島2-4-3
坪数:77.23 坪
坪単価:14,089 円(坪)
-
本郷天理ビル
東京都文京区本郷3-16-4
坪数:53.03 坪
坪単価:10,500 円(坪)
-
本郷BNビル
東京都文京区本郷2-27-18
坪数:73.48 坪
坪単価:24,000 円(坪)
-
全水道会館
東京都文京区本郷1-4-1
坪数:65 坪
坪単価:14,091 円(坪)
-
ACN小石川スクエア
東京都文京区小日向4-2-6
坪数:71.06 坪
坪単価:20,000 円(坪)
-
ハイシティ湯島
東京都文京区湯島3-4-6
坪数:65.38 坪
坪単価:9,893 円(坪)
-
UT本郷ビル
東京都文京区本郷2-12-10
坪数:56.84 坪
坪単価:25,114 円(坪)