聖公会神田ビル(物件No:91787130)
聖公会神田ビルは、千代田区外神田にある貸事務所物件です。最寄り駅は、JR線、つくばエクスプレスのの秋葉原駅、東京メトロ銀座線の末広町駅、JR中央総武線、丸ノ内線の御茶ノ水駅、東京メトロ千代田線の湯島駅、東京メトロ銀座線の上野広小路駅、都営新宿線の小川町駅、JR線の御徒町駅、東京メトロ日比谷線の中御徒町駅です。1991年竣工で、基準階が110.71坪の賃貸オフィスビルです。床はOAフロアとなっております。空調は個別空調で、トイレは男女別です。機械警備で、エレベーターは2基あります。駐車場があり、複数路線利用可能な、アクセスの良い千代田区外神田の貸事務所です。
-
物件情報
-
設備情報
- トイレ
- 室外男女別
- 床
- フリーアクセス
- 空調
- 個別空調
- セキュリティ
- 有
- 駐車場
- 有
- 会議室
- -
- エレベーター
- 2基
- 天井高
- 2450mm
-
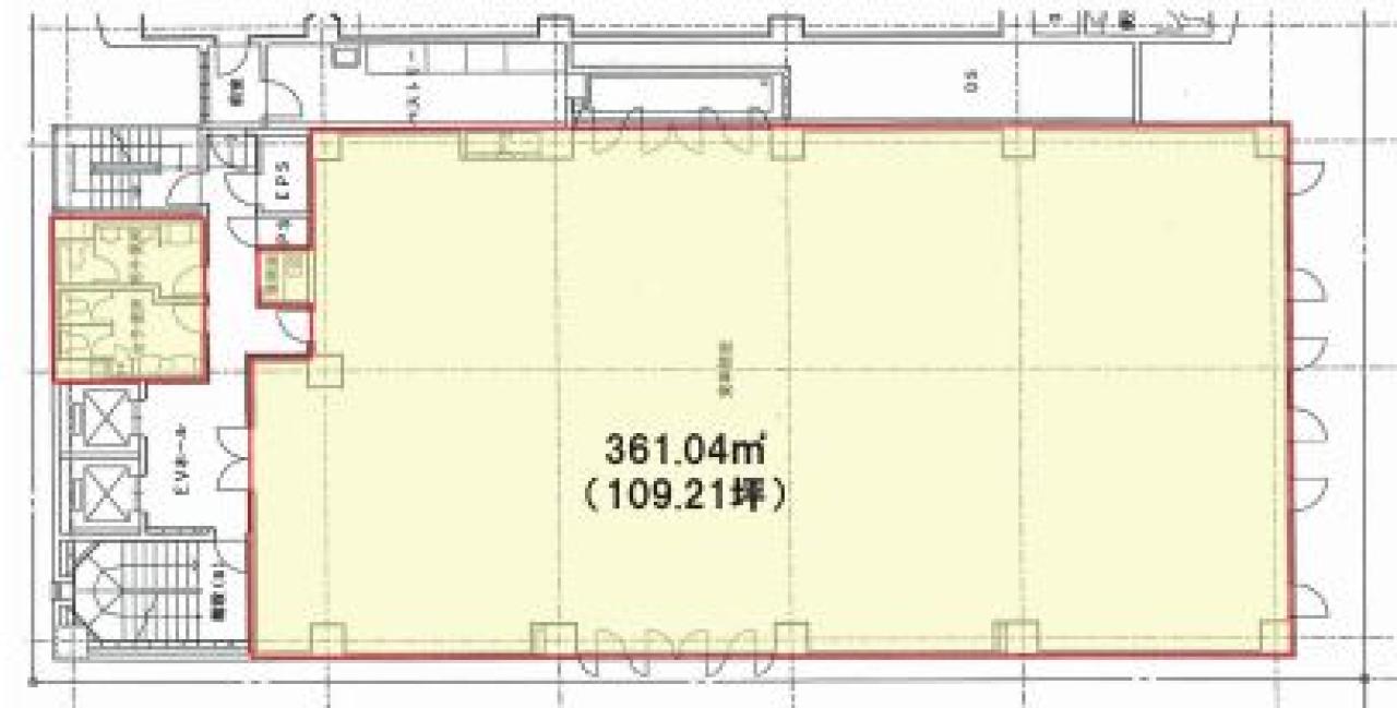
間取り図
-
近隣相場情報
外神田3丁目(100坪以上)の相場
20000 円 (坪)
※ビルサク調べ
周辺施設情報
コンビニ |
ファミリーマート/外神田四丁目店/180m(徒歩2分) リーベンハウス/秋葉原ファーストビル店/450m(徒歩6分) |
---|---|
郵便局/銀行 |
信用組合/第一勧業信用組合 秋葉原支店/130m(徒歩2分) みずほ銀行/ATM ピーコックストア神田妻恋坂店出張所/[営業時間] [ATM]平日 9:00~22:00 土曜日 9:00~22:00 日曜日 9:00~22:00 祝日・振替休日 曜日に準ずる 備考 通帳繰越機 設置なし/220m(徒歩3分) |
飲食店 |
モーゼスさんのケバブ AKIBA STYLE/10時00分~20時00分/10m(徒歩1分) Little BSD 小悪魔の宴/18時00分~23時00分/46m(徒歩1分) |
カフェ |
鹿角巷/秋葉原店/[営業時間]11:30~21:00 [休業日]不定休/170m(徒歩2分) ドトール/御茶ノ水北店/[営業時間]平日 7:00~20:00 土曜 8:00~18:00 日祝 8:00~17:00 [備考]総席数:29(禁煙席:20 喫煙席:9)/喫煙席(加熱)/500m(徒歩7分) |
コインパーキング |
NPC24H/外神田第2 [料金] 20分/300円 [最大料金] No.3・4のみ 12時間毎 3300円 全車室 800円(20時~8時) [台数]4台 タイムズ駐車場/TNS外神田3丁目 [料金] [全日]8:00~0:00 15分 300円 [全日]0:00~8:00 60分 100円 [最大料金] [全日]駐車後5時間 最大料金2800円 [台数]10 |
周辺地図
聖公会神田ビルは、千代田区外神田にある貸事務所物件です。最寄り駅は、JR線、つくばエクスプレスのの秋葉原駅、東京メトロ銀座線の末広町駅、JR中央総武線、丸ノ内線の御茶ノ水駅、東京メトロ千代田線の湯島駅、東京メトロ銀座線の上野広小路駅、都営新宿線の小川町駅、JR線の御徒町駅、東京メトロ日比谷線の中御徒町駅です。1991年竣工で、基準階が110.71坪の賃貸オフィスビルです。床はOAフロアとなっております。空調は個別空調で、トイレは男女別です。機械警備で、エレベーターは2基あります。駐車場があり、複数路線利用可能な、アクセスの良い千代田区外神田の貸事務所です。
全フロア情報
更新日:2021年1月14日
階 | 面積 | 賃料 | 共益費 | 敷金 | 入居日 | お問合せ | お気に入り | |
---|---|---|---|---|---|---|---|---|
2F |
109.21 坪 361.02 ㎡ |
※現在空室情報はございません |
※現在空室情報は 確認する |
|||||
3F |
110.71 坪 365.98 ㎡ |
※現在空室情報はございません |
※現在空室情報は 確認する |
|||||
5F |
110.71 坪 365.98 ㎡ |
※現在空室情報はございません |
※現在空室情報は 確認する |
|||||
8F |
85.06 坪 281.19 ㎡ |
※現在空室情報はございません |
※現在空室情報は 確認する |
|||||
9F |
76.06 坪 251.44 ㎡ |
※現在空室情報はございません |
※現在空室情報は 確認する |
お問い合わせ
似た条件の物件はこちら
-
偕楽ビル(新末広)
東京都千代田区外神田6-5-12
坪数:126 坪
坪単価:14,000 円(坪)
-
神田ファースト
東京都千代田区神田紺屋町45-1
坪数:88.77 坪
坪単価:22,000 円(坪)
-
THE PORTAL IWAMOTOCHO
東京都千代田区岩本町2-8-8
坪数:87.84 坪
坪単価:24,000 円(坪)
-
紀繁ビル
東京都千代田区岩本町1-10-3
坪数:120.58 坪
坪単価:18,000 円(坪)
-
WORK VILLA MYJ Kanda
東京都千代田区神田小川町1-4-4
坪数:95.69 坪
坪単価:33,441 円(坪)
-
センボービル
東京都千代田区内神田2-16-9
坪数:114.4 坪
坪単価:16,300 円(坪)
-
佐藤産業ビル
東京都千代田区岩本町2-6-9
坪数:92.17 坪
坪単価:15,000 円(坪)
-
パークサイド1
東京都千代田区神田司町2-2-7
坪数:95.77 坪
坪単価:18,000 円(坪)
-
ムラタヤビル
東京都千代田区神田練塀町68
坪数:88 坪
坪単価:13,000 円(坪)
-
龍名館本店ビル
東京都千代田区神田駿河台3-4
坪数:111.66 坪
坪単価:17,000 円(坪)
関連エリアから探す
- 内神田
- 神田淡路町
- 神田小川町
- 神田鍛冶町
- 神田須田町
- 神田駿河台
- 神田多町
- 神田司町
- 神田錦町
- 神田美土代町
- 岩本町
- 鍛冶町
- 神田岩本町
- 神田北乗物町
- 神田紺屋町
- 神田富山町
- 神田西福田町
- 神田東松下町
- 神田東紺屋町
- 神田美倉町
- 東神田
- 神田相生町
- 神田和泉町
- 神田佐久間町
- 神田佐久間河岸
- 神田練塀町
- 神田花岡町
- 神田松永町
- 外神田
- 神田平河町