いろいろ聞いてみる

京橋の賃貸オフィス

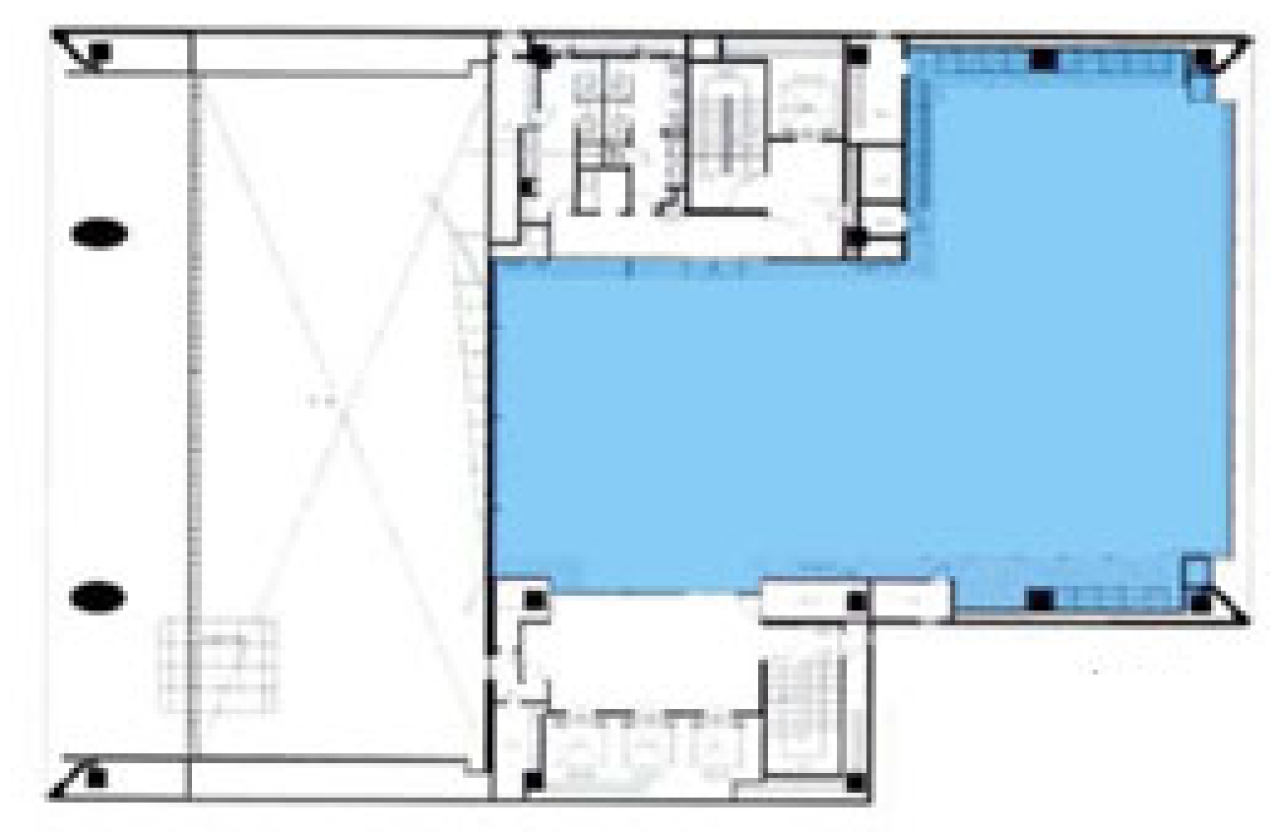
読売八重洲ビル(物件No:91785143)

読売八重洲ビルは東京都中央区京橋にある地下1階、地上9階建ての賃貸事務所です。最寄駅は東京メトロ銀座線の京橋駅から徒歩2分、都営浅草線の宝町駅から徒歩2分、JR線の東京駅から徒歩6分です。2002年3月竣工の基準階面積が237.07坪の鉄骨造です。設備としてはエレベーターが3基あり、駐車場もあります。機械警備もあります。トイレは室外男女別です。空調は個別空調です。床仕様はフリーアクセスです。天高は2700mmです。耐震性は新耐震となっている、最寄駅から駅近で便利な東京都中央区京橋の賃貸オフィスです。

  • 読売八重洲ビル
  • 読売八重洲ビル
  • 読売八重洲ビル
  • 読売八重洲ビル
面積 賃料 共益費 敷金 入居日 お問合せ お気に入り
2F

119.87 坪

396.26 ㎡

※現在空室情報はございません

※現在空室情報は
ございません

最新情報を
確認する

周辺施設情報

コンビニ

ファミリーマート/京橋二丁目店/160m(徒歩2分)

ファミリーマート/宝町店/130m(徒歩1分)

郵便局/銀行

三井住友銀行/京橋支店/[営業時間]平日9:00~15:00/10m(徒歩1分)

広島銀行/東京支店/[営業時間]平日 9:00~15:00 [ATM]平日 9:00~17:00 土曜日 - 土曜日 - 日祝日 - 日祝日 - /160m(徒歩1分)

飲食店

そばよし 京橋店/7時30分~20時00分/77m(徒歩1分)

らっきょう/11時30分~13時30分,17時00分~23時00分/25m(徒歩1分)

カフェ

プロント/読売八重洲ビル店/[営業時間]平日:カフェ 8:00~19:00 /7m(徒歩1分)

上島珈琲店/京橋2丁目店/[営業時間]平日 7:00~21:00 / 土日祝 8:00~19:00/81m(徒歩1分)

コインパーキング

三井のリパーク/京橋2丁目

[料金]

[料金]全日 00:00~24:00 10分/400円

[台数]3

NPC24H/京橋1丁目

[料金]

?通常料金 15分/400円(8時~22時) 60分/100円(22時~8時)

[最大料金]

【 月~土 】 No.6~21・24~32 当日最大 3800円(1回限り)

【 日・祝 】 全車室 当日最大 1800円(1回限り)

[台数]31台

周辺地図

読売八重洲ビルは東京都中央区京橋にある地下1階、地上9階建ての賃貸事務所です。最寄駅は東京メトロ銀座線の京橋駅から徒歩2分、都営浅草線の宝町駅から徒歩2分、JR線の東京駅から徒歩6分です。2002年3月竣工の基準階面積が237.07坪の鉄骨造です。設備としてはエレベーターが3基あり、駐車場もあります。機械警備もあります。トイレは室外男女別です。空調は個別空調です。床仕様はフリーアクセスです。天高は2700mmです。耐震性は新耐震となっている、最寄駅から駅近で便利な東京都中央区京橋の賃貸オフィスです。

全フロア情報

更新日:2018年4月9日

面積 賃料 共益費 敷金 入居日 お問合せ お気に入り
2F

119.87 坪

396.26 ㎡

※現在空室情報はございません

※現在空室情報は
ございません

最新情報を
確認する
3F

237.07 坪

783.70 ㎡

※現在空室情報はございません

※現在空室情報は
ございません

最新情報を
確認する
4F

237.07 坪

783.70 ㎡

※現在空室情報はございません

※現在空室情報は
ございません

最新情報を
確認する
5F

237.07 坪

783.70 ㎡

※現在空室情報はございません

※現在空室情報は
ございません

最新情報を
確認する

お問い合わせ

必須
必須
必須
必須
必須

関連エリアから探す

駅から探す

お問い合わせ

物件に関してのお問い合わせ

「失敗しないオフィス移転サポート」物件探しから移転までスムーズで担当者様がとにかく楽になるサービスです。

050-7587-0049平日 9:00~18:00

メールでお問い合わせ

フリーワード検索