いろいろ聞いてみる

羽衣町の賃貸オフィス

関内駅前マークビル(物件No:91784429)

関内駅前マークビルは、神奈川県横浜市中区羽衣町にある地下1階、地上9階建ての賃貸事務所です。最寄駅はJR根岸線の関内駅から徒歩3分です。1986年5月竣工の鉄骨鉄筋コンクリート造です。設備としては、駐車場があります。空調は個別空調です。床仕様はフリーアクセスです。耐震設計となっている、最寄駅から近くて便利な神奈川県横浜市中区羽衣町の賃貸オフィスです。

  • 関内駅前マークビル
  • 関内駅前マークビル
  • 関内駅前マークビル
  • 関内駅前マークビル
面積 賃料 共益費 敷金 入居日 お問合せ お気に入り
4F

(403区画)

24 坪

79.34 ㎡

※現在空室情報はございません

※現在空室情報は
ございません

最新情報を
確認する
  • 物件情報

    住所
    神奈川県横浜市中区羽衣町2-7-10
    最寄り駅
    JR根岸線 関内駅 徒歩3分
    竣工
    1986年
    耐震
    新耐震基準
    規模・構造
    B1F - 9F  鉄骨鉄筋コンクリート造
  • 設備情報

    トイレ
    -
    フリーアクセス
    空調
    個別空調
    セキュリティ
    -
    駐車場
    会議室
    -
    エレベーター
    1基
    天井高
    -
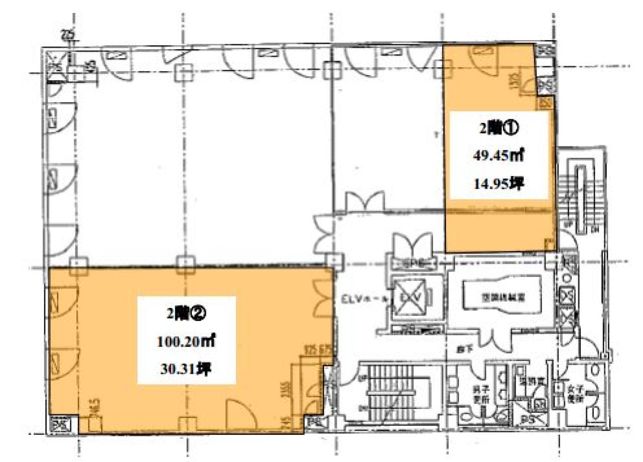
  • 間取り図

    間取り図

  • 近隣相場情報

    羽衣町2丁目(20~30坪)の相場

    調査中

周辺地図

関内駅前マークビルは、神奈川県横浜市中区羽衣町にある地下1階、地上9階建ての賃貸事務所です。最寄駅はJR根岸線の関内駅から徒歩3分です。1986年5月竣工の鉄骨鉄筋コンクリート造です。設備としては、駐車場があります。空調は個別空調です。床仕様はフリーアクセスです。耐震設計となっている、最寄駅から近くて便利な神奈川県横浜市中区羽衣町の賃貸オフィスです。

全フロア情報

更新日:2024年10月9日

面積 賃料 共益費 敷金 入居日 お問合せ お気に入り
1F

(101区画)

53.34 坪

176.33 ㎡

※現在空室情報はございません

※現在空室情報は
ございません

最新情報を
確認する
2F

14.95 坪

49.42 ㎡

※現在空室情報はございません

※現在空室情報は
ございません

最新情報を
確認する
2F

(1区画)

30.31 坪

100.2 ㎡

※現在空室情報はございません

※現在空室情報は
ございません

最新情報を
確認する
2F

(2区画)

41.21 坪

136.23 ㎡

※現在空室情報はございません

※現在空室情報は
ございません

最新情報を
確認する
3F

23.96 坪

79.21 ㎡

※現在空室情報はございません

※現在空室情報は
ございません

最新情報を
確認する
4F

(403区画)

24 坪

79.34 ㎡

※現在空室情報はございません

※現在空室情報は
ございません

最新情報を
確認する
5F

71.48 坪

236.3 ㎡

※現在空室情報はございません

※現在空室情報は
ございません

最新情報を
確認する
6F

(601区画)

30.7 坪

101.49 ㎡

※現在空室情報はございません

※現在空室情報は
ございません

最新情報を
確認する
8F

41.24 坪

136.33 ㎡

※現在空室情報はございません

※現在空室情報は
ございません

最新情報を
確認する
8F

(802区画)

41.24 坪

136.33 ㎡

※現在空室情報はございません

※現在空室情報は
ございません

最新情報を
確認する
8F

(803区画)

23.94 坪

79.14 ㎡

※現在空室情報はございません

※現在空室情報は
ございません

最新情報を
確認する
9F

(903区画)

29.98 坪

99.11 ㎡

※現在空室情報はございません

※現在空室情報は
ございません

最新情報を
確認する

お問い合わせ

必須
必須
必須
必須
必須

お問い合わせ

物件に関してのお問い合わせ

「失敗しないオフィス移転サポート」物件探しから移転までスムーズで担当者様がとにかく楽になるサービスです。

050-7587-0049平日 9:00~18:00

メールでお問い合わせ

フリーワード検索