茅場町第3長岡ビル(物件No:91783121)
茅場町第3長岡ビルは中央区日本橋茅場町にある地下1階、地上10階建ての賃貸事務所です。最寄駅は東京メトロ日比谷線の茅場町駅から徒歩1分、東京メトロ東西線の茅場町駅から徒歩1分、東京メトロ日比谷線の八丁堀駅から徒歩5分、JR京葉線の八丁堀駅から徒歩7分、都営浅草線の日本橋駅から徒歩6分、JR線の東京駅から徒歩12分です。1986年10月竣工の基準階面積が98.5坪の鉄骨鉄筋コンクリート造です。設備としては、エレベーターが1基あり、機械警備もあります。トイレは男女別です。空調は個別空調です。床仕様はフリーアクセスです。耐震性は新耐震となっている、複数駅利用可能な、アクセスの良い中央区日本橋茅場町の賃貸オフィスです。
| 階 | 面積 | 賃料 | 共益費 | 敷金 | 入居日 | お問合せ | お気に入り |
|---|---|---|---|---|---|---|---|
| 2F |
54.12 坪 178.91 ㎡ |
相談 |
相談 |
相談 |
相談 |
|
|
| 階 | 面積 | 賃料 | 共益費 | 敷金 | 入居日 | お問合せ | お気に入り |
|---|---|---|---|---|---|---|---|
| 2F |
54.12 坪 178.91 ㎡ |
相談 |
相談 |
相談 |
相談 |
|
|
-
物件情報
-
設備情報
- トイレ
- 男女別
- 床
- タイルカーペット
- 空調
- 個別空調
- セキュリティ
- 有
- 駐車場
- 無
- 会議室
- -
- エレベーター
- 1基
- 天井高
- -
-
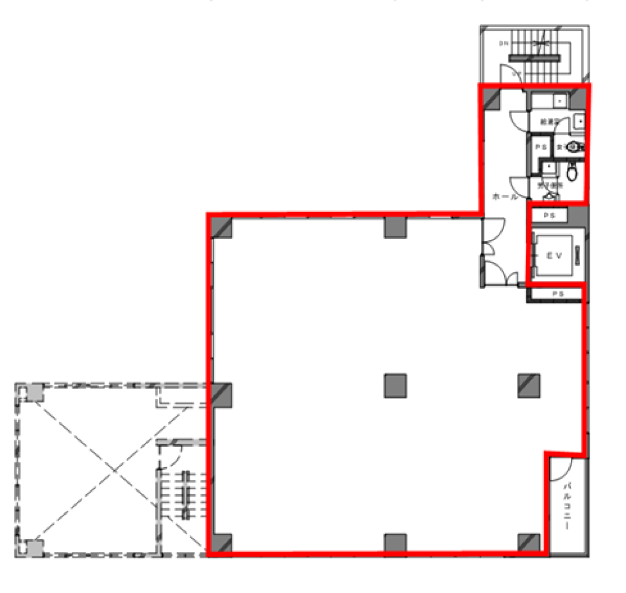
間取り図
-
近隣相場情報
日本橋茅場町2丁目(50~100坪)の相場
20675 円 (坪)
※ビルサク調べ
周辺施設情報
| コンビニ |
ローソン/日本橋茅場町/260m(徒歩4分) セブンイレブン/日本橋茅場町2丁目/110m(徒歩1分) |
|---|---|
| 郵便局/銀行 |
三菱UFJ銀行/ATM 茅場町駅前/[ATM]平日 7:00~24:00 土曜日 7:00~24:00 日・祝日 7:00~24:00 /180m(徒歩3分) ローソン銀行/茅場町駅前共同出張所/[営業時間]24時間 /260m(徒歩4分) |
| 飲食店 |
伊達のくら 茅場町店/11時30分~14時00分 17時00分~22時30分/41m(徒歩1分) ふくの鳥 茅場町店/11時30分~14時15分 16時30分~23時00分/81m(徒歩1分) |
| カフェ |
ベローチェ/茅場町駅前店/[営業時間]7:00~23:00/220m(徒歩3分) ドトール/茅場町店/[営業時間]平日:7:00~20:30 土曜日:8:00~16:00 日 祝:8:00~16:00 /120m(徒歩1分) |
| コインパーキング |
ユアー・パーキング/日本橋茅場町第2 [料金] [料金]【全日】 08時~20時 20分/400円 20時~08時 60分/100円 [最大料金] 【最大料金】 平 日:入庫後6時間最大3,000円(1回限り) 土日祝:入庫後6時間最大1,300円(1回限り) [台数]2 タイムズ駐車場/TNS日本橋茅場町 [料金] [月~土]通常料金 / 8:00~20:00 20分 400円 20:00~8:00 60分 100円 [日・祝]通常料金 / 8:00~20:00 30分 300円 20:00~8:00 60分 100円? [最大料金] ?[月~土]当日1日最大料金3800円(24時迄) [日・祝]当日1日最大料金1500円(24時迄) [台数]48 |
周辺地図
茅場町第3長岡ビルは中央区日本橋茅場町にある地下1階、地上10階建ての賃貸事務所です。最寄駅は東京メトロ日比谷線の茅場町駅から徒歩1分、東京メトロ東西線の茅場町駅から徒歩1分、東京メトロ日比谷線の八丁堀駅から徒歩5分、JR京葉線の八丁堀駅から徒歩7分、都営浅草線の日本橋駅から徒歩6分、JR線の東京駅から徒歩12分です。1986年10月竣工の基準階面積が98.5坪の鉄骨鉄筋コンクリート造です。設備としては、エレベーターが1基あり、機械警備もあります。トイレは男女別です。空調は個別空調です。床仕様はフリーアクセスです。耐震性は新耐震となっている、複数駅利用可能な、アクセスの良い中央区日本橋茅場町の賃貸オフィスです。
全フロア情報
更新日:2025年12月2日
| 階 | 面積 | 賃料 | 共益費 | 敷金 | 入居日 | お問合せ | お気に入り | |
|---|---|---|---|---|---|---|---|---|
| B1F |
44.89 坪 148.4 ㎡ |
※現在空室情報はございません |
※現在空室情報は 確認する |
|||||
| 1F |
11.01 坪 36.4 ㎡ |
※現在空室情報はございません |
※現在空室情報は 確認する |
|||||
| 2F |
54.12 坪 178.91 ㎡ |
相談 |
相談 |
相談 |
相談 |
|
|
|
|
2F
(1区画) |
12.76 坪 42.18 ㎡ |
※現在空室情報はございません |
※現在空室情報は 確認する |
|||||
| 3F |
65.03 坪 214.97 ㎡ |
※現在空室情報はございません |
※現在空室情報は 確認する |
|||||
| 4F |
76 坪 251.24 ㎡ |
※現在空室情報はございません |
※現在空室情報は 確認する |
|||||
| 5F |
65.03 坪 214.97 ㎡ |
※現在空室情報はございません |
※現在空室情報は 確認する |
|||||
| 6F |
55.64 坪 183.93 ㎡ |
※現在空室情報はございません |
※現在空室情報は 確認する |
|||||
| 7F |
44.91 坪 148.46 ㎡ |
※現在空室情報はございません |
※現在空室情報は 確認する |
|||||
| 9F |
28.74 坪 95.01 ㎡ |
※現在空室情報はございません |
※現在空室情報は 確認する |
|||||
お問い合わせ
似た条件の物件はこちら
-
大湯ビル
東京都中央区日本橋茅場町2-6-8
坪数:43 坪
坪単価:20,000 円(坪)
-
シーラックグループ 日本橋兜町ビル
東京都中央区日本橋兜町18-5
坪数:41.9 坪
坪単価:26,000 円(坪)
-
ネオ神谷
東京都中央区八丁堀4-10-11
坪数:53.75 坪
坪単価:8,500 円(坪)
-
茅場町会館
東京都中央区日本橋茅場町1-12-4
坪数:59.4 坪
坪単価:13,000 円(坪)
-
京橋北見ビル東館
東京都中央区八丁堀3-4-10
坪数:65.85 坪
坪単価:12,000 円(坪)
-
茅場町SKKビル
東京都中央区日本橋茅場町3-10-2
坪数:39.31 坪
坪単価:13,198 円(坪)
-
八丁堀サード
東京都中央区八丁堀3-14-4
坪数:65.9 坪
坪単価:23,000 円(坪)
-
八丁堀岡谷ビル
東京都中央区八丁堀4-11-5
坪数:63.02 坪
坪単価:16,000 円(坪)
-
コア京橋ビル
東京都中央区八丁堀2-21-2
坪数:48.24 坪
坪単価:15,500 円(坪)
-
馬事畜産会館
東京都中央区新川2-6-16
坪数:66.27 坪
坪単価:13,225 円(坪)