ミクニビル(物件No:91783028)
ミクニビルは、千代田区麹町にある地上10階建ての賃貸事務所です。最寄駅は東京メトロ半蔵門線の半蔵門駅から徒歩2分、東京メトロ南北線の永田町駅から徒歩8分、東京メトロ有楽町線の麹町駅から徒歩5分です。1986年2月竣工の基準階面積が20.72坪の鉄骨鉄筋コンクリート造です。設備としては、エレベーターが1基あります。セキュリティは機械警備です。トイレは室内男女共用です。空調は個別空調です。床仕様はタイルカーペットです。耐震設計となっている、最寄駅から近くて便利な千代田区麹町の賃貸オフィスです。
-
物件情報
-
設備情報
- トイレ
- 室内男女共用
- 床
- -
- 空調
- 個別空調
- セキュリティ
- 有
- 駐車場
- -
- 会議室
- -
- エレベーター
- 1基
- 天井高
- -
-
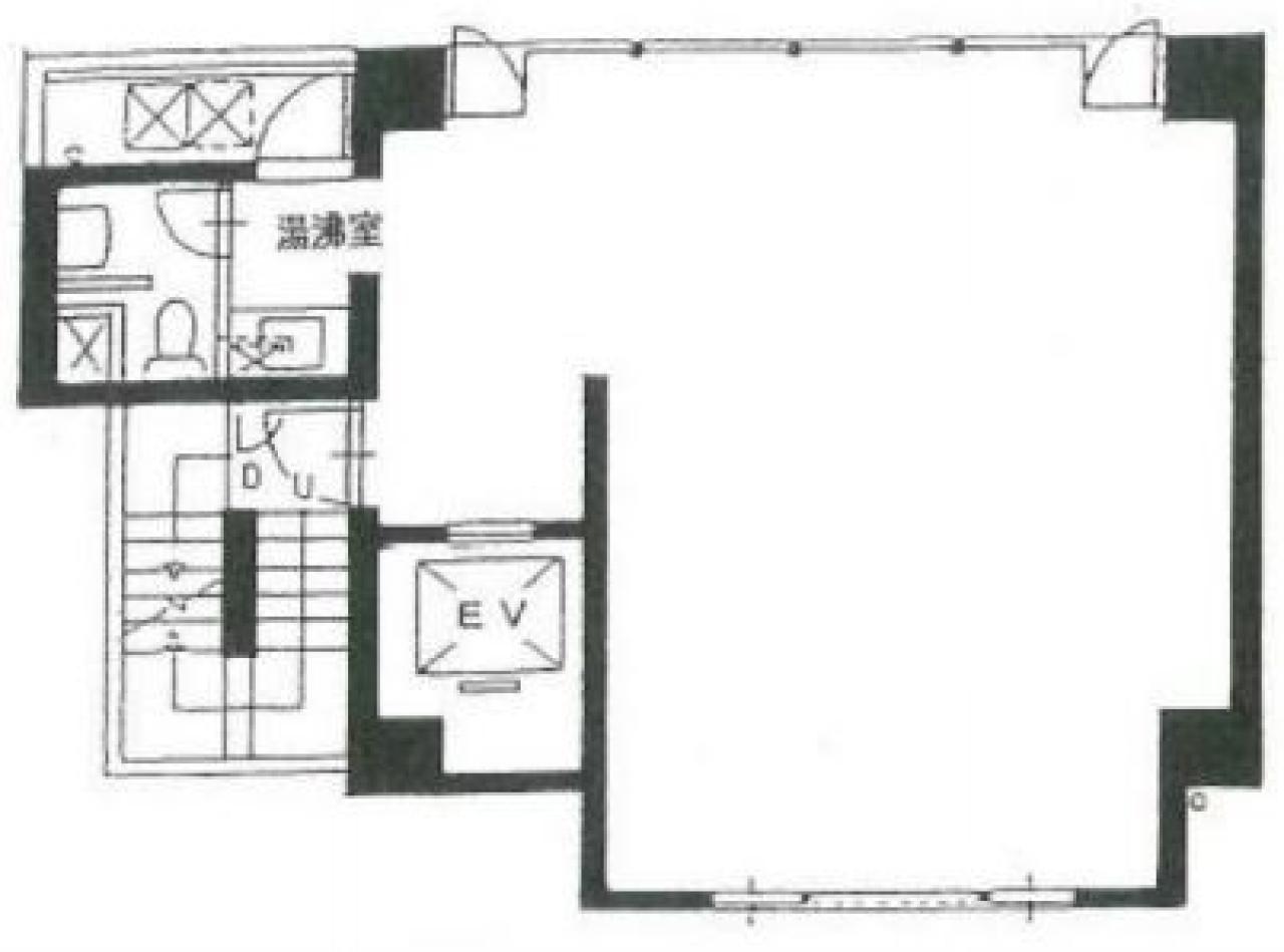
間取り図
-
近隣相場情報
麹町1丁目(20~30坪)の相場
16503 円 (坪)
※ビルサク調べ
周辺施設情報
| コンビニ |
ファミリーマート/麹町二丁目店/200m(徒歩3分) セブンイレブン/千代田区麹町3丁目/450m(徒歩6分) |
|---|---|
| 郵便局/銀行 |
三井住友銀行/ATM 半蔵門駅前出張所/[営業時間] [ATM]平日 7:00~24:00 土曜 7:00~24:00 日曜 7:00~21:00/140m(徒歩3分) りそな銀行/ATM 麹町日テレ通り出張所/[営業時間]平日/7:00~23:00 土/7:00~21:00 日・祝/8:00~21:00/500m(徒歩7分) |
| 飲食店 |
欧風カレー・ソレイユ/11時30分~14時30分、17時30分~21時30分/550m(徒歩8分) Dohkan/11時30分~22時00分/ |
| カフェ |
CAFFE PASCUCCI Kojimachi カフェ パスクッチ 麹町店/8時00分~22時00分/2m(徒歩1分) サンマルクカフェ/半蔵門店/[営業時間]7:00~21:00新型コロナウィルスの影響により営業時間が短縮する場合がございますので、営業時間は店舗までお問い合わせください [休業日]無 [備考]63席/店内全面禁煙/130m(徒歩2分) |
| コインパーキング |
Pat(近鉄)/千代田区麹町1丁目 [料金] 平日 7:00~20:00 10分500円 20:00~7:00 60分100円 土日祝 7:00~20:00 10分500円 20:00~7:00 60分100円 [最大料金] 夜間最大料金(20:00~7:00)500円 [台数]3台 GSパーク/アパホテル半蔵門平河町 [料金] 【全日】時間割料金 0:00~24:00 20分 400円 [台数]4台 |
周辺地図
ミクニビルは、千代田区麹町にある地上10階建ての賃貸事務所です。最寄駅は東京メトロ半蔵門線の半蔵門駅から徒歩2分、東京メトロ南北線の永田町駅から徒歩8分、東京メトロ有楽町線の麹町駅から徒歩5分です。1986年2月竣工の基準階面積が20.72坪の鉄骨鉄筋コンクリート造です。設備としては、エレベーターが1基あります。セキュリティは機械警備です。トイレは室内男女共用です。空調は個別空調です。床仕様はタイルカーペットです。耐震設計となっている、最寄駅から近くて便利な千代田区麹町の賃貸オフィスです。
全フロア情報
更新日:2025年12月2日
| 階 | 面積 | 賃料 | 共益費 | 敷金 | 入居日 | お問合せ | お気に入り | |
|---|---|---|---|---|---|---|---|---|
| 3F |
20.72 坪 68.5 ㎡ |
244,496 円 11,800 円(坪) |
66,304 円 3,200 円(坪) |
1,466,976 円 6 ヶ月 |
即日 |
|
|
|
| 5F |
20.72 坪 68.5 ㎡ |
※現在空室情報はございません |
※現在空室情報は 確認する |
|||||
| 7F |
20.72 坪 68.5 ㎡ |
※現在空室情報はございません |
※現在空室情報は 確認する |
|||||
お問い合わせ
似た条件の物件はこちら
-
ビュロー平河町
東京都千代田区平河町1-7-16
坪数:15.16 坪
坪単価:19,789 円(坪)
-
第2DMJビル
東京都千代田区九段南3-5-9
坪数:24.41 坪
坪単価:20,000 円(坪)
-
センダビル
東京都千代田区麹町3-7-9
坪数:19 坪
坪単価:9,000 円(坪)
-
jeVビル
東京都千代田区平河町2-16-16
坪数:18.06 坪
坪単価:12,735 円(坪)
-
隼東幸ビル
東京都千代田区隼町3-19
坪数:21.15 坪
坪単価:14,000 円(坪)
-
桔梗ライオンズマンション平河町
東京都千代田区平河町1-8-8
坪数:17.48 坪
坪単価:9,725 円(坪)
-
プリンス通ビル
東京都千代田区紀尾井町3-33
坪数:17.48 坪
坪単価:15,446 円(坪)
-
DIK麹町ビル
東京都千代田区麹町1-6-9
坪数:19.27 坪
坪単価:12,500 円(坪)
-
サンライン第14ビル
東京都千代田区九段北4-3-16
坪数:16.34 坪
坪単価:16,524 円(坪)
-
桜ビル
東京都千代田区九段北4-2-2
坪数:16.33 坪
坪単価:12,463 円(坪)