MAYU TOKYO WOMANビル(物件No:91688101)
アサヒビルは中央区湊にある地上6階建ての賃貸事務所です。最寄駅はJR京葉線の八丁堀駅から徒歩5分、東京メトロ日比谷線の八丁堀駅から徒歩6分、東京メトロ有楽町線の新富町駅から徒歩9分、東京メトロ有楽町線の月島駅から徒歩11分、都営大江戸線の月島駅から徒歩11分です。1980年竣工の基準階面積が46坪の鉄筋コンクリート造です。設備としてはエレベーターが1基あり、機械警備もあります。トイレは男女別です。空調は個別空調です。床仕様はタイルカーペットです。天高は2460mmです。最寄駅から駅近で便利な中央区湊の賃貸オフィスです。
-
物件情報
-
設備情報
- トイレ
- 室外男女別
- 床
- -
- 空調
- 個別空調
- セキュリティ
- 有
- 駐車場
- 無
- 会議室
- -
- エレベーター
- 1基
- 天井高
- 2460mm
-
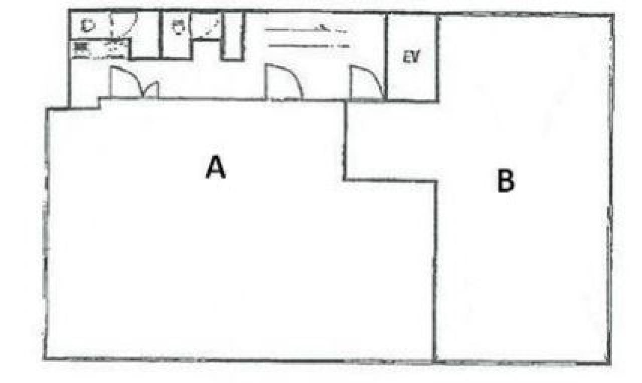
間取り図
-
近隣相場情報
湊1丁目(20坪以下)の相場
11848 円 (坪)
※ビルサク調べ
周辺施設情報
| コンビニ |
セブンイレブン/中央区湊1丁目/290m(徒歩4分) ファミリーマート/入船一丁目店/90m(徒歩1分) |
|---|---|
| 郵便局/銀行 |
セブン銀行/中央区湊1丁目店/[営業時間]24時間営業/290m(徒歩4分) イーネット/ファミリーマート入船一丁目/[営業時間]0:00~24:00/90m(徒歩1分) |
| 飲食店 |
テリー/不定休/73m(徒歩1分) 肴屋八丁堀店/不定休/120m(徒歩1分) |
| カフェ |
タリーズ/東京ダイヤビルディング店/[営業時間]平日:7:00~20:00 土:休業日 日祝:休業日/650m(徒歩8分) コロラド/八丁堀店/■通常営業時間 平日 8:00~21:00 土曜 - 日祝 - /350m(徒歩5分) |
| コインパーキング |
三井のリパーク/入船1丁目 [料金] [料金]平日 08:00~22:00 15分/300円 平日 22:00~08:00 60分/100円 [料金]日祝 08:00~22:00 15分/300円 日祝 22:00~08:00 60分/100円 [最大料金] 最大料金 【月~土】8:00~22:00以内 最大料金3800円 【月~土】22:00~8:00以内 最大料金500円 最大料金 【日祝】8:00~22:00以内 最大料金1600円 【日祝】22:00~8:00以内 最大料金500円 [台数]3 タイムズ/入船 [料金] [月~土]通常料金 / 0:00~0:00 15分 330円 [日・祝]通常料金 / 0:00~0:00 60分 330円 [最大料金] [月~土]8:00~19:00 最大料金4180円 19:00~8:00 最大料金550円 [日・祝]8:00~19:00 最大料金1320円 19:00~8:00 最大料金550円 [台数]3 |
周辺地図
アサヒビルは中央区湊にある地上6階建ての賃貸事務所です。最寄駅はJR京葉線の八丁堀駅から徒歩5分、東京メトロ日比谷線の八丁堀駅から徒歩6分、東京メトロ有楽町線の新富町駅から徒歩9分、東京メトロ有楽町線の月島駅から徒歩11分、都営大江戸線の月島駅から徒歩11分です。1980年竣工の基準階面積が46坪の鉄筋コンクリート造です。設備としてはエレベーターが1基あり、機械警備もあります。トイレは男女別です。空調は個別空調です。床仕様はタイルカーペットです。天高は2460mmです。最寄駅から駅近で便利な中央区湊の賃貸オフィスです。
全フロア情報
更新日:2021年9月29日
| 階 | 面積 | 賃料 | 共益費 | 敷金 | 入居日 | お問合せ | お気に入り | |
|---|---|---|---|---|---|---|---|---|
| 1F |
39.93 坪 132 ㎡ |
※現在空室情報はございません |
※現在空室情報は 確認する |
|||||
|
2F
(B区画) |
17.44 坪 57.65 ㎡ |
※現在空室情報はございません |
※現在空室情報は 確認する |
|||||
|
3F
(A区画) |
20.00 坪 66.12 ㎡ |
※現在空室情報はございません |
※現在空室情報は 確認する |
|||||
|
3F
(B区画) |
17.44 坪 57.65 ㎡ |
※現在空室情報はございません |
※現在空室情報は 確認する |
|||||
お問い合わせ
似た条件の物件はこちら
-
吉岡ビル
東京都中央区築地6-23-10
坪数:20.32 坪
坪単価:11,565 円(坪)
-
築地MSビル
東京都中央区築地4-10-16
坪数:13.13 坪
坪単価:10,000 円(坪)
-
ACN築地2丁目ビル
東京都中央区築地2-5-7
坪数:14.9 坪
坪単価:24,403 円(坪)
-
Green Park銀座デ・プレ
東京都中央区築地2-11-12
坪数:16.72 坪
坪単価:23,636 円(坪)
-
SK東銀座ビル
東京都中央区築地2-12-6
坪数:16.32 坪
坪単価:10,000 円(坪)
-
エミタ銀座イーストビル
東京都中央区築地2-10-4
坪数:19.85 坪
坪単価:16,000 円(坪)
-
第3東邦ビル
東京都中央区新富1-6-8
坪数:21.2 坪
坪単価:13,000 円(坪)
-
CGA新富
東京都中央区新富1-15-4
坪数:20.94 坪
坪単価:26,000 円(坪)
-
第2明治ビル
東京都中央区入船3-2-7
坪数:15.7 坪
坪単価:8,000 円(坪)
-
平成新富町ビル
東京都中央区入船2-3-9
坪数:14.83 坪
坪単価:13,300 円(坪)