エクレールハマダ(物件No:91688088)
エクレールハマダは千代田区神田東松下町にある地上5階建ての賃貸事務所です。最寄駅は都営新宿線の岩本町駅から徒歩3分、JR線の神田駅から徒歩5分、東京メトロ銀座線の神田駅から徒歩5分です。1991年9月竣工の基準階面積が19坪の鉄骨造です。設備としては、空調は個別空調です。耐震設計となっている、複数駅利用可能なアクセスの良い千代田区神田東松下町の賃貸オフィスです。
-
物件情報
-
設備情報
- トイレ
- -
- 床
- -
- 空調
- 個別空調
- セキュリティ
- -
- 駐車場
- -
- 会議室
- -
- エレベーター
- -
- 天井高
- -
-
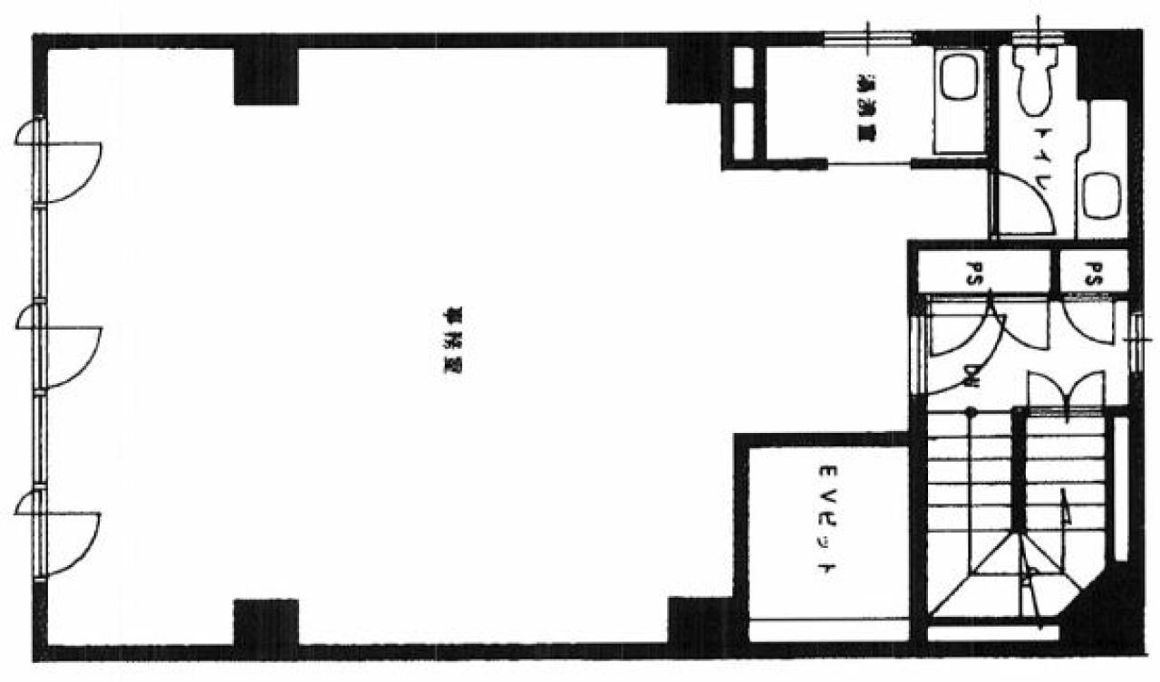
間取り図
-
近隣相場情報
神田東松下町28丁目(20坪以下)の相場
29374 円 (坪)
※ビルサク調べ
周辺施設情報
| コンビニ |
ミニストップ/神田鍛冶町店/450m(徒歩6分) まいばすけっと/岩本町3丁目店/450m(徒歩7分) |
|---|---|
| 郵便局/銀行 |
みずほ銀行/ATM 銀座線神田駅出張所/[営業時間] [ATM]平日 5:00~24:00 土曜日 5:00~22:00 日曜日 8:00~21:00 祝日・振替休日 曜日に準ずる 備考 *月曜日の5:00~7:00はご利用いただけません/350m(徒歩4分) 興産信用金庫/本店/260m(徒歩4分) |
| 飲食店 |
やきとりセンター 神田東口店/15時00分~21時00分/350m(徒歩5分) 赤札酒蔵/11時30分~0時00分/300m(徒歩4分) |
| カフェ |
珈琲館/神田北口店/[営業時間]平日 7:30~20:30 [休業日]土・日・祝日 [駐車場]無 [備考]44席/完全禁煙/Free Wi-Fi有/Wi-Fi環境(au)/220m(徒歩3分) ベローチェ/岩本町店/[営業時間]7:00~22:00 土21:30閉店、日・祝21:00閉店※営業時間の変更情報あり。詳細についてはHPを参照 [備考]全席禁煙 喫煙ブースあり/Wi-Fiあり/【分煙区画について】喫煙ブースでの飲食は、ご遠慮いただいております/450m(徒歩7分) |
| コインパーキング |
三井のリパーク/神田須田町2丁目第3 [料金] 全日 08:00~00:00 15分/400円 全日 00:00~08:00 60分/100円 [台数]2 タイムズ/神田東松下町 [料金] [月~土]通常料金 / 8:00~22:00 15分 440円 22:00~8:00 60分 110円 [日・祝]通常料金 / 8:00~22:00 15分 440円 22:00~8:00 60分 110円 [最大料金] [日・祝]当日1日最大料金4180円(24時迄) [台数]3 |
周辺地図
エクレールハマダは千代田区神田東松下町にある地上5階建ての賃貸事務所です。最寄駅は都営新宿線の岩本町駅から徒歩3分、JR線の神田駅から徒歩5分、東京メトロ銀座線の神田駅から徒歩5分です。1991年9月竣工の基準階面積が19坪の鉄骨造です。設備としては、空調は個別空調です。耐震設計となっている、複数駅利用可能なアクセスの良い千代田区神田東松下町の賃貸オフィスです。
全フロア情報
更新日:2017年8月31日
| 階 | 面積 | 賃料 | 共益費 | 敷金 | 入居日 | お問合せ | お気に入り | |
|---|---|---|---|---|---|---|---|---|
| 2F |
19.00 坪 62.81 ㎡ |
※現在空室情報はございません |
※現在空室情報は 確認する |
|||||
お問い合わせ
似た条件の物件はこちら
-
KSYビル
東京都千代田区神田須田町2-15
坪数:22.12 坪
坪単価:13,562 円(坪)
-
KM千代田ビル
東京都千代田区岩本町1-12-1
坪数:20.02 坪
坪単価:12,996 円(坪)
-
アーバンスクエア神田ビル
東京都千代田区神田須田町1-18
坪数:14.18 坪
坪単価:17,000 円(坪)
-
TOKENビル
東京都千代田区外神田5-2-4
坪数:21.37 坪
坪単価:11,500 円(坪)
-
第二櫻井ビル
東京都千代田区神田佐久間町3-5
坪数:17.24 坪
坪単価:11,996 円(坪)
-
新東ビル
東京都千代田区内神田2-8-3
坪数:21.5 坪
坪単価:11,000 円(坪)
-
松本ビル
東京都千代田区外神田6-2-8
坪数:20.6 坪
坪単価:10,997 円(坪)
-
野沢ビル
東京都千代田区外神田6-7-4
坪数:14 坪
坪単価:12,143 円(坪)
-
藤和内神田ビル
東京都千代田区内神田2-4-4
坪数:18.49 坪
坪単価:16,500 円(坪)
-
昭和ビル
東京都千代田区神田和泉町1-2-5
坪数:16.5 坪
坪単価:11,000 円(坪)
関連エリアから探す
- 内神田
- 神田淡路町
- 神田小川町
- 神田鍛冶町
- 神田須田町
- 神田駿河台
- 神田多町
- 神田司町
- 神田錦町
- 神田美土代町
- 岩本町
- 鍛冶町
- 神田岩本町
- 神田北乗物町
- 神田紺屋町
- 神田富山町
- 神田西福田町
- 神田東松下町
- 神田東紺屋町
- 神田美倉町
- 東神田
- 神田相生町
- 神田和泉町
- 神田佐久間町
- 神田佐久間河岸
- 神田練塀町
- 神田花岡町
- 神田松永町
- 外神田
- 神田平河町