アサコ銀座ビル(物件No:91685181)
アサコ銀座ビルは東京都中央区銀座にある地下1階、地上9階建ての賃貸事務所です。最寄駅は東京メトロ有楽町線の銀座一丁目駅から徒歩1分、東京メトロ銀座線の銀座駅から徒歩3分です。1991年10月竣工の基準階面積が17.36坪の鉄骨造です。設備としてはエレベーターが1基あり、機械警備もあります。トイレは室外男女共用です。空調は個別空調です。耐震性は新耐震となっている、複数駅利用可能な、アクセスの良い東京都中央区銀座の賃貸オフィスです。
-
物件情報
-
設備情報
- トイレ
- 室外男女共用
- 床
- -
- 空調
- 個別空調
- セキュリティ
- 有
- 駐車場
- -
- 会議室
- -
- エレベーター
- 1基
- 天井高
- -
-
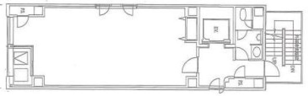
間取り図
-
近隣相場情報
銀座2丁目(20坪以下)の相場
22805 円 (坪)
※ビルサク調べ
周辺施設情報
| コンビニ |
セブンイレブン/銀座1丁目中央/180m(徒歩2分) ファミリーマート/銀座柳通り店/210m(徒歩2分) |
|---|---|
| 郵便局/銀行 |
郵便局/銀座通/平日 10:00-18:00 土曜 - 日曜・祝日 - [ATM]平日 8:00-20:00 土曜 9:00-19:00 日曜・祝日 -/110m(徒歩1分) 三菱UFJ銀行/京橋支店/平日 9:00~15:00 土曜日 - 日曜日 - *祝日・休日および12月31日、1月1日~3日は営業いたしません。 [ATM]平日 7:00~24:00 土曜日 7:00~24:00 日・祝日 7:00~24:00/150m(徒歩2分) |
| 飲食店 |
37 QUALITY MEATS/11時30分~15時30分、17時30分~23時00分/120m(徒歩1分) SHARI THE TOKYO SUSHI BAR/11時30分~15時00分、17時30分~23時00分/150m(徒歩2分) |
| カフェ |
椿屋珈琲/銀座新館/[営業時間]日・月・火・祝 9:00-22:30(ラストオーダー22:00) 水~土 9:00-23:00(ラストオーダー22:30)/30m(徒歩1分) ドトール/銀座2丁目店/[営業時間]平 日:07:00 - 21:00 土曜日:08:00 - 21:00 日 祝:08:00 - 21:00 [休業日]なし [備考]総席数:68 禁煙席:51 喫煙席:17/110m(徒歩1分) |
| コインパーキング |
三井のリパーク/銀座越後屋ビル駐車場 [料金] 全日 08:00~00:00 30分/300円 全日 00:00~08:00 30分/300円 [最大料金] 全日 入庫当日24:00迄 2,000円 全日 24:00-8:00迄1,000円 [台数]30 タイムズ駐車場/銀座貿易ビル [料金] [全日]08:30-20:30 30分 300円 20:30-08:30 60分 100円 [最大料金] [全日]08:30-20:30 最大料金 [全日]20:30-08:30 最大料金800円 [台数]35 |
周辺地図
アサコ銀座ビルは東京都中央区銀座にある地下1階、地上9階建ての賃貸事務所です。最寄駅は東京メトロ有楽町線の銀座一丁目駅から徒歩1分、東京メトロ銀座線の銀座駅から徒歩3分です。1991年10月竣工の基準階面積が17.36坪の鉄骨造です。設備としてはエレベーターが1基あり、機械警備もあります。トイレは室外男女共用です。空調は個別空調です。耐震性は新耐震となっている、複数駅利用可能な、アクセスの良い東京都中央区銀座の賃貸オフィスです。
全フロア情報
更新日:2026年2月5日
| 階 | 面積 | 賃料 | 共益費 | 敷金 | 入居日 | お問合せ | お気に入り | |
|---|---|---|---|---|---|---|---|---|
| 4F |
17.36 坪 57.39 ㎡ |
※現在空室情報はございません |
※現在空室情報は 確認する |
|||||
| 5F |
17.36 坪 57.39 ㎡ |
※現在空室情報はございません |
※現在空室情報は 確認する |
|||||
| 6F |
17.36 坪 57.39 ㎡ |
555,520 円 32,000 円(坪) |
60,760 円 3,500 円(坪) |
6,666,240 円 12 ヶ月 |
2026/03 |
|
|
|
| 8F |
17.36 坪 57.39 ㎡ |
※現在空室情報はございません |
※現在空室情報は 確認する |
|||||
お問い合わせ
似た条件の物件はこちら
-
SRビル
東京都中央区銀座8-12-3
坪数:19.16 坪
坪単価:20,000 円(坪)
-
片桐ビルⅤ
東京都中央区銀座3-14-8
坪数:13.63 坪
坪単価:1,834 円(坪)
-
銀座秀芳ビル
東京都中央区銀座7-10-18
坪数:21.58 坪
坪単価:24,004 円(坪)
-
楠本第17ビル
東京都中央区銀座1-14-12
坪数:14.45 坪
坪単価:25,000 円(坪)
-
日本聖書協会ビル(聖書館ビル)
東京都中央区銀座4-5-1
坪数:13.00 坪
坪単価:25,500 円(坪)
-
三福ビル
東京都中央区銀座4-8-2
坪数:17.50 坪
坪単価:22,000 円(坪)
-
銀座藤ビル
東京都中央区銀座2-12-10
坪数:15.8 坪
坪単価:21,000 円(坪)
-
東銀1ビル
東京都中央区銀座3-10-14
坪数:22 坪
坪単価:19,000 円(坪)
-
玉上ビル
東京都中央区銀座2-13-17
坪数:13.97 坪
坪単価:11,500 円(坪)
-
中島商事ビル
東京都中央区銀座8-5-6
坪数:21 坪
坪単価:27,000 円(坪)