友高ビル(物件No:91683162)
友高ビルは、中央区日本橋人形町にある貸事務所物件です。最寄り駅は東京メトロ半蔵門線水天宮前駅、日比谷線、都営浅草線人形町駅、都営新宿線浜町駅です。1990年竣工の賃貸オフィスビルです。空調は個別空調で、エレベーターは1基あります。複数路線利用可能で交通アクセスの良い、中央区日本橋人形町の貸事務所です。
| 階 | 面積 | 賃料 | 共益費 | 敷金 | 入居日 | お問合せ | お気に入り |
|---|---|---|---|---|---|---|---|
| 4F |
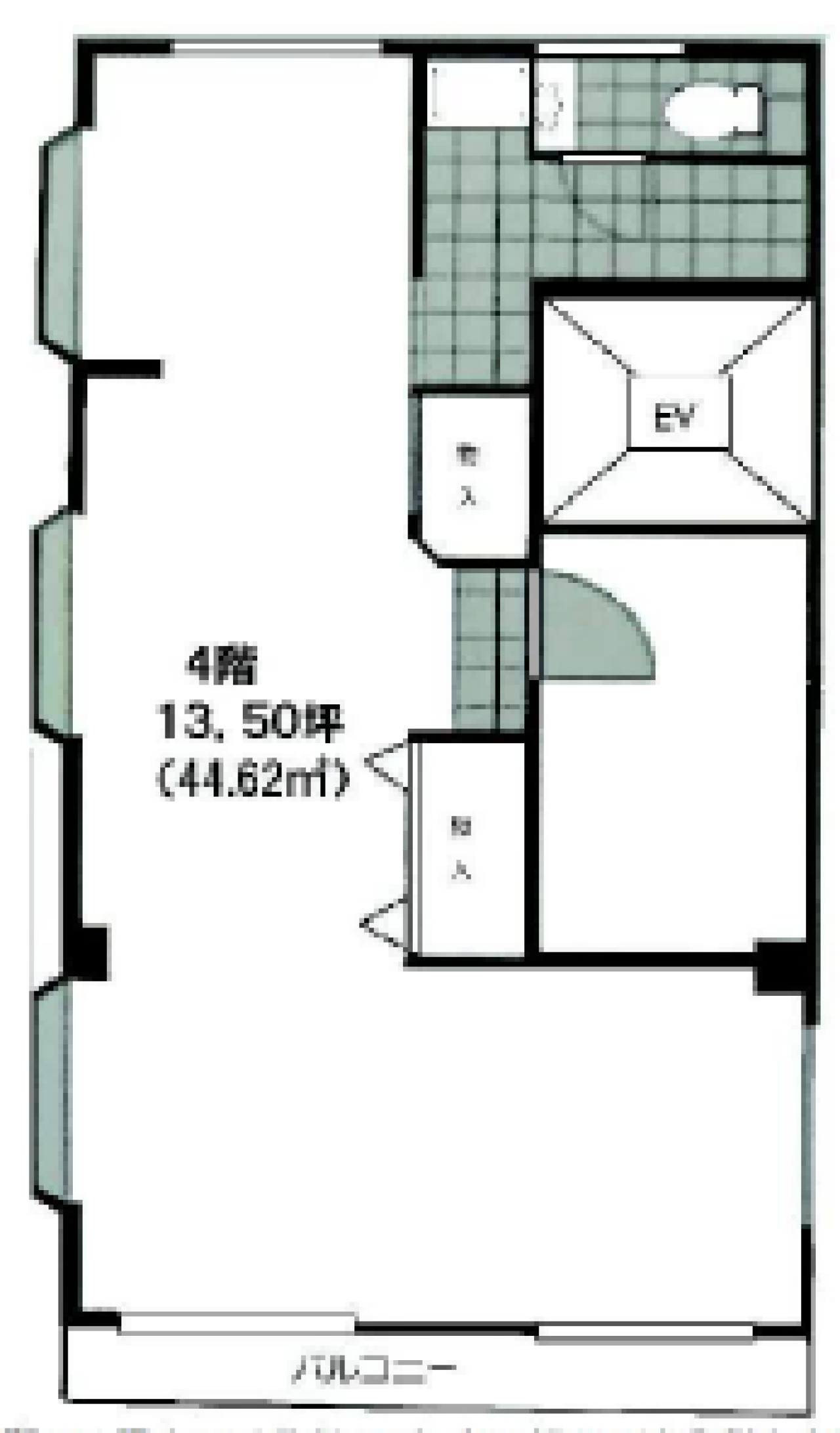
13.5 坪 44.63 ㎡ |
162,000 円 12,000 円(坪) |
13,500 円 1,000 円(坪) |
972,000 円 6 ヶ月 |
即日 |
|
|
| 階 | 面積 | 賃料 | 共益費 | 敷金 | 入居日 | お問合せ | お気に入り |
|---|---|---|---|---|---|---|---|
| 4F |
13.5 坪 44.63 ㎡ |
162,000 円 12,000 円(坪) |
13,500 円 1,000 円(坪) |
972,000 円 6 ヶ月 |
即日 |
|
|
-
物件情報
-
設備情報
- トイレ
- 室内男女共用
- 床
- -
- 空調
- 個別空調
- セキュリティ
- -
- 駐車場
- -
- 会議室
- -
- エレベーター
- 1基
- 天井高
- -
-
間取り図
-
近隣相場情報
日本橋人形町2丁目(20坪以下)の相場
15461 円 (坪)
※ビルサク調べ
周辺施設情報
| コンビニ |
ファミリーマート/日本橋小学校前店/210m(徒歩3分) ローソン/人形町駅前/230m(徒歩3分) |
|---|---|
| 郵便局/銀行 |
セブン銀行/東京メトロ 日比谷線 人形町駅/[営業時間]5:00~24:00 /170m(徒歩2分) イオン銀行/ATM マルエツプチ人形町駅前店出張所/[営業時間]7:00~23:00/83m(徒歩1分) |
| 飲食店 |
俺のフレンチ NINGYOCHO/11時30分~14時30分 16時00分~20時00分/140m(徒歩2分) 人形町今半 人形町本店/11時00分~16時45分 17時00分~23時00分/34m(徒歩1分) |
| カフェ |
カフェドクリエ/日本橋人形町/[営業時間][平 日] 6:45-22:00 [土日祝] (土)8:00-19:00 (日/祝)8:00-19:00/120m(徒歩2分) エクセルシオール/カフェ 人形町店/[営業時間]平日:7:00~22:00 土曜日:8:00~21:00 日 祝:8:00~19:00 /190m(徒歩2分) |
| コインパーキング |
名鉄協商パーキング/日本橋人形町2丁目 [料金] [料金]全日 8:00~20:00 15分 300円 20:00~8:00 60分 100円 [最大料金] 入庫より4時間まで 2,000円 [台数]3台 三井のリパーク/日本橋人形町2丁目第7 [料金] [料金]平日 08:00~22:00 15分/300円 平日 22:00~08:00 15分/300円 [料金]日祝 08:00~22:00 15分/300円 日祝 22:00~08:00 15分/300円 [最大料金] 最大料金 【月~土】22:00~8:00以内 最大料金500円 最大料金 【日祝】8:00~22:00以内 最大料金1000円 【日祝】22:00~8:00以内 最大料金500円 [台数]6 |
周辺地図
友高ビルは、中央区日本橋人形町にある貸事務所物件です。最寄り駅は東京メトロ半蔵門線水天宮前駅、日比谷線、都営浅草線人形町駅、都営新宿線浜町駅です。1990年竣工の賃貸オフィスビルです。空調は個別空調で、エレベーターは1基あります。複数路線利用可能で交通アクセスの良い、中央区日本橋人形町の貸事務所です。
全フロア情報
更新日:2026年3月13日
| 階 | 面積 | 賃料 | 共益費 | 敷金 | 入居日 | お問合せ | お気に入り | |
|---|---|---|---|---|---|---|---|---|
| 2F |
15.02 坪 49.65 ㎡ |
※現在空室情報はございません |
※現在空室情報は 確認する |
|||||
| 4F |
13.5 坪 44.63 ㎡ |
162,000 円 12,000 円(坪) |
13,500 円 1,000 円(坪) |
972,000 円 6 ヶ月 |
即日 |
|
|
|
| 5F |
10 坪 33.06 ㎡ |
※現在空室情報はございません |
※現在空室情報は 確認する |
|||||
お問い合わせ
似た条件の物件はこちら
-
グリーンパーク日本橋参番館
東京都中央区日本橋大伝馬町6-2
坪数:16.35 坪
坪単価:23,242 円(坪)
-
日本橋OSTビル
東京都中央区日本橋浜町2-15-5
坪数:14.7 坪
坪単価:14,286 円(坪)
-
ACE日本橋ビル
東京都中央区日本橋久松町13-5
坪数:17 坪
坪単価:13,000 円(坪)
-
茄子倉ビル
東京都中央区日本橋馬喰町1-9-8
坪数:17.79 坪
坪単価:12,000 円(坪)
-
PORT ONE 茅場町
東京都中央区日本橋箱崎町5-15
坪数:16.75 坪
坪単価:24,000 円(坪)
-
第2松井ビル
東京都中央区日本橋横山町2-4
坪数:14.12 坪
坪単価:9,001 円(坪)
-
浜町ビル
東京都中央区日本橋浜町1-2-4
坪数:14.5 坪
坪単価:12,000 円(坪)
-
和円ビル
東京都中央区日本橋久松町9-12
坪数:17.69 坪
坪単価:15,828 円(坪)
-
イーストワン箱崎
東京都中央区日本橋箱崎町15-6
坪数:15.91 坪
坪単価:15,085 円(坪)
-
平成ビル
東京都中央区東日本橋2-12-8
坪数:14.15 坪
坪単価:14,000 円(坪)
関連エリアから探す
- 日本橋大伝馬町
- 日本橋蛎殻町
- 日本橋小網町
- 日本橋小伝馬町
- 日本橋小舟町
- 日本橋富沢町
- 日本橋人形町
- 日本橋箱崎町
- 日本橋堀留町
- 日本橋中洲
- 日本橋馬喰町
- 日本橋浜町
- 日本橋久松町
- 日本橋横山町
- 東日本橋