共同ビル(日銀前)(物件No:91589173)
共同ビル(日銀前)は、中央区日本橋本石町にある貸事務所物件です。最寄り駅は東京メトロ銀座線、半蔵門線三越前駅、JR神田駅、JR総武線快速新日本橋駅です。1973年竣工で基準階が95.40坪の賃貸オフィスビルです。床はOAフロアで、天井の高さは2320mm。トイレは室内男女別で、空調は個別空調です。エレベーターは2基あり、セキュリティは機械警備となっています。貸会議室が利用可能です。複数路線利用可能で、交通アクセスの良い、中央区日本橋本石町の貸事務所です。
-
物件情報
-
設備情報
- トイレ
- 室内男女別
- 床
- フリーアクセス
- 空調
- 個別空調
- セキュリティ
- 有
- 駐車場
- -
- 会議室
- 有
- エレベーター
- 2基
- 天井高
- 2320mm
-
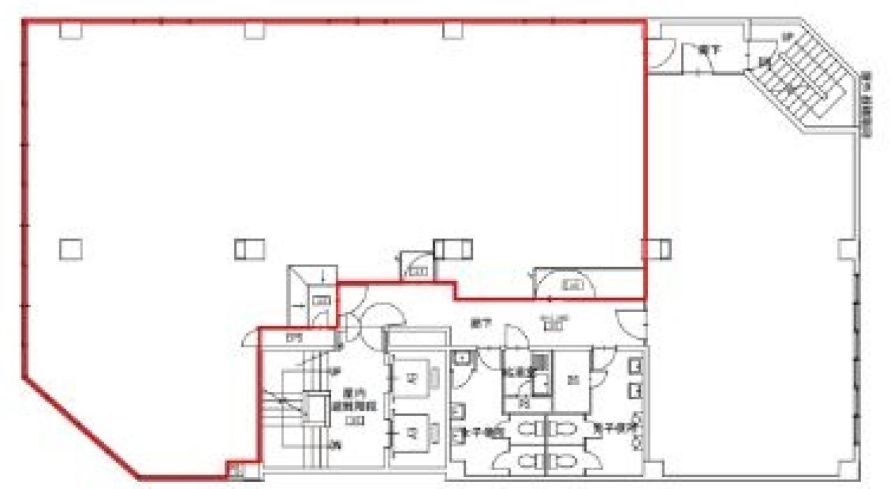
間取り図
-
近隣相場情報
日本橋本石町3丁目(50~100坪)の相場
調査中
周辺施設情報
| コンビニ |
ミニストップ/日本橋本石町店/3m(徒歩1分) ファミリーマート/ファミマ日本橋室町三井タワー店/200m(徒歩2分) |
|---|---|
| 郵便局/銀行 |
もみじ銀行/東京支店/[ATM]店内ATMは設置しておりません/82m(徒歩1分) イオン銀行/ATM ミニストップ日本橋本石町店出張所/[営業時間]24時間/3m(徒歩1分) |
| 飲食店 |
なか卯 日本橋本石町店/24 時間営業/47m(徒歩1分) 日本橋いづもや本店 本館/11時00分~14時00分 17時00分~22時00分/58m(徒歩1分) |
| カフェ |
鹿角巷/誠品生活日本橋店/営業時間]10:00~21:00/180m(徒歩2分) タリーズ/大手町プレイス 2階店/[営業時間]平日:7:00~20:00 土:休業日 日祝:休業日/400m(徒歩5分) |
| コインパーキング |
三井のリパーク/日本橋本石町3丁目第2 [料金] [料金]平日 08:00~22:00 15分/400円 平日 22:00~08:00 15分/400円 [料金]日祝 08:00~22:00 15分/400円 日祝 22:00~08:00 15分/400円 [最大料金] 最大料金 【月~土】8:00~22:00以内 最大料金3900円 【月~土】22:00~8:00以内 最大料金1000円 【日祝】8:00~22:00以内 最大料金2000円 【日祝】22:00~8:00以内 最大料金1000円 [台数]3 タイムズ駐車場/日本橋本石町 [料金] [月~土]通常料金 / 0:00~0:00 12分 440円 [日・祝]通常料金 / 0:00~0:00 12分 440円 [最大料金] [月~土]22:00~8:00 最大料金1320円 [日・祝]8:00~22:00 最大料金2640円 22:00~8:00 最大料金1320円 [台数]6 |
周辺地図
共同ビル(日銀前)は、中央区日本橋本石町にある貸事務所物件です。最寄り駅は東京メトロ銀座線、半蔵門線三越前駅、JR神田駅、JR総武線快速新日本橋駅です。1973年竣工で基準階が95.40坪の賃貸オフィスビルです。床はOAフロアで、天井の高さは2320mm。トイレは室内男女別で、空調は個別空調です。エレベーターは2基あり、セキュリティは機械警備となっています。貸会議室が利用可能です。複数路線利用可能で、交通アクセスの良い、中央区日本橋本石町の貸事務所です。
全フロア情報
更新日:2025年11月28日
| 階 | 面積 | 賃料 | 共益費 | 敷金 | 入居日 | お問合せ | お気に入り | |
|---|---|---|---|---|---|---|---|---|
| 4F |
95.4 坪 315.37 ㎡ |
※現在空室情報はございません |
※現在空室情報は 確認する |
|||||
| 5F |
95.39 坪 315.34 ㎡ |
※現在空室情報はございません |
※現在空室情報は 確認する |
|||||
| 6F |
95.4 坪 315.37 ㎡ |
※現在空室情報はございません |
※現在空室情報は 確認する |
|||||
| 10F |
95.4 坪 315.37 ㎡ |
※現在空室情報はございません |
※現在空室情報は 確認する |
|||||
|
10F
(1区画) |
59.35 坪 196.2 ㎡ |
※現在空室情報はございません |
※現在空室情報は 確認する |
|||||
お問い合わせ
似た条件の物件はこちら
-
千城ビル
東京都中央区日本橋本町4-8-16
坪数:47.04 坪
坪単価:15,000 円(坪)
-
エイチ・アール・ネット日本橋ビル
東京都中央区日本橋本町4-7-10
坪数:60.47 坪
坪単価:12,000 円(坪)
-
明海京橋ビル
東京都中央区京橋2-18-2
坪数:58.28 坪
坪単価:17,000 円(坪)
-
依田忠ビル
東京都中央区京橋1-14-9
坪数:53 坪
坪単価:14,003 円(坪)
-
斉藤ビル
東京都中央区京橋3-14-6
坪数:49.82 坪
坪単価:15,000 円(坪)
-
朝日ビルヂング
東京都中央区日本橋3-12-2
坪数:51.33 坪
坪単価:17,500 円(坪)
-
京橋中央ビル
東京都中央区京橋1-14-7
坪数:49.89 坪
坪単価:36,000 円(坪)
-
八重洲中央ビル
東京都中央区日本橋3-5-11
坪数:46.3 坪
坪単価:18,000 円(坪)
-
光洋ビル
東京都中央区日本橋本町4-6-7
坪数:63.4 坪
坪単価:16,000 円(坪)
-
市橋ビル
東京都中央区日本橋本町4-15-11
坪数:65 坪
坪単価:11,500 円(坪)