ティーエスケービル(物件No:91586119)
ティーエスケービルは台東区小島にある地上8階建ての賃貸事務所です。最寄駅は都営大江戸線の新御徒町駅から徒歩1分、つくばエクスプレスの新御徒町駅から徒歩1分、東京メトロ日比谷線の仲御徒町駅から徒歩7分、東京メトロ銀座線の稲荷町駅から徒歩7分、JR線の御徒町駅から徒歩8分です。1994年竣工の鉄骨鉄筋コンクリート造です。設備としては、エレベーターが1基あります。警備は機械警備です。耐震設計となっている、最寄駅から近くて便利な台東区小島の賃貸オフィスです。
-
物件情報
-
設備情報
- トイレ
- -
- 床
- -
- 空調
- -
- セキュリティ
- 有
- 駐車場
- -
- 会議室
- -
- エレベーター
- 1基
- 天井高
- -
-
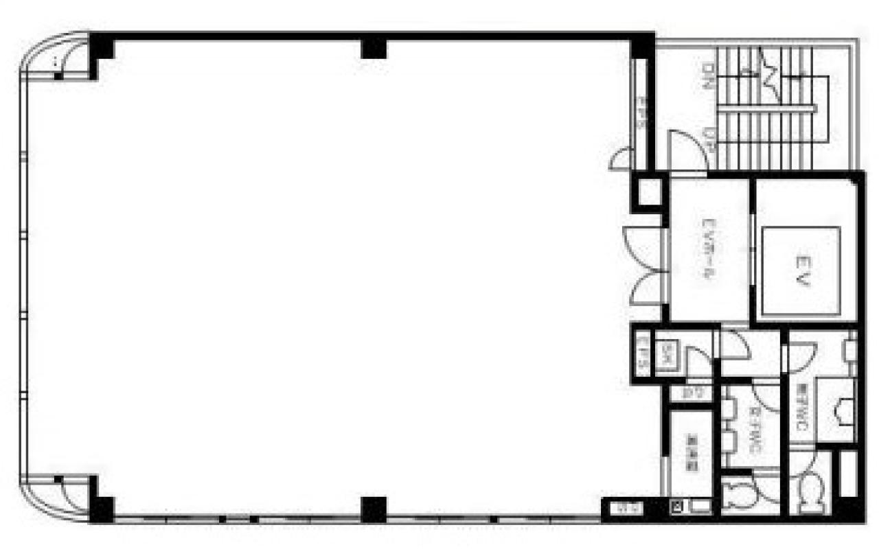
間取り図
-
近隣相場情報
小島2丁目(30~40坪)の相場
調査中
周辺地図
ティーエスケービルは台東区小島にある地上8階建ての賃貸事務所です。最寄駅は都営大江戸線の新御徒町駅から徒歩1分、つくばエクスプレスの新御徒町駅から徒歩1分、東京メトロ日比谷線の仲御徒町駅から徒歩7分、東京メトロ銀座線の稲荷町駅から徒歩7分、JR線の御徒町駅から徒歩8分です。1994年竣工の鉄骨鉄筋コンクリート造です。設備としては、エレベーターが1基あります。警備は機械警備です。耐震設計となっている、最寄駅から近くて便利な台東区小島の賃貸オフィスです。
全フロア情報
更新日:2020年2月4日
| 階 | 面積 | 賃料 | 共益費 | 敷金 | 入居日 | お問合せ | お気に入り | |
|---|---|---|---|---|---|---|---|---|
| 3F |
36.14 坪 119.47 ㎡ |
※現在空室情報はございません |
※現在空室情報は 確認する |
|||||
| 4F |
36.14 坪 119.47 ㎡ |
※現在空室情報はございません |
※現在空室情報は 確認する |
|||||
| 7F |
36.14 坪 119.47 ㎡ |
※現在空室情報はございません |
※現在空室情報は 確認する |
|||||
| 8F |
36.14 坪 119.47 ㎡ |
※現在空室情報はございません |
※現在空室情報は 確認する |
|||||
お問い合わせ
似た条件の物件はこちら
-
NRビル
東京都台東区蔵前3-13-13
坪数:30.97 坪
坪単価:14,530 円(坪)
-
大手山ビル
東京都台東区柳橋1-7-7
坪数:28.90 坪
坪単価:10,381 円(坪)
-
小沢ビル
東京都台東区浅草橋2-20-11
坪数:34 坪
坪単価:11,000 円(坪)
-
浅草橋STビル
東京都台東区浅草橋1-13-6
坪数:36.43 坪
坪単価:15,000 円(坪)
-
コーポ花川戸
東京都台東区花川戸1-2-8
坪数:37 坪
坪単価:22,108 円(坪)
-
村山ビル
東京都台東区柳橋2-2-1
坪数:32.78 坪
坪単価:8,500 円(坪)
-
プレリースカイレジデンス
東京都台東区柳橋2-21-9
坪数:31.95 坪
坪単価:20,000 円(坪)
-
信成ビル
東京都台東区浅草橋1-10-7
坪数:27.79 坪
坪単価:14,034 円(坪)
-
堀口ビル
東京都台東区柳橋1-13-4
坪数:34.45 坪
坪単価:12,000 円(坪)
-
M's325ビル
東京都台東区浅草橋3-25-5
坪数:28.17 坪
坪単価:14,000 円(坪)