代々木中央ビル(物件No:91582027)
代々木中央ビルは、渋谷区代々木にある貸事務所物件です。最寄駅は、小田急小田原線南新宿駅、JR、都営大江戸線代々木駅です。1976年竣工で、基準階が27.3坪の賃貸オフィスビルです。天井の高さは2580mmとなっています。トイレは男女別で、空調は個別空調です。エレベーターは1基あり、セキュリティは機械警備となっています。駐車場が利用可能です。複数路線利用可能で交通アクセスの良い、渋谷区代々木の貸事務所です。
| 階 | 面積 | 賃料 | 共益費 | 敷金 | 入居日 | お問合せ | お気に入り | |
|---|---|---|---|---|---|---|---|---|
|
4F
(402区画) |
27.23 坪 90 ㎡ |
※現在空室情報はございません |
※現在空室情報は 確認する |
|||||
-
物件情報
-
設備情報
- トイレ
- 室外男女別
- 床
- -
- 空調
- 個別空調
- セキュリティ
- 有
- 駐車場
- 有
- 会議室
- -
- エレベーター
- 1基
- 天井高
- 2580mm
-
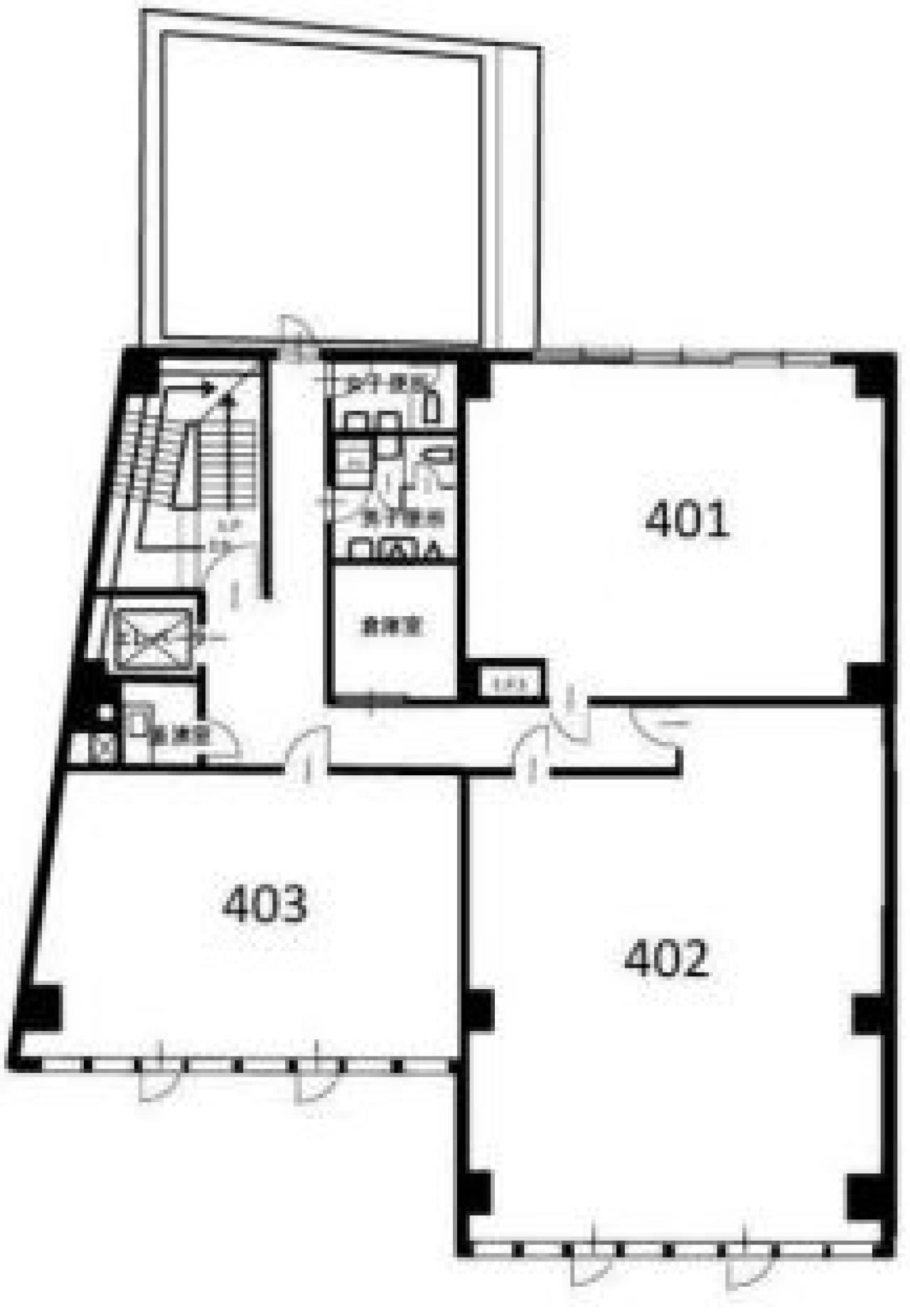
間取り図
-
近隣相場情報
代々木3丁目(20~30坪)の相場
15405 円 (坪)
※ビルサク調べ
周辺施設情報
| コンビニ |
まいばすけっと/代々木2丁目店/650m(徒歩8分) ローソン/ナチュラル 代々木駅西/400m(徒歩5分) |
|---|---|
| 郵便局/銀行 |
三菱UFJ銀行/ATM 新宿文化クイントビル/[営業時間] [ATM]平日 7:00~23:00 土曜日 7:00~23:00 日・祝日 7:00~23:00 *毎月第2土曜日の21:00~翌朝7:00はご利用いただけません/650m(徒歩9分) りそな銀行/ATM 代々木駅前出張所/[営業時間]平日/8:00~21:00 土・日・祝/8:00~21:00/550m(徒歩7分) |
| 飲食店 |
昌楽/11時00分~15時00分、17時30分~23時00分/28m(徒歩1分) Uottoria TOSCANA 代々木店/11時30分~15時00分、17時00分~23時00分/550m(徒歩7分) |
| カフェ |
ベローチェ/代々木三丁目店/[営業時間]※新型コロナウイルス感染防止に対する政府および各自治体の方針等に伴い、以下の通り、営業時間を変更させていただいております。7:00~18:30 土8:00~18:00 日祝8:00~18:00 [通常営業時間]7:00~20:00 日祝7:00~19:00 [備考]Free-WiFi/UberEats/全席禁煙/650m(徒歩8分) 代々木花カフェ/10時00分~17時00分/700m(徒歩9分) |
| コインパーキング |
エコロパーク/代々木第5 [料金] 全日 昼 8時~19時 15分200円 全日 夜 19時~8時 60分100円 [最大料金] 全日 12時間 最大1600円 [台数]3 三井のリパーク/代々木1丁目第5 [料金] 全日 08:00~19:00 10分/300円 全日 19:00~08:00 10分/300円 [最大料金] 【全日】19:00~8:00以内 最大料金1000円 [台数]4 |
周辺地図
代々木中央ビルは、渋谷区代々木にある貸事務所物件です。最寄駅は、小田急小田原線南新宿駅、JR、都営大江戸線代々木駅です。1976年竣工で、基準階が27.3坪の賃貸オフィスビルです。天井の高さは2580mmとなっています。トイレは男女別で、空調は個別空調です。エレベーターは1基あり、セキュリティは機械警備となっています。駐車場が利用可能です。複数路線利用可能で交通アクセスの良い、渋谷区代々木の貸事務所です。
全フロア情報
更新日:2023年10月20日
| 階 | 面積 | 賃料 | 共益費 | 敷金 | 入居日 | お問合せ | お気に入り | |
|---|---|---|---|---|---|---|---|---|
|
1F
(102区画) |
19.67 坪 65.02 ㎡ |
※現在空室情報はございません |
※現在空室情報は 確認する |
|||||
|
4F
(401区画) |
17.60 坪 58.18 ㎡ |
※現在空室情報はございません |
※現在空室情報は 確認する |
|||||
|
4F
(402区画) |
27.23 坪 90 ㎡ |
※現在空室情報はございません |
※現在空室情報は 確認する |
|||||
|
4F
(403区画) |
15.25 坪 50.41 ㎡ |
※現在空室情報はございません |
※現在空室情報は 確認する |
|||||
|
5F
(501区画) |
17.60 坪 58.18 ㎡ |
※現在空室情報はございません |
※現在空室情報は 確認する |
|||||
|
5F
(502区画) |
27.22 坪 89.98 ㎡ |
※現在空室情報はございません |
※現在空室情報は 確認する |
|||||
|
5F
(503区画) |
15.25 坪 50.41 ㎡ |
※現在空室情報はございません |
※現在空室情報は 確認する |
|||||
お問い合わせ
似た条件の物件はこちら
-
VORT代々木
東京都渋谷区千駄ヶ谷5-15-6
坪数:23.67 坪
坪単価:21,000 円(坪)
-
羽田ビル
東京都渋谷区代々木2-5-1
坪数:23.56 坪
坪単価:22,037 円(坪)
-
メゾン・ドゥ・ボナール
東京都渋谷区千駄ヶ谷4-22-4
坪数:28.89 坪
坪単価:12,461 円(坪)
-
ダヴィンチ千駄ヶ谷
東京都渋谷区千駄ヶ谷1-30-8
坪数:29.87 坪
坪単価:22,000 円(坪)
-
ミユキビル
東京都渋谷区代々木1-36-1
坪数:19.82 坪
坪単価:18,000 円(坪)
-
ベルテ代々木Ⅱ
東京都渋谷区代々木2-21-11
坪数:17.38 坪
坪単価:21,289 円(坪)
-
エタニティーマンション和田第3
東京都渋谷区代々木1-4-9
坪数:17.02 坪
坪単価:15,276 円(坪)
-
代々木エアハイツビル
東京都渋谷区千駄ヶ谷5-16-10
坪数:17.98 坪
坪単価:13,901 円(坪)
-
代々木オーシャンビル
東京都渋谷区代々木3-35-10
坪数:18.97 坪
坪単価:17,396 円(坪)
-
向陽ビル
東京都渋谷区代々木1-37-8
坪数:18 坪
坪単価:13,000 円(坪)