ダイヤパレス御徒町第三(物件No:91580109)
ダイヤパレス御徒町第三は台東区台東にある地上8階建ての賃貸事務所です。最寄駅はJR線の御徒町駅から徒歩6分、東京メトロ日比谷線の仲御徒町駅から徒歩5分、都営大江戸線の上野御徒町駅から徒歩5分です。1984年2月竣工の鉄骨鉄筋コンクリート造です。設備としては、エレベーターが1基あります。複数路線利用可能なアクセスの良い台東区台東の賃貸オフィスです。
| 階 | 面積 | 賃料 | 共益費 | 敷金 | 入居日 | お問合せ | お気に入り |
|---|---|---|---|---|---|---|---|
|
2F
(208区画) |
10.16 坪 33.59 ㎡ |
120,000 円 11,811 円(坪) |
15,000 円 1,476 円(坪) |
600,000 円 |
相談 |
|
|
| 階 | 面積 | 賃料 | 共益費 | 敷金 | 入居日 | お問合せ | お気に入り |
|---|---|---|---|---|---|---|---|
|
2F
(208区画) |
10.16 坪 33.59 ㎡ |
120,000 円 11,811 円(坪) |
15,000 円 1,476 円(坪) |
600,000 円 |
相談 |
|
|
-
物件情報
-
設備情報
- トイレ
- -
- 床
- -
- 空調
- -
- セキュリティ
- -
- 駐車場
- 無
- 会議室
- -
- エレベーター
- 1基
- 天井高
- -
-
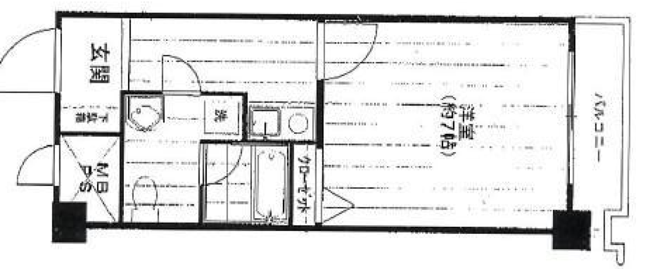
間取り図
-
近隣相場情報
台東3丁目(20坪以下)の相場
14079 円 (坪)
※ビルサク調べ
周辺地図
ダイヤパレス御徒町第三は台東区台東にある地上8階建ての賃貸事務所です。最寄駅はJR線の御徒町駅から徒歩6分、東京メトロ日比谷線の仲御徒町駅から徒歩5分、都営大江戸線の上野御徒町駅から徒歩5分です。1984年2月竣工の鉄骨鉄筋コンクリート造です。設備としては、エレベーターが1基あります。複数路線利用可能なアクセスの良い台東区台東の賃貸オフィスです。
全フロア情報
更新日:2024年4月11日
| 階 | 面積 | 賃料 | 共益費 | 敷金 | 入居日 | お問合せ | お気に入り | |
|---|---|---|---|---|---|---|---|---|
|
1F
(1区画) |
22.50 坪 74.38 ㎡ |
※現在空室情報はございません |
※現在空室情報は 確認する |
|||||
|
1F
(B区画) |
27.30 坪 90.25 ㎡ |
※現在空室情報はございません |
※現在空室情報は 確認する |
|||||
|
2F
(208区画) |
10.16 坪 33.59 ㎡ |
120,000 円 11,811 円(坪) |
15,000 円 1,476 円(坪) |
600,000 円 |
相談 |
|
|
|
|
3F
(303区画) |
14.50 坪 47.93 ㎡ |
※現在空室情報はございません |
※現在空室情報は 確認する |
|||||
|
4F
(401区画) |
15.62 坪 51.65 ㎡ |
※現在空室情報はございません |
※現在空室情報は 確認する |
|||||
|
5F
(502区画) |
7.25 坪 23.97 ㎡ |
※現在空室情報はございません |
※現在空室情報は 確認する |
|||||
お問い合わせ
似た条件の物件はこちら
-
B・ビレッヂIビル
東京都台東区台東1-14-7
坪数:14.5 坪
坪単価:10,000 円(坪)
-
松本マンション
東京都台東区台東4-27-5
坪数:15 坪
坪単価:10,000 円(坪)
-
冨田ビル
東京都台東区東上野1-7-2
坪数:14.99 坪
坪単価:14,676 円(坪)
-
渡井ビル
東京都台東区東上野3-33-8
坪数:13.5 坪
坪単価:12,500 円(坪)
-
後閑ビル
東京都台東区台東4-3-5
坪数:13.17 坪
坪単価:13,667 円(坪)
-
丸幸ビル
東京都台東区東上野1-20-6
坪数:13 坪
坪単価:11,000 円(坪)
-
animo akihabara
東京都台東区台東1-13-6
坪数:14.82 坪
坪単価:8,772 円(坪)
-
上野四丁目共同ビル
東京都台東区上野4-1-8
坪数:14.82 坪
坪単価:24,537 円(坪)
-
MARK SQUARE 御徒町
東京都台東区台東3-15-3
坪数:14.49 坪
坪単価:31,056 円(坪)
-
岩本ビル
東京都台東区東上野2-12-2
坪数:15 坪
坪単価:10,331 円(坪)