サスガ第2ビル(物件No:91483109)
サスガ第2ビルは台東区上野にある地下1階、地上6階建ての賃貸事務所です。最寄駅はJR線の御徒町駅から徒歩1分、東京メトロ日比谷線の仲御徒町駅から徒歩1分、都営大江戸線の上野御徒町駅から徒歩1分です。2000年8月竣工の鉄骨造です。設備としては、エレベーターが1基あります。耐震設計となっている、複数駅利用可能なアクセスの良い台東区上野の賃貸オフィスです。
| 階 | 面積 | 賃料 | 共益費 | 敷金 | 入居日 | お問合せ | お気に入り | |
|---|---|---|---|---|---|---|---|---|
|
4F
(401区画) |
14.05 坪 46.45 ㎡ |
※現在空室情報はございません |
※現在空室情報は 確認する |
|||||
| 階 | 面積 | 賃料 | 共益費 | 敷金 | 入居日 | お問合せ | お気に入り | |
|---|---|---|---|---|---|---|---|---|
|
4F
(401区画) |
14.05 坪 46.45 ㎡ |
※現在空室情報はございません |
※現在空室情報は 確認する |
|||||
-
物件情報
-
設備情報
- トイレ
- 室内男女共用
- 床
- -
- 空調
- 個別空調
- セキュリティ
- 有
- 駐車場
- -
- 会議室
- -
- エレベーター
- 1基
- 天井高
- -
-
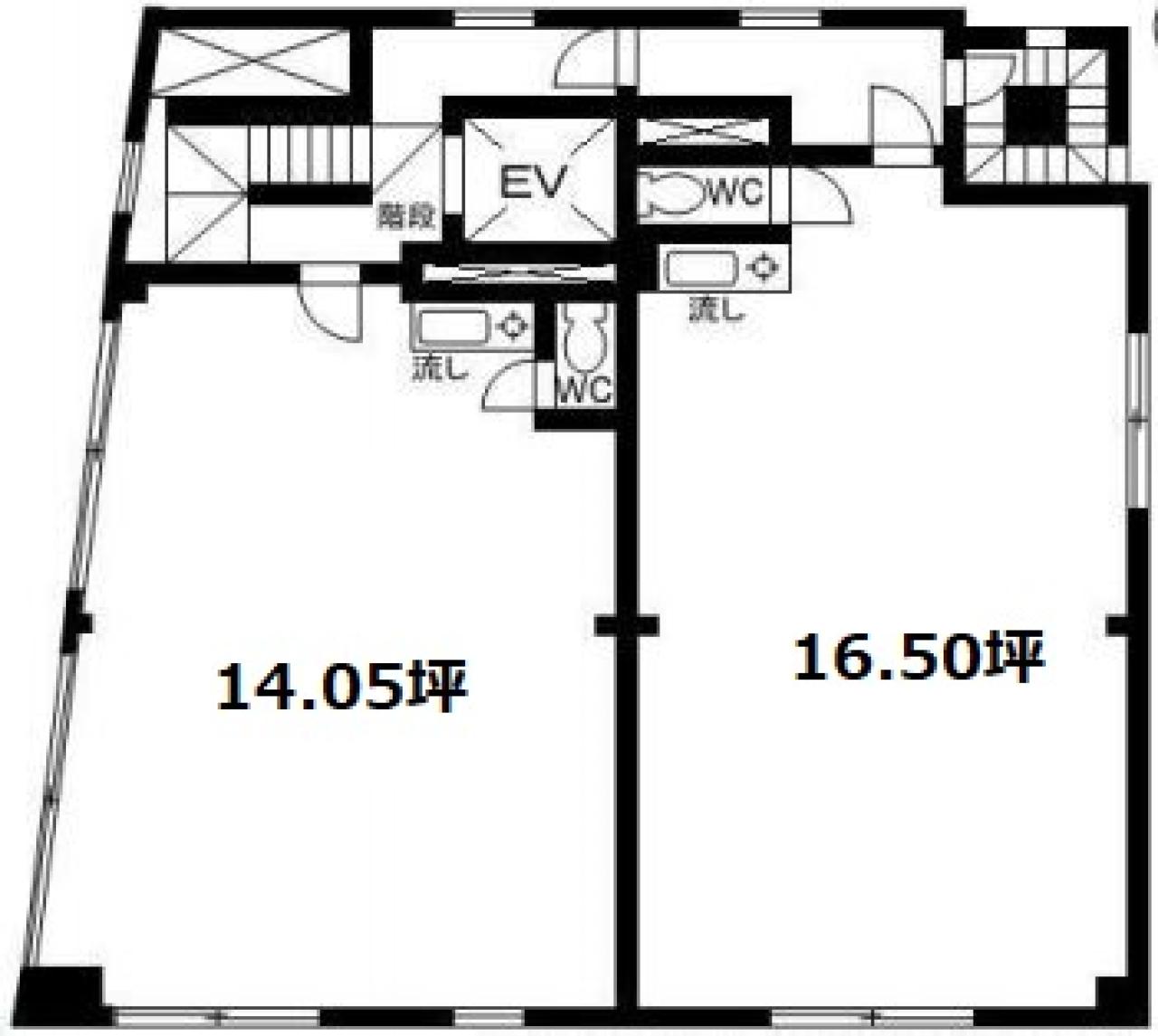
間取り図
-
近隣相場情報
上野5丁目(20坪以下)の相場
20001 円 (坪)
※ビルサク調べ
周辺地図
サスガ第2ビルは台東区上野にある地下1階、地上6階建ての賃貸事務所です。最寄駅はJR線の御徒町駅から徒歩1分、東京メトロ日比谷線の仲御徒町駅から徒歩1分、都営大江戸線の上野御徒町駅から徒歩1分です。2000年8月竣工の鉄骨造です。設備としては、エレベーターが1基あります。耐震設計となっている、複数駅利用可能なアクセスの良い台東区上野の賃貸オフィスです。
全フロア情報
更新日:2025年9月19日
| 階 | 面積 | 賃料 | 共益費 | 敷金 | 入居日 | お問合せ | お気に入り | |
|---|---|---|---|---|---|---|---|---|
|
1F
(102区画) |
17 坪 56.2 ㎡ |
※現在空室情報はございません |
※現在空室情報は 確認する |
|||||
|
3F
(301区画) |
14.05 坪 46.45 ㎡ |
※現在空室情報はございません |
※現在空室情報は 確認する |
|||||
|
4F
(401区画) |
14.05 坪 46.45 ㎡ |
※現在空室情報はございません |
※現在空室情報は 確認する |
|||||
|
5F
(501区画) |
14.05 坪 46.45 ㎡ |
※現在空室情報はございません |
※現在空室情報は 確認する |
|||||
|
5F
(502区画) |
16.5 坪 54.55 ㎡ |
231,000 円 14,000 円(坪) |
49,500 円 3,000 円(坪) |
924,000 円 4 ヶ月 |
相談 |
|
|
|
|
6F
(601区画) |
14.05 坪 46.45 ㎡ |
※現在空室情報はございません |
※現在空室情報は 確認する |
|||||
|
6F
(602区画) |
16.5 坪 54.53 ㎡ |
※現在空室情報はございません |
※現在空室情報は 確認する |
|||||
お問い合わせ
似た条件の物件はこちら
-
寿コーポラス
東京都台東区北上野2-18-1
坪数:16.64 坪
坪単価:8,473 円(坪)
-
B・ビレッヂIビル
東京都台東区台東1-14-7
坪数:14.5 坪
坪単価:10,000 円(坪)
-
松本マンション
東京都台東区台東4-27-5
坪数:15 坪
坪単価:10,000 円(坪)
-
冨田ビル
東京都台東区東上野1-7-2
坪数:14.99 坪
坪単価:14,676 円(坪)
-
明和センチュリー21
東京都台東区台東4-29-13
坪数:16 坪
坪単価:12,500 円(坪)
-
サイコービル
東京都台東区上野5-17-5
坪数:18.72 坪
坪単価:14,690 円(坪)
-
メゾン上野桜木
東京都台東区上野桜木1-15-6
坪数:18 坪
坪単価:8,333 円(坪)
-
上野TKSビル
東京都台東区上野2-11-12
坪数:16.43 坪
坪単価:16,489 円(坪)
-
御徒町グリーンプラザ
東京都台東区台東4-6-5
坪数:15.01 坪
坪単価:11,341 円(坪)
-
伊藤ビル
東京都台東区東上野1-1-7
坪数:15.73 坪
坪単価:13,350 円(坪)