KRT青山(物件No:91481113)
KRT青山は、港区北青山にある貸事務所物件です。最寄り駅は東京メトロ銀座線、半蔵門線の青山一丁目駅、表参道駅、東京メトロ銀座線線の外苑前駅です。1989年竣工で、基準階が143.71坪の賃貸オフィスビルです。床はOAフロアとなっています。空調は個別空調でトイレは室内にあり、男女別です。機械警備で、駐車場があり、エレベーターは1基あります。複数路線利用可能な、アクセスの良い港区北青山の貸事務所です。
| 階 | 面積 | 賃料 | 共益費 | 敷金 | 入居日 | お問合せ | お気に入り |
|---|---|---|---|---|---|---|---|
| 3F |
119 坪 393.39 ㎡ |
2,320,500 円 19,500 円(坪) |
416,500 円 3,500 円(坪) |
18,564,000 円 8 ヶ月 |
2026/06/01 |
|
|
| 階 | 面積 | 賃料 | 共益費 | 敷金 | 入居日 | お問合せ | お気に入り |
|---|---|---|---|---|---|---|---|
| 3F |
119 坪 393.39 ㎡ |
2,320,500 円 19,500 円(坪) |
416,500 円 3,500 円(坪) |
18,564,000 円 8 ヶ月 |
2026/06/01 |
|
|
-
物件情報
-
設備情報
- トイレ
- 室内男女別
- 床
- -
- 空調
- 個別空調
- セキュリティ
- 有
- 駐車場
- 有
- 会議室
- -
- エレベーター
- 1基
- 天井高
- -
-
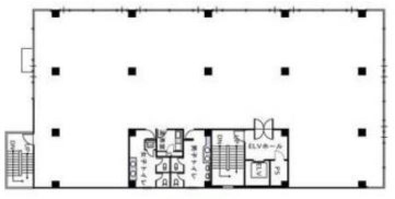
間取り図
-
近隣相場情報
北青山2丁目(100坪以上)の相場
30500 円 (坪)
※ビルサク調べ
周辺施設情報
| コンビニ |
ローソン/ナチュラル 北青山二丁目/ ファミリーマート/北青山二丁目店/140m(徒歩2分) |
|---|---|
| 郵便局/銀行 |
ローソン銀行/ローソン NL 北青山二丁目共同出張所/[営業時間]24時間 [取扱]海外発行カード対応、視覚障害者対応 [備考]ご利用可能な金融機関 当店のATM管理はローソン銀行です/ イーネット/ファミリーマート北青山二丁目/[営業時間]0:00-24:00/110m(徒歩1分) |
| 飲食店 |
増田屋/11時30分~15時30分、17時00分~20時30分/150m(徒歩2分) カフェ&バー ふらんぼう/【火~土】11:30~20:00【昼】11:30~15:00(夜は20:00以降は予約対応)/160m(徒歩2分) |
| カフェ |
アンレーヴ/11時00分~22時00分/240m(徒歩3分) レシオアンドシー/[月・火・木・金]カフェ:8:30~19:00、ショップ:10:00~19:00 [土・日・祝]カフェ・ショップ:10:00~19:00 日曜営業/350m(徒歩4分) |
| コインパーキング |
タイムズ駐車場/南青山ブライトスクエア [料金] [全日]00:00-00:00 15分 300円 [最大料金] [全日]08:00-19:00 最大料金3200円 [全日]19:00-08:00 最大料金800円 [台数]21 三井のリパーク/青山OM-SQUARE駐車場 [料金] 全日 00:00~24:00 10分/100円 [最大料金] 最大料金1,800円(入庫後24時間まで) [台数]26 |
周辺地図
KRT青山は、港区北青山にある貸事務所物件です。最寄り駅は東京メトロ銀座線、半蔵門線の青山一丁目駅、表参道駅、東京メトロ銀座線線の外苑前駅です。1989年竣工で、基準階が143.71坪の賃貸オフィスビルです。床はOAフロアとなっています。空調は個別空調でトイレは室内にあり、男女別です。機械警備で、駐車場があり、エレベーターは1基あります。複数路線利用可能な、アクセスの良い港区北青山の貸事務所です。
全フロア情報
更新日:2026年1月13日
| 階 | 面積 | 賃料 | 共益費 | 敷金 | 入居日 | お問合せ | お気に入り | |
|---|---|---|---|---|---|---|---|---|
| 1F |
18.59 坪 61.45 ㎡ |
※現在空室情報はございません |
※現在空室情報は 確認する |
|||||
| 2F |
147.06 坪 486.15 ㎡ |
※現在空室情報はございません |
※現在空室情報は 確認する |
|||||
| 3F |
119 坪 393.39 ㎡ |
2,320,500 円 19,500 円(坪) |
416,500 円 3,500 円(坪) |
18,564,000 円 8 ヶ月 |
2026/06/01 |
|
|
|
| 4F |
36.25 坪 119.83 ㎡ |
※現在空室情報はございません |
※現在空室情報は 確認する |
|||||
お問い合わせ
似た条件の物件はこちら
-
寿光ビル
東京都港区南青山1-26-1
坪数:144.75 坪
坪単価:20,000 円(坪)
-
南青山7丁目戸建
東京都港区南青山7-8-14
坪数:92.39 坪
坪単価:16,236 円(坪)
-
KD南青山ビル
東京都港区南青山3-1-31
坪数:91.69 坪
坪単価:32,000 円(坪)
-
南青山DFビル
東京都港区南青山2-2-8
坪数:115 坪
坪単価:10,957 円(坪)