安藤ビル(物件No:91388199)
安藤ビルは、台東区台東にある貸事務所物件です。最寄り駅は、JR線の秋葉原駅、浅草橋駅、つくばエクスプレスの新御徒町駅、東京メトロ日比谷線の仲御徒町駅、東京メトロ銀座線の末広町駅、都営大江戸線の上野御徒町駅、新御徒町駅です。1987年竣工で、基準階が52坪の賃貸オフィスビルです。天高は2400mmとなっています。空調は個別空調でトイレは男女別です。機械警備で、駐車場があり、エレベーターは1基あります。複数路線利用可能な、アクセスの良い台東区台東の貸事務所です。
-
物件情報
-
設備情報
- トイレ
- 男女別
- 床
- -
- 空調
- 個別空調
- セキュリティ
- 有
- 駐車場
- 有
- 会議室
- -
- エレベーター
- 1基
- 天井高
- 2400mm
-
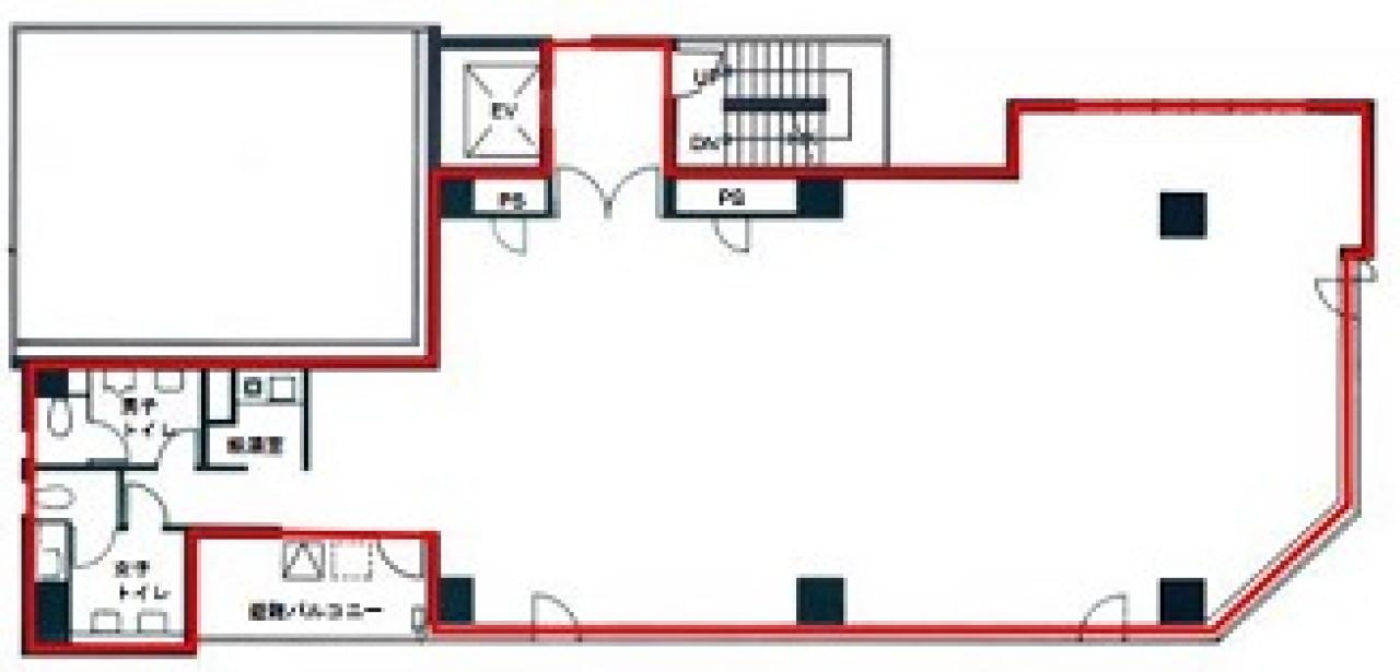
間取り図
-
近隣相場情報
台東2丁目(50~100坪)の相場
17907 円 (坪)
※ビルサク調べ
周辺地図
安藤ビルは、台東区台東にある貸事務所物件です。最寄り駅は、JR線の秋葉原駅、浅草橋駅、つくばエクスプレスの新御徒町駅、東京メトロ日比谷線の仲御徒町駅、東京メトロ銀座線の末広町駅、都営大江戸線の上野御徒町駅、新御徒町駅です。1987年竣工で、基準階が52坪の賃貸オフィスビルです。天高は2400mmとなっています。空調は個別空調でトイレは男女別です。機械警備で、駐車場があり、エレベーターは1基あります。複数路線利用可能な、アクセスの良い台東区台東の貸事務所です。
全フロア情報
更新日:2022年2月7日
| 階 | 面積 | 賃料 | 共益費 | 敷金 | 入居日 | お問合せ | お気に入り | |
|---|---|---|---|---|---|---|---|---|
| 1F |
22.44 坪 74.18 ㎡ |
※現在空室情報はございません |
※現在空室情報は 確認する |
|||||
| 2F |
48.32 坪 159.74 ㎡ |
※現在空室情報はございません |
※現在空室情報は 確認する |
|||||
| 3F |
52.04 坪 172.03 ㎡ |
※現在空室情報はございません |
※現在空室情報は 確認する |
|||||
| 4F |
52.04 坪 172.03 ㎡ |
※現在空室情報はございません |
※現在空室情報は 確認する |
|||||
| 5F |
52.04 坪 172.03 ㎡ |
※現在空室情報はございません |
※現在空室情報は 確認する |
|||||
| 6F |
52.04 坪 172.03 ㎡ |
※現在空室情報はございません |
※現在空室情報は 確認する |
|||||
| 7F |
52.04 坪 172.03 ㎡ |
※現在空室情報はございません |
※現在空室情報は 確認する |
|||||
| 8F |
52.04 坪 172.03 ㎡ |
※現在空室情報はございません |
※現在空室情報は 確認する |
|||||
お問い合わせ
似た条件の物件はこちら
-
アサヒビル
東京都台東区台東2-31-3
坪数:43.85 坪
坪単価:17,000 円(坪)
-
勝徳ビル
東京都台東区台東2-25-6
坪数:48.33 坪
坪単価:10,500 円(坪)
-
第二吉沢ビル
東京都台東区東上野2-19-3
坪数:46.42 坪
坪単価:11,000 円(坪)
-
エクセレントビル
東京都台東区上野3-2-1
坪数:56 坪
坪単価:11,000 円(坪)
-
仲御徒町フロントビル
東京都台東区台東4-8-7
坪数:59.06 坪
坪単価:24,000 円(坪)
-
サンケエホワイトビル
東京都台東区台東2-29-12
坪数:43 坪
坪単価:8,784 円(坪)
-
THE GATE UENO
東京都台東区東上野1-12-2
坪数:51.63 坪
坪単価:17,000 円(坪)
-
外園ビル
東京都台東区東上野1-17-1
坪数:45 坪
坪単価:9,000 円(坪)
-
フリーアネックスビル
東京都台東区東上野2-1-1
坪数:39.69 坪
坪単価:13,001 円(坪)
-
ロイヤル北上野
東京都台東区北上野2-25-11
坪数:40 坪
坪単価:8,750 円(坪)