安藤ビル(物件No:91388199)
安藤ビルは、台東区台東にある貸事務所物件です。最寄り駅は、JR線の秋葉原駅、浅草橋駅、つくばエクスプレスの新御徒町駅、東京メトロ日比谷線の仲御徒町駅、東京メトロ銀座線の末広町駅、都営大江戸線の上野御徒町駅、新御徒町駅です。1987年竣工で、基準階が52坪の賃貸オフィスビルです。天高は2400mmとなっています。空調は個別空調でトイレは男女別です。機械警備で、駐車場があり、エレベーターは1基あります。複数路線利用可能な、アクセスの良い台東区台東の貸事務所です。
-
物件情報
-
設備情報
- トイレ
- 室内男女別
- 床
- 2WAY
- 空調
- 個別空調
- セキュリティ
- 有
- 駐車場
- 有
- 会議室
- -
- エレベーター
- 1基
- 天井高
- 2400mm
-
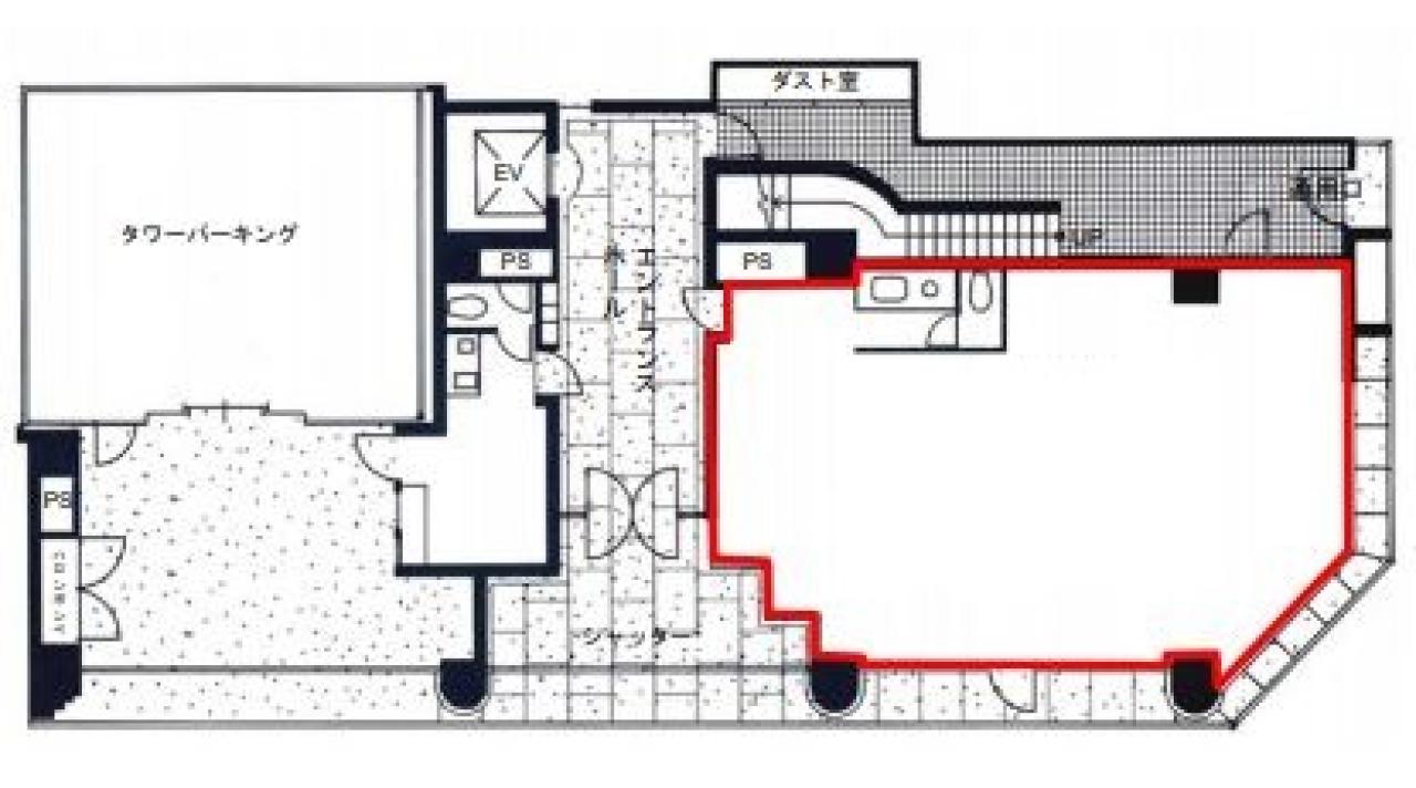
間取り図
-
近隣相場情報
台東2丁目(20~30坪)の相場
11836 円 (坪)
※ビルサク調べ
周辺地図
安藤ビルは、台東区台東にある貸事務所物件です。最寄り駅は、JR線の秋葉原駅、浅草橋駅、つくばエクスプレスの新御徒町駅、東京メトロ日比谷線の仲御徒町駅、東京メトロ銀座線の末広町駅、都営大江戸線の上野御徒町駅、新御徒町駅です。1987年竣工で、基準階が52坪の賃貸オフィスビルです。天高は2400mmとなっています。空調は個別空調でトイレは男女別です。機械警備で、駐車場があり、エレベーターは1基あります。複数路線利用可能な、アクセスの良い台東区台東の貸事務所です。
全フロア情報
更新日:2025年10月31日
| 階 | 面積 | 賃料 | 共益費 | 敷金 | 入居日 | お問合せ | お気に入り | |
|---|---|---|---|---|---|---|---|---|
| 1F |
22.44 坪 74.18 ㎡ |
※現在空室情報はございません |
※現在空室情報は 確認する |
|||||
| 2F |
48.32 坪 159.74 ㎡ |
※現在空室情報はございません |
※現在空室情報は 確認する |
|||||
| 3F |
52.04 坪 172.03 ㎡ |
※現在空室情報はございません |
※現在空室情報は 確認する |
|||||
| 4F |
52.04 坪 172.03 ㎡ |
※現在空室情報はございません |
※現在空室情報は 確認する |
|||||
| 5F |
52.04 坪 172.03 ㎡ |
※現在空室情報はございません |
※現在空室情報は 確認する |
|||||
| 6F |
52.04 坪 172.03 ㎡ |
※現在空室情報はございません |
※現在空室情報は 確認する |
|||||
| 7F |
52.04 坪 172.03 ㎡ |
※現在空室情報はございません |
※現在空室情報は 確認する |
|||||
| 8F |
52.04 坪 172.03 ㎡ |
※現在空室情報はございません |
※現在空室情報は 確認する |
|||||
お問い合わせ
似た条件の物件はこちら
-
ライオンズマンション上野山下
東京都台東区上野2-14-30
坪数:25.35 坪
坪単価:15,779 円(坪)
-
東宝第三ビル
東京都台東区東上野2-19-9
坪数:23.93 坪
坪単価:11,430 円(坪)
-
FUJIYAビル
東京都台東区東上野3-14-9
坪数:17.2 坪
坪単価:11,000 円(坪)
-
木村屋ビル
東京都台東区台東2-19-10
坪数:21.86 坪
坪単価:7,333 円(坪)
-
メグミビル
東京都台東区上野3-6-4
坪数:21.98 坪
坪単価:12,000 円(坪)
-
ヴァッソンシノバズ
東京都台東区池之端2-1-42
坪数:18.88 坪
坪単価:9,874 円(坪)
-
宮島ビル
東京都台東区東上野3-15-3
坪数:20.94 坪
坪単価:15,000 円(坪)
-
伊藤ビル
東京都台東区東上野1-1-7
坪数:17.25 坪
坪単価:12,174 円(坪)
-
りとるふぉ~れすとビル
東京都台東区北上野2-10-1
坪数:18.3 坪
坪単価:10,000 円(坪)
-
外園ビル
東京都台東区東上野1-17-1
坪数:22.48 坪
坪単価:9,508 円(坪)