恵比寿佐藤ビル(物件No:91386085)
恵比寿佐藤ビルは渋谷区恵比寿南にある地下1階、地上4階建ての賃貸事務所です。最寄駅は東京メトロ日比谷線の恵比寿駅から徒歩4分、東急東横線の代官山駅から徒歩6分、東急東横線の中目黒駅から徒歩8分です。1992年1月竣工の鉄筋コンクリート造です。耐震設計となっている、複数路線利用可能なアクセスの良い渋谷区恵比寿南の賃貸オフィスです。
-
物件情報
-
設備情報
- トイレ
- 男女別
- 床
- -
- 空調
- 個別空調
- セキュリティ
- 無
- 駐車場
- 有
- 会議室
- -
- エレベーター
- 1基
- 天井高
- -
-
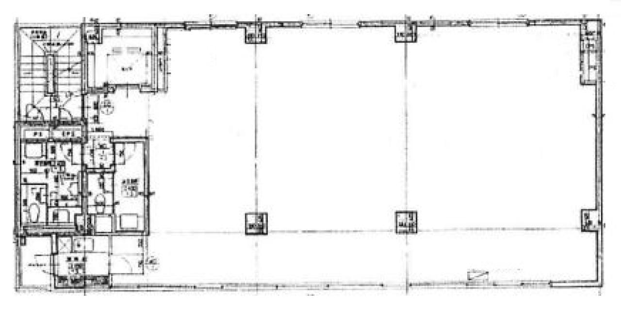
間取り図
-
近隣相場情報
恵比寿南3丁目(50~100坪)の相場
27000 円 (坪)
※ビルサク調べ
周辺施設情報
| コンビニ |
ファミリーマート/メトロ恵比寿駅前店/500m(徒歩6分) ローソン/恵比寿南一丁目/550m(徒歩6分) |
|---|---|
| 郵便局/銀行 |
ビューアルッテ/JR恵比寿駅東口/[営業時間]全日/4:35~25:10※毎月第二土曜日23:00~翌日8:00はご利用になれません。※駅や店舗の営業時間により、ATM営業時間が変更となる場合があります [取扱]お引出し・残高照会のみ/800m(徒歩10分) セブン銀行/アトレ恵比寿 西館/[営業時間]8:00~23:00 [備考]1 台/500m(徒歩6分) |
| 飲食店 |
酒と香/11時30分~14時30分/290m(徒歩3分) えびな亭/11時30分~14時30分、17時30分~22時30分/350m(徒歩4分) |
| カフェ |
カフェ バルハラ/350m(徒歩5分) サンマルクカフェ/恵比寿駅前店/[営業時間]7:00~23:30 新型コロナウィルスの影響により営業時間が短縮する場合がございますので、営業時間は店舗までお問い合わせください。下記「コロナ対策短縮営業時間一覧はこちら」からも、短縮営業時間をご確認いただけます [休業日]無 [備考]107席(店内全面禁煙)/400m(徒歩5分) |
| コインパーキング |
PARKS PARK/渋谷区恵比寿南3丁目 [料金] 【昼間】 8:00~22:00 200円 / 15分 【夜間】 22:00~8:00 100円 / 60分 [最大料金] 【12時間最大料金】 全日 2200円 (繰り返し可) [営業時間]24時間営業 タイムズ/恵比寿南第6 [料金] [全日]8:00~22:00 10分 220円 [全日]22:00~8:00 60分 220円 [最大料金] [全日]駐車後5時間 最大料金3080円 [台数]6 |
周辺地図
恵比寿佐藤ビルは渋谷区恵比寿南にある地下1階、地上4階建ての賃貸事務所です。最寄駅は東京メトロ日比谷線の恵比寿駅から徒歩4分、東急東横線の代官山駅から徒歩6分、東急東横線の中目黒駅から徒歩8分です。1992年1月竣工の鉄筋コンクリート造です。耐震設計となっている、複数路線利用可能なアクセスの良い渋谷区恵比寿南の賃貸オフィスです。
全フロア情報
更新日:2021年6月10日
| 階 | 面積 | 賃料 | 共益費 | 敷金 | 入居日 | お問合せ | お気に入り | |
|---|---|---|---|---|---|---|---|---|
|
2F
(1区画) |
54.45 坪 180.00 ㎡ |
※現在空室情報はございません |
※現在空室情報は 確認する |
|||||
| 3F |
54.45 坪 180.00 ㎡ |
※現在空室情報はございません |
※現在空室情報は 確認する |
|||||
お問い合わせ
似た条件の物件はこちら
-
いちご恵比寿西ビル
東京都渋谷区恵比寿西2-7-3
坪数:63.25 坪
坪単価:29,000 円(坪)
-
COM-BOX
東京都渋谷区恵比寿西1-32-16
坪数:55.55 坪
坪単価:15,662 円(坪)
-
CATビル
東京都渋谷区恵比寿西2-3-16
坪数:57.21 坪
坪単価:22,000 円(坪)
-
Planex Wattビル
東京都渋谷区恵比寿南1-16-13
坪数:51.84 坪
坪単価:27,273 円(坪)
-
HAGIWARA BLDG.2
東京都渋谷区広尾1-2-2
坪数:42.14 坪
坪単価:21,357 円(坪)
-
シャトレ代官山アネックス
東京都渋谷区代官山町2-6
坪数:47.96 坪
坪単価:17,723 円(坪)
-
ASKビル
東京都渋谷区恵比寿1-24-4
坪数:53.03 坪
坪単価:20,008 円(坪)
-
三恵51ビル
東京都渋谷区恵比寿1-11-2
坪数:48.68 坪
坪単価:27,000 円(坪)
-
SR広尾ビル
東京都渋谷区広尾5-19-4
坪数:54.67 坪
坪単価:30,001 円(坪)
-
WARNERビル
東京都渋谷区恵比寿3-36-3
坪数:41.25 坪
坪単価:28,418 円(坪)