いろいろ聞いてみる

京橋の賃貸オフィス

京橋エドグラン(物件No:91298509)

京橋エドグランは、中央区京橋にある貸事務所物件で、最寄駅は地下鉄銀座線の京橋駅です。2016年10月竣工予定の物件で、基準階821.04坪の賃貸オフィスビルです。地上32階建てで、駐車場も利用可能です。床はOAフロアで、天井高は2,900mmあります。東京駅から徒歩約5分で京橋駅直結の非常に好立地の中央区京橋の貸事務所です。

面積 賃料 共益費 敷金 入居日 お問合せ お気に入り
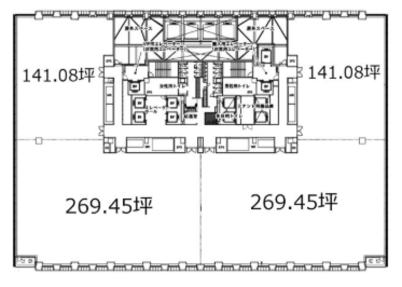
25F

(4区画)

269.45 坪

890.74 ㎡

相談

12ヵ月

2026/04/01 お問い合わせ お気に入り
  • 京橋エドグラン
  • 京橋エドグラン
  • 京橋エドグラン
  • 京橋エドグラン
面積 賃料 共益費 敷金 入居日 お問合せ お気に入り
25F

(4区画)

269.45 坪

890.74 ㎡

相談

12ヵ月

2026/04/01 お問い合わせ お気に入り

周辺施設情報

コンビニ

セブンイレブン/京橋エドグランフロアスリー/

ローソン/京橋エドグラン/

郵便局/銀行

山形銀行/東京支店/平日 9:00-15:00 土曜 - 日祝 - [ATM]平日 9:00-17:00 土曜 - 日祝 -/100m(徒歩1分)

みずほ銀行/京橋支店/窓口 平日9:00~15:00 ATM 平日 / 6:00~26:00 土曜日/ 8:00~22:00 日曜日/ 8:00~21:00 祝日・振替休日 / 8:00~21:00/110m(徒歩1分)

飲食店

TAVERNA UOKIN 京橋店/11時30分~15時00分、17時00分~23時30分/180m(徒歩2分)

京すし/11時30分~14時00分、17時00分~22時00分/60m(徒歩1分)

カフェ

スターバックス/京橋エドグラン店/[営業時間]月~金: 07:00~22:00 土: 08:00~20:00 日祝: 09:00~20:00 [休業日]不定休 [備考]無線LAN:STARBUCKS/docomo/FLET’S(東)/Softbank/au/Wi2 300/70m(徒歩1分)

プロント/八重洲柳通り店/[営業時間]平日:カフェ 7:00~17:30 バー 17:30~23:30 土曜:カフェ 9:30~17:30 日曜:カフェ 9:30~17:30 祝日:カフェ 9:30~17:30 [休業日]無休 [備考]51席/空間分煙/130m(徒歩2分)

コインパーキング

タイムズ駐車場/京橋エドグラン

[料金]

[月~金]07:00-23:00 30分 300円

[土・日・祝]07:00-23:00 30分 300円

[最大料金]

[月~金]当日1日最大料金2000円(24時迄)

[土・日・祝]当日1日最大料金1800円(24時迄)

[台数]215

三井のリパーク/八重洲2丁目

[料金]

全日 00:00~08:00 60分/100円

全日 08:00~00:00 12分/300円

[最大料金]

タイムズ駐車場/相互館110タワー

[台数]2

周辺地図

京橋エドグランは、中央区京橋にある貸事務所物件で、最寄駅は地下鉄銀座線の京橋駅です。2016年10月竣工予定の物件で、基準階821.04坪の賃貸オフィスビルです。地上32階建てで、駐車場も利用可能です。床はOAフロアで、天井高は2,900mmあります。東京駅から徒歩約5分で京橋駅直結の非常に好立地の中央区京橋の貸事務所です。

全フロア情報

更新日:2026年3月3日

面積 賃料 共益費 敷金 入居日 お問合せ お気に入り
2F

(202区画)

24.19 坪

79.97 ㎡

※現在空室情報はございません

※現在空室情報は
ございません

最新情報を
確認する
7F

358.65 坪

1185.62 ㎡

※現在空室情報はございません

※現在空室情報は
ございません

最新情報を
確認する
7F

(1区画)

256.19 坪

846.91 ㎡

※現在空室情報はございません

※現在空室情報は
ございません

最新情報を
確認する
8F

821.07 坪

2714.28 ㎡

※現在空室情報はございません

※現在空室情報は
ございません

最新情報を
確認する
9F

821.07 坪

2714.28 ㎡

※現在空室情報はございません

※現在空室情報は
ございません

最新情報を
確認する
9F

(1区画)

410.53 坪

1357.12 ㎡

※現在空室情報はございません

※現在空室情報は
ございません

最新情報を
確認する
9F

(2区画)

269.45 坪

890.74 ㎡

※現在空室情報はございません

※現在空室情報は
ございません

最新情報を
確認する
10F

821.07 坪

2714.28 ㎡

※現在空室情報はございません

※現在空室情報は
ございません

最新情報を
確認する
11F

821.07 坪

2714.28 ㎡

※現在空室情報はございません

※現在空室情報は
ございません

最新情報を
確認する
12F

821.07 坪

2714.28 ㎡

※現在空室情報はございません

※現在空室情報は
ございません

最新情報を
確認する
13F

821.07 坪

2714.28 ㎡

※現在空室情報はございません

※現在空室情報は
ございません

最新情報を
確認する
14F

821.07 坪

2714.28 ㎡

※現在空室情報はございません

※現在空室情報は
ございません

最新情報を
確認する
14F

(1区画)

410.53 坪

1357.12 ㎡

※現在空室情報はございません

※現在空室情報は
ございません

最新情報を
確認する
14F

(2区画)

269.45 坪

890.74 ㎡

※現在空室情報はございません

※現在空室情報は
ございません

最新情報を
確認する
15F

821.07 坪

2714.28 ㎡

※現在空室情報はございません

※現在空室情報は
ございません

最新情報を
確認する
16F

821.07 坪

2714.28 ㎡

※現在空室情報はございません

※現在空室情報は
ございません

最新情報を
確認する
16F

(1区画)

679.99 坪

2247.9 ㎡

※現在空室情報はございません

※現在空室情報は
ございません

最新情報を
確認する
16F

(東区画)

141.08 坪

466.38 ㎡

※現在空室情報はございません

※現在空室情報は
ございません

最新情報を
確認する
16F

(西区画)

269.45 坪

890.74 ㎡

※現在空室情報はございません

※現在空室情報は
ございません

最新情報を
確認する
17F

821.07 坪

2714.28 ㎡

※現在空室情報はございません

※現在空室情報は
ございません

最新情報を
確認する
17F

(1区画)

410.53 坪

1357.12 ㎡

※現在空室情報はございません

※現在空室情報は
ございません

最新情報を
確認する
18F

821.07 坪

2714.28 ㎡

※現在空室情報はございません

※現在空室情報は
ございません

最新情報を
確認する
18F

(1区画)

410.53 坪

1357.12 ㎡

※現在空室情報はございません

※現在空室情報は
ございません

最新情報を
確認する
18F

(2区画)

269.45 坪

890.74 ㎡

※現在空室情報はございません

※現在空室情報は
ございません

最新情報を
確認する
19F

821.07 坪

2714.28 ㎡

※現在空室情報はございません

※現在空室情報は
ございません

最新情報を
確認する
19F

(2区画)

269.45 坪

890.74 ㎡

※現在空室情報はございません

※現在空室情報は
ございません

最新情報を
確認する
19F

(東区画)

141.08 坪

466.38 ㎡

※現在空室情報はございません

※現在空室情報は
ございません

最新情報を
確認する
19F

(西区画)

410.53 坪

1357.12 ㎡

※現在空室情報はございません

※現在空室情報は
ございません

最新情報を
確認する
20F

821.07 坪

2714.28 ㎡

※現在空室情報はございません

※現在空室情報は
ございません

最新情報を
確認する
20F

(1区画)

141.08 坪

466.38 ㎡

※現在空室情報はございません

※現在空室情報は
ございません

最新情報を
確認する
21F

821.07 坪

2714.28 ㎡

※現在空室情報はございません

※現在空室情報は
ございません

最新情報を
確認する
21F

(1区画)

141.08 坪

466.38 ㎡

※現在空室情報はございません

※現在空室情報は
ございません

最新情報を
確認する
22F

(東区画)

273.27 坪

903.37 ㎡

※現在空室情報はございません

※現在空室情報は
ございません

最新情報を
確認する
22F

(西区画)

273.27 坪

903.37 ㎡

※現在空室情報はございません

※現在空室情報は
ございません

最新情報を
確認する
23F

821.07 坪

2714.28 ㎡

※現在空室情報はございません

※現在空室情報は
ございません

最新情報を
確認する
24F

678.81 坪

2244 ㎡

※現在空室情報はございません

※現在空室情報は
ございません

最新情報を
確認する
24F

(1区画)

141.08 坪

466.38 ㎡

※現在空室情報はございません

※現在空室情報は
ございません

最新情報を
確認する
24F

(2区画)

269.45 坪

890.74 ㎡

※現在空室情報はございません

※現在空室情報は
ございません

最新情報を
確認する
25F

821.07 坪

2714.28 ㎡

※現在空室情報はございません

※現在空室情報は
ございません

最新情報を
確認する
25F

(1区画)

679.99 坪

2247.9 ㎡

※現在空室情報はございません

※現在空室情報は
ございません

最新情報を
確認する
25F

(2区画)

640 坪

2115.7 ㎡

※現在空室情報はございません

※現在空室情報は
ございません

最新情報を
確認する
25F

(3区画)

410 坪

1355.37 ㎡

※現在空室情報はございません

※現在空室情報は
ございません

最新情報を
確認する
25F

(4区画)

269.45 坪

890.74 ㎡

相談

12ヵ月

2026/04/01 お問い合わせ お気に入り
25F

(5区画)

141.08 坪

466.38 ㎡

※現在空室情報はございません

※現在空室情報は
ございません

最新情報を
確認する
26F

821.07 坪

2714.28 ㎡

※現在空室情報はございません

※現在空室情報は
ございません

最新情報を
確認する
26F

(1区画)

269.45 坪

890.74 ㎡

※現在空室情報はございません

※現在空室情報は
ございません

最新情報を
確認する
26F

(2区画)

679.98 坪

2247.86 ㎡

※現在空室情報はございません

※現在空室情報は
ございません

最新情報を
確認する
26F

(3区画)

141.08 坪

466.38 ㎡

※現在空室情報はございません

※現在空室情報は
ございません

最新情報を
確認する
27F

269.45 坪

890.74 ㎡

※現在空室情報はございません

※現在空室情報は
ございません

最新情報を
確認する
28F

821.07 坪

2714.28 ㎡

※現在空室情報はございません

※現在空室情報は
ございません

最新情報を
確認する

お問い合わせ

必須
必須
必須
必須
必須

似た条件の物件はこちら

関連エリアから探す

駅から探す

お問い合わせ

物件に関してのお問い合わせ

「失敗しないオフィス移転サポート」物件探しから移転までスムーズで担当者様がとにかく楽になるサービスです。

050-7587-0049平日 9:00~18:00

メールでお問い合わせ

フリーワード検索