港南日成ビル(物件No:91289133)
港南日成ビルは、港区港南にある貸事務所物件です。最寄り駅は、JR線、京急本線の品川駅です。1986年竣工の賃貸オフィスビルです。空調は個別空調で、トイレは男女別です。エレベーターは1基あります。新耐震基準に適合している、港区港南の貸事務所です。
| 階 | 面積 | 賃料 | 共益費 | 敷金 | 入居日 | お問合せ | お気に入り |
|---|---|---|---|---|---|---|---|
| 4F |
91 坪 300.83 ㎡ |
910,000 円 10,000 円(坪) |
273,000 円 3,000 円(坪) |
3,640,000 円 4 ヶ月 |
即日 |
|
|
| 階 | 面積 | 賃料 | 共益費 | 敷金 | 入居日 | お問合せ | お気に入り |
|---|---|---|---|---|---|---|---|
| 4F |
91 坪 300.83 ㎡ |
910,000 円 10,000 円(坪) |
273,000 円 3,000 円(坪) |
3,640,000 円 4 ヶ月 |
即日 |
|
|
-
物件情報
-
設備情報
- トイレ
- 男女別
- 床
- -
- 空調
- -
- セキュリティ
- -
- 駐車場
- -
- 会議室
- -
- エレベーター
- 1基
- 天井高
- -
-
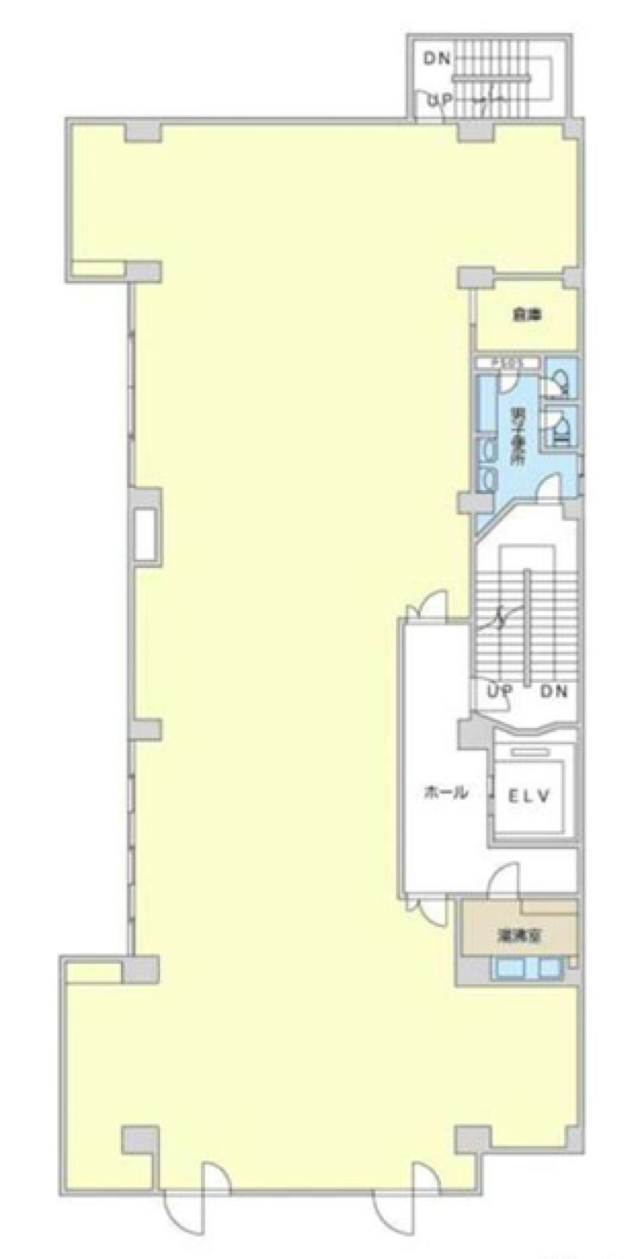
間取り図
-
近隣相場情報
港南3丁目(50~100坪)の相場
17832 円 (坪)
※ビルサク調べ
周辺施設情報
| コンビニ |
ローソン/LTF港区港南三丁目/450m(徒歩5分) ファミリーマート/リバージュ品川店/450m(徒歩6分) |
|---|---|
| 郵便局/銀行 |
ローソン銀行/港南三丁目共同出張所/[営業時間]24時間 [取扱]海外発行カード対応、視覚障害者対応 [備考]ご利用可能な金融機関 当店のATM管理はローソン銀行です/400m(徒歩5分) 郵便局/ATM ファミマ品川シーズンテラス2号店内出張所/[ATM]平日 7:00-23:00 土曜 7:00-23:00 日曜・祝日 7:00-23:00/600m(徒歩8分) |
| 飲食店 |
みとう庵 品川シーズンテラス店/11時00分~20時00分/600m(徒歩8分) 喜多方ラーメン 坂内 品川シーズンテラス店/11時00分~21時00分/600m(徒歩8分) |
| カフェ |
プロント/品川店/[営業時間]平日:カフェ 7:00~17:30 バー 17:30~23:00 土曜:カフェ 9:30~17:30 [休業日]日祝 [備考]76席/禁煙席/加熱式専用席/喫煙ブース/750m(徒歩10分) タリーズ/ソニーシティ内店/[営業時間]平日:8:00~20:00 土 :休業日 日祝:休業日 [備考]Tully's Wi-Fi/550m(徒歩7分) |
| コインパーキング |
タイムズ駐車場/港南第3 [料金] [全日]8:00~18:00 15分 200円 [全日]18:00~8:00 60分 100円 [最大料金] [全日]駐車後5時間 最大料金1800円 [台数]4 三井のリパーク/コーシャハイム港南三丁目 [料金] 全日 08:00~20:00 15分/200円 全日 20:00~08:00 60分/100円 [最大料金] 【全日】20:00~8:00以内 最大料金600円 【全日】最大料金入庫後24時間以内2500円 [台数]7 |
周辺地図
港南日成ビルは、港区港南にある貸事務所物件です。最寄り駅は、JR線、京急本線の品川駅です。1986年竣工の賃貸オフィスビルです。空調は個別空調で、トイレは男女別です。エレベーターは1基あります。新耐震基準に適合している、港区港南の貸事務所です。
全フロア情報
更新日:2025年12月22日
| 階 | 面積 | 賃料 | 共益費 | 敷金 | 入居日 | お問合せ | お気に入り | |
|---|---|---|---|---|---|---|---|---|
| 1F |
55.75 坪 184.3 ㎡ |
※現在空室情報はございません |
※現在空室情報は 確認する |
|||||
| 2F |
45.27 坪 149.65 ㎡ |
※現在空室情報はございません |
※現在空室情報は 確認する |
|||||
|
2F
(1区画) |
50 坪 165.29 ㎡ |
※現在空室情報はございません |
※現在空室情報は 確認する |
|||||
|
2F
(2区画) |
45.27 坪 149.65 ㎡ |
※現在空室情報はございません |
※現在空室情報は 確認する |
|||||
|
2F
(3区画) |
58.96 坪 194.91 ㎡ |
※現在空室情報はございません |
※現在空室情報は 確認する |
|||||
| 3F |
91 坪 300.83 ㎡ |
※現在空室情報はございません |
※現在空室情報は 確認する |
|||||
|
3F
(B区画) |
49.5 坪 163.64 ㎡ |
※現在空室情報はございません |
※現在空室情報は 確認する |
|||||
| 4F |
91 坪 300.83 ㎡ |
910,000 円 10,000 円(坪) |
273,000 円 3,000 円(坪) |
3,640,000 円 4 ヶ月 |
即日 |
|
|
|