土屋ビル・渋谷(物件No:91287076)
土屋ビル・渋谷は、渋谷区渋谷にある貸事務所物件です。最寄り駅は、JR線、東京メトロ銀座線、半蔵門線、副都心線、京王井の頭線の渋谷駅です。1991年竣工で、基準階が41.82坪の賃貸オフィスビルです。床はOAフロアとなっております。空調は個別空調で、トイレは男女別です。機械警備で、エレベーターは1基あります。複数路線利用可能な、アクセスの良い渋谷区渋谷の貸事務所です。
-
物件情報
-
設備情報
- トイレ
- 男女別
- 床
- フリーアクセス
- 空調
- 個別空調
- セキュリティ
- 有
- 駐車場
- -
- 会議室
- -
- エレベーター
- 1基
- 天井高
- -
-
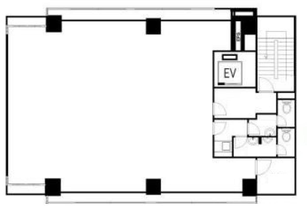
間取り図
-
近隣相場情報
渋谷3丁目(40~50坪)の相場
24000 円 (坪)
※ビルサク調べ
周辺施設情報
| コンビニ |
ファミリーマート/渋谷三丁目店/200m(徒歩3分) セブンイレブン/渋谷東1丁目/300m(徒歩4分) |
|---|---|
| 郵便局/銀行 |
みずほ銀行/ATM ミニストップ渋谷桜丘店出張所/[営業時間] [ATM]平日 0:00~24:00 土曜日 0:00~22:00 日曜日 8:00~24:00 祝日・振替休日 曜日に準ずる/700m(徒歩9分) ゆうちょ/渋谷三郵便局/[営業時間] [窓口]平日 9:00~16:00 土曜日 - 日曜日・休日 - [ATM]平日 9:00~18:00 土曜日 9:00~12:30 日曜日・休日 - [駐車場]なし [取扱]郵便/貯金/保険/ATM [備考]※新型コロナウイルスに感染した社員が発生した場合、窓口業務、ATMを一時休止/200m(徒歩3分) |
| 飲食店 |
イタリアンダイニング Il Fiume(イルフューメ)渋谷/11時30分~15時00分、17時30分~22時30分/120m(徒歩2分) 山下本気うどん 渋谷並木橋/11時00分~23時00分/12m(徒歩1分) |
| カフェ |
青山壹番館 渋谷店/10時00分~18時00分/300m(徒歩5分) Cafe and Bar R/11時30分~23時00分/400m(徒歩5分) |
| コインパーキング |
三井のリパーク/渋谷プロパティータワー [料金] 平日 08:00~23:00 20分/300円 平日 23:00~08:00 60分/100円 土日祝 08:00~23:00 20分/300円 土日祝 23:00~08:00 60分/100円 [最大料金] 【月~金】8:00~23:00以内 最大料金3200円 【月~金】23:00~8:00以内 最大料金500円 【土日祝】8:00~23:00以内 最大料金1800円 【土日祝】23:00~8:00以内 最大料金500円 [台数]11 トラストパーク/ホテルメッツ渋谷 [料金] 20分400円 [最大料金] 3時間まで最大1500円 ※繰り返しなし(1回限り) [パズル式限定] (08:00~21:00)最大2000円 [台数]31台 |
周辺地図
土屋ビル・渋谷は、渋谷区渋谷にある貸事務所物件です。最寄り駅は、JR線、東京メトロ銀座線、半蔵門線、副都心線、京王井の頭線の渋谷駅です。1991年竣工で、基準階が41.82坪の賃貸オフィスビルです。床はOAフロアとなっております。空調は個別空調で、トイレは男女別です。機械警備で、エレベーターは1基あります。複数路線利用可能な、アクセスの良い渋谷区渋谷の貸事務所です。
全フロア情報
更新日:2025年12月19日
| 階 | 面積 | 賃料 | 共益費 | 敷金 | 入居日 | お問合せ | お気に入り | |
|---|---|---|---|---|---|---|---|---|
| 2F |
41.75 坪 138 ㎡ |
※現在空室情報はございません |
※現在空室情報は 確認する |
|||||
| 3F |
41.75 坪 138 ㎡ |
※現在空室情報はございません |
※現在空室情報は 確認する |
|||||
| 4F |
41.75 坪 138.02 ㎡ |
1,127,250 円 27,000 円(坪) |
無 |
9,018,000 円 8 ヶ月 |
2026/01 |
|
|
|
| 5F |
41.75 坪 138.02 ㎡ |
※現在空室情報はございません |
※現在空室情報は 確認する |
|||||
| 6F |
41.75 坪 138.02 ㎡ |
※現在空室情報はございません |
※現在空室情報は 確認する |
|||||
| 8F |
41.75 坪 138.02 ㎡ |
※現在空室情報はございません |
※現在空室情報は 確認する |
|||||
お問い合わせ
似た条件の物件はこちら
-
ルート神南ビル
東京都渋谷区神南1-5-13
坪数:31.78 坪
坪単価:25,000 円(坪)
-
冨貴ビル
東京都渋谷区神宮前6-9-1
坪数:47.25 坪
坪単価:27,937 円(坪)
-
清澤ビル
東京都渋谷区渋谷3-17-2
坪数:38.11 坪
坪単価:25,500 円(坪)
-
ベリータ
東京都渋谷区東3-12-13
坪数:31.67 坪
坪単価:20,500 円(坪)
-
倉島渋谷ビル
東京都渋谷区渋谷2-3-8
坪数:49.26 坪
坪単価:18,000 円(坪)
-
モドマルシェ渋谷桜丘
東京都渋谷区桜丘町10-4
坪数:33.71 坪
坪単価:18,000 円(坪)
-
桑原ビル
東京都渋谷区神宮前3-24-3
坪数:42.20 坪
坪単価:16,000 円(坪)
-
丸栄ビル
東京都渋谷区神南1-9-7
坪数:32.83 坪
坪単価:16,601 円(坪)
-
ABC-MART公園通りビル
東京都渋谷区神南1-20-9
坪数:39.22 坪
坪単価:33,000 円(坪)
-
WIND EBISU Ⅲ BLDG
東京都渋谷区東2-17-10
坪数:34.77 坪
坪単価:22,000 円(坪)