ハシモトビル(物件No:91187169)
ハシモトビルは台東区浅草橋にある地上9階建ての賃貸事務所です。最寄駅はJR中央・総武線の浅草橋駅から徒歩5分、東京メトロ日比谷線の秋葉原駅から徒歩7分、都営浅草線の浅草橋駅から徒歩7分、つくばエクスプレスの秋葉原駅から徒歩8分、都営新宿線の小川町駅から徒歩9分です。1974年9月竣工の鉄骨鉄筋コンクリート造です。設備としては、エレベーターが1基あり、駐車場もあります。トイレは男女別です。空調は個別空調です。複数路線利用可能なアクセスの良い台東区浅草橋の賃貸オフィスです。
| 階 | 面積 | 賃料 | 共益費 | 敷金 | 入居日 | お問合せ | お気に入り |
|---|---|---|---|---|---|---|---|
|
9F
(905区画) |
11.98 坪 39.6 ㎡ |
120,000 円 10,017 円(坪) |
24,000 円 2,003 円(坪) |
960,000 円 8 ヶ月 |
即日 |
|
|
| 階 | 面積 | 賃料 | 共益費 | 敷金 | 入居日 | お問合せ | お気に入り |
|---|---|---|---|---|---|---|---|
|
9F
(905区画) |
11.98 坪 39.6 ㎡ |
120,000 円 10,017 円(坪) |
24,000 円 2,003 円(坪) |
960,000 円 8 ヶ月 |
即日 |
|
|
-
物件情報
-
設備情報
- トイレ
- 男女別
- 床
- -
- 空調
- 個別空調
- セキュリティ
- -
- 駐車場
- 有
- 会議室
- -
- エレベーター
- 1基
- 天井高
- -
-
間取り図
-
近隣相場情報
浅草橋5丁目(20坪以下)の相場
11911 円 (坪)
※ビルサク調べ
周辺地図
ハシモトビルは台東区浅草橋にある地上9階建ての賃貸事務所です。最寄駅はJR中央・総武線の浅草橋駅から徒歩5分、東京メトロ日比谷線の秋葉原駅から徒歩7分、都営浅草線の浅草橋駅から徒歩7分、つくばエクスプレスの秋葉原駅から徒歩8分、都営新宿線の小川町駅から徒歩9分です。1974年9月竣工の鉄骨鉄筋コンクリート造です。設備としては、エレベーターが1基あり、駐車場もあります。トイレは男女別です。空調は個別空調です。複数路線利用可能なアクセスの良い台東区浅草橋の賃貸オフィスです。
全フロア情報
更新日:2025年11月19日
| 階 | 面積 | 賃料 | 共益費 | 敷金 | 入居日 | お問合せ | お気に入り | |
|---|---|---|---|---|---|---|---|---|
|
2F
(210区画) |
10.6 坪 35.04 ㎡ |
※現在空室情報はございません |
※現在空室情報は 確認する |
|||||
|
3F
(303区画) |
11.5 坪 38.02 ㎡ |
※現在空室情報はございません |
※現在空室情報は 確認する |
|||||
|
4F
(401区画) |
12.5 坪 41.32 ㎡ |
※現在空室情報はございません |
※現在空室情報は 確認する |
|||||
|
4F
(402区画) |
16 坪 52.89 ㎡ |
※現在空室情報はございません |
※現在空室情報は 確認する |
|||||
|
4F
(407区画) |
14 坪 46.28 ㎡ |
※現在空室情報はございません |
※現在空室情報は 確認する |
|||||
|
5F
(501区画) |
12.5 坪 41.32 ㎡ |
※現在空室情報はございません |
※現在空室情報は 確認する |
|||||
|
6F
(601区画) |
52.5 坪 173.55 ㎡ |
※現在空室情報はございません |
※現在空室情報は 確認する |
|||||
|
7F
(703区画) |
11.5 坪 38.02 ㎡ |
※現在空室情報はございません |
※現在空室情報は 確認する |
|||||
|
8F
(803区画) |
23.5 坪 77.69 ㎡ |
※現在空室情報はございません |
※現在空室情報は 確認する |
|||||
|
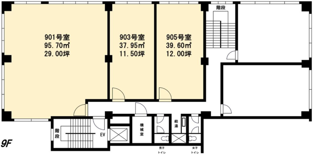
9F
(901区画) |
28.95 坪 95.7 ㎡ |
290,000 円 10,017 円(坪) |
58,000 円 2,003 円(坪) |
2,320,000 円 8 ヶ月 |
即日 |
|
|
|
|
9F
(903区画) |
11.48 坪 37.95 ㎡ |
115,000 円 10,017 円(坪) |
23,000 円 2,003 円(坪) |
920,000 円 8 ヶ月 |
即日 |
|
|
|
|
9F
(905区画) |
11.98 坪 39.6 ㎡ |
120,000 円 10,017 円(坪) |
24,000 円 2,003 円(坪) |
960,000 円 8 ヶ月 |
即日 |
|
|
|
お問い合わせ
似た条件の物件はこちら
-
大島屋浅草橋ビル
東京都台東区柳橋1-13-5
坪数:16 坪
坪単価:15,625 円(坪)
-
大手山ビル
東京都台東区柳橋1-7-7
坪数:15.70 坪
坪単価:10,000 円(坪)
-
浅草1丁目戸建店舗
東京都台東区浅草1-7-5
坪数:14.00 坪
坪単価:21,429 円(坪)
-
田中第1ビル
東京都台東区浅草橋3-22-2
坪数:15.73 坪
坪単価:12,715 円(坪)
-
ヨシクニ駒形ビル
東京都台東区駒形2-4-11
坪数:15.61 坪
坪単価:11,000 円(坪)
-
蔵前酒井ビル
東京都台東区蔵前3-15-7
坪数:13.59 坪
坪単価:16,000 円(坪)
-
寿ビル
東京都台東区寿4-16-6
坪数:15.08 坪
坪単価:8,621 円(坪)
-
浅草橋NKビル
東京都台東区浅草橋3-33-8
坪数:15.81 坪
坪単価:7,717 円(坪)
-
大森ビル
東京都台東区浅草橋2-7-9
坪数:13.60 坪
坪単価:10,000 円(坪)
-
藤ビル
東京都台東区松が谷4-24-3
坪数:15.01 坪
坪単価:7,268 円(坪)