三井二号館(物件No:91184193)
三井二号館は、中央区日本橋室町にある貸事務所物件です。最寄り駅は、東京メトロ半蔵門線、東京メトロ銀座線の三越前駅、東京メトロ東西線、都営浅草線の日本橋駅、JR総武線の新日本橋駅、JR線の神田駅です。1985年竣工で、基準階が400.55坪の賃貸オフィスビルです。新耐震基準に適合しており、駐車場が利用可能な、アクセスの良い中央区日本橋室町の貸事務所です。
| 階 | 面積 | 賃料 | 共益費 | 敷金 | 入居日 | お問合せ | お気に入り | |
|---|---|---|---|---|---|---|---|---|
|
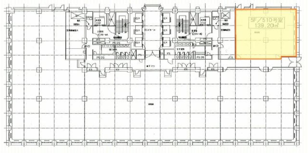
5F
(510区画) |
42.10 坪 139.17 ㎡ |
※現在空室情報はございません |
※現在空室情報は 確認する |
|||||
-
物件情報
-
設備情報
- トイレ
- -
- 床
- フリーアクセス
- 空調
- -
- セキュリティ
- -
- 駐車場
- 有
- 会議室
- -
- エレベーター
- -
- 天井高
- 2560mm
-
間取り図
-
近隣相場情報
日本橋室町2丁目(40~50坪)の相場
16412 円 (坪)
※ビルサク調べ
周辺施設情報
| コンビニ |
ファミリーマート/日本橋三井タワー店/71m(徒歩1分) ファミリーマート/ファミマ日本橋室町三井タワー店/71m(徒歩1分) |
|---|---|
| 郵便局/銀行 |
三井住友銀行/日本橋支店/[営業時間] [窓口]平日 9:00~15:00 土曜 - 日曜 - /140m(徒歩2分) 郵便局/日本橋室町三井タワー内/[駐車場]なし /190m(徒歩2分) |
| 飲食店 |
ピッツァバー ON 38TH/11時30分~15時30分 17時30分~23時30分/170m(徒歩2分) 日本橋だし場 はなれ/11時00分~22時00分/150m(徒歩2分) |
| カフェ |
タリーズ/日本橋YUITOアネックス店/[営業時間]平日:7:00~22:00 土:8:00~20:00 日祝:9:00~20:00/160m(徒歩2分) デリフランス/日本橋/[営業時間]7:00~20:00 土 8:00~20:00 日祝 10:00~18:00/250m(徒歩3分) |
| コインパーキング |
三井のリパーク/日本橋室町1丁目第5 [料金] [料金]全日 08:00~20:00 10分/300円 全日 20:00~08:00 10分/300円 [最大料金] 最大料金 【全日】8:00~20:00以内 最大料金2500円(4番のみ) [台数]4 タイムズ駐車場/日本橋室町第2 [料金] [全日]通常料金 / 8:00~22:00 15分 440円 22:00~8:00 60分 110円 [最大料金] [全日]駐車後5時間 最大料金3520円 [台数]7 |
周辺地図
三井二号館は、中央区日本橋室町にある貸事務所物件です。最寄り駅は、東京メトロ半蔵門線、東京メトロ銀座線の三越前駅、東京メトロ東西線、都営浅草線の日本橋駅、JR総武線の新日本橋駅、JR線の神田駅です。1985年竣工で、基準階が400.55坪の賃貸オフィスビルです。新耐震基準に適合しており、駐車場が利用可能な、アクセスの良い中央区日本橋室町の貸事務所です。
全フロア情報
更新日:2017年6月27日
| 階 | 面積 | 賃料 | 共益費 | 敷金 | 入居日 | お問合せ | お気に入り | |
|---|---|---|---|---|---|---|---|---|
| 4F |
76.10 坪 251.57 ㎡ |
※現在空室情報はございません |
※現在空室情報は 確認する |
|||||
|
5F
(510区画) |
42.10 坪 139.17 ㎡ |
※現在空室情報はございません |
※現在空室情報は 確認する |
|||||
お問い合わせ
似た条件の物件はこちら
-
キムラヤビル
東京都中央区京橋2-5-22
坪数:40.18 坪
坪単価:19,300 円(坪)
-
仁大ビル
東京都中央区京橋2-8-21
坪数:42.03 坪
坪単価:32,000 円(坪)
-
金葉ビル
東京都中央区京橋1-6-13
坪数:43.25 坪
坪単価:20,000 円(坪)
-
サカキビル
東京都中央区京橋2-12-12
坪数:40.5 坪
坪単価:15,500 円(坪)
-
八重洲山川ビル
東京都中央区日本橋3-3-3
坪数:45.7 坪
坪単価:22,000 円(坪)
-
東和八重洲ビル
東京都中央区日本橋3-4-16
坪数:36.73 坪
坪単価:44,000 円(坪)
-
新槇町ビル
東京都中央区八重洲1-8-17
坪数:37 坪
坪単価:55,000 円(坪)
-
斉藤ビル
東京都中央区京橋3-14-6
坪数:49.82 坪
坪単価:15,000 円(坪)
-
朝日ビルヂング
東京都中央区日本橋3-12-2
坪数:35.39 坪
坪単価:19,500 円(坪)
-
藤木ビル
東京都中央区京橋2-6-6
坪数:36.5 坪
坪単価:20,000 円(坪)