芝大門116ビル(物件No:91182184)
芝大門116ビルは港区芝大門にある地下1階、地上9階建ての賃貸事務所です。最寄駅は都営大江戸線の大門駅から徒歩1分、都営浅草線の大門駅から徒歩1分、JR線の浜松町駅から徒歩3分、東京モノレールの浜松町駅から徒歩33分です。1994年4月竣工の基準階面積が105.8坪の鉄骨鉄筋コンクリート造です。設備としては、エレベーターが2基、駐車場もあります。セキュリティは機械警備です。トイレは室外男女別です。空調は個別空調です。床仕様はフリーアクセスです。天高は2500mmです。耐震設計となっている、複数路線利用可能なアクセスの良い港区芝大門の賃貸オフィスです。
-
物件情報
-
設備情報
- トイレ
- 室外男女別
- 床
- フリーアクセス
- 空調
- 個別空調
- セキュリティ
- 有
- 駐車場
- 有
- 会議室
- -
- エレベーター
- 2基
- 天井高
- 2500mm
-
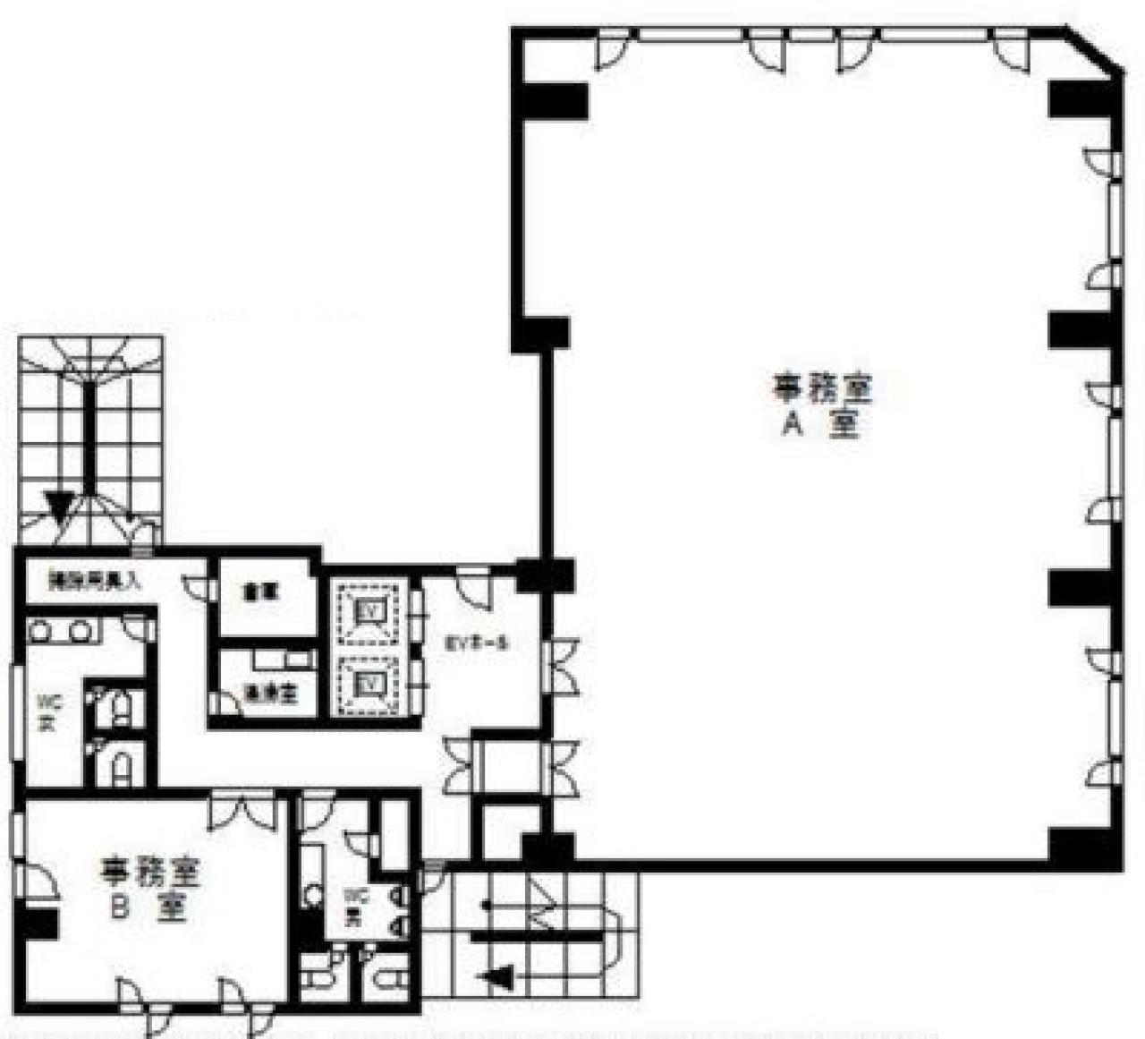
間取り図
-
近隣相場情報
芝大門1丁目(100坪以上)の相場
30500 円 (坪)
※ビルサク調べ
周辺施設情報
| コンビニ |
ローソン/ナチュラル 芝大門一丁目/80m(徒歩1分) ローソン/文化放送メディアプラス/350m(徒歩5分) |
|---|---|
| 郵便局/銀行 |
郵便局/ATM デイリーヤマザキ浜松町クレアタワー店内出張所/[ATM]平日7:00~23:00、土曜7:00~23:00、日曜7:00~23:00/200m(徒歩3分) ビューアルッテ/JR浜松町駅北口券売機前(お引出し・残高照会のみ)/[営業時間]全日/4:35~25:10※毎月第二土曜日23:00~翌日8:00はご利用になれません。※駅や店舗の営業時間により、ATM営業時間が変更となる場合があります/350m(徒歩5分) |
| 飲食店 |
鉄板居酒屋 ひょいっと/11時30分~14時30分、17時30分~23時30分/100m(徒歩1分) 和酒と相模湾鮮魚 浜松町 わ かく田/11時30分~14時00分、17時00分~23時00分/74m(徒歩1分) |
| カフェ |
TROIS/7時00分~20時00分/100m(徒歩1分) 久緒羅珈琲/11時00分~19時00分/280m(徒歩3分) |
| コインパーキング |
三井のリパーク/芝大門2丁目第4 [料金] 全日 08:00~20:00 20分/300円 全日 20:00~08:00 60分/100円 [最大料金] 【全日】最大料金入庫後6時間以内3200円 [台数]2 名鉄協商パーキング/浜松町 [料金] 全日 20分 (00:00 - 24:00) 400円 [最大料金] 土日祝 (08:00 - 20:00) 1,700円 全日 (20:00 - 08:00) 500円 [台数]4台 |
周辺地図
芝大門116ビルは港区芝大門にある地下1階、地上9階建ての賃貸事務所です。最寄駅は都営大江戸線の大門駅から徒歩1分、都営浅草線の大門駅から徒歩1分、JR線の浜松町駅から徒歩3分、東京モノレールの浜松町駅から徒歩33分です。1994年4月竣工の基準階面積が105.8坪の鉄骨鉄筋コンクリート造です。設備としては、エレベーターが2基、駐車場もあります。セキュリティは機械警備です。トイレは室外男女別です。空調は個別空調です。床仕様はフリーアクセスです。天高は2500mmです。耐震設計となっている、複数路線利用可能なアクセスの良い港区芝大門の賃貸オフィスです。
全フロア情報
更新日:2021年11月15日
| 階 | 面積 | 賃料 | 共益費 | 敷金 | 入居日 | お問合せ | お気に入り | |
|---|---|---|---|---|---|---|---|---|
| 1F |
12.61 坪 41.69 ㎡ |
※現在空室情報はございません |
※現在空室情報は 確認する |
|||||
| 1-2F |
115.05 坪 380.33 ㎡ |
※現在空室情報はございません |
※現在空室情報は 確認する |
|||||
|
1-2F
(1区画) |
30.43 坪 100.59 ㎡ |
※現在空室情報はございません |
※現在空室情報は 確認する |
|||||
|
2F
(B区画) |
84.62 坪 279.74 ㎡ |
※現在空室情報はございません |
※現在空室情報は 確認する |
|||||
| 3F |
94.62 坪 312.79 ㎡ |
※現在空室情報はございません |
※現在空室情報は 確認する |
|||||
| 4F |
96.31 坪 318.38 ㎡ |
※現在空室情報はございません |
※現在空室情報は 確認する |
|||||
| 5F |
96.31 坪 318.38 ㎡ |
※現在空室情報はございません |
※現在空室情報は 確認する |
|||||
| 7F |
117.13 坪 387.21 ㎡ |
※現在空室情報はございません |
※現在空室情報は 確認する |
|||||
| 8F |
117.13 坪 387.21 ㎡ |
※現在空室情報はございません |
※現在空室情報は 確認する |
|||||
お問い合わせ
似た条件の物件はこちら
-
芝浦スクエア
東京都港区芝浦4-9-25
坪数:138.31 坪
坪単価:15,000 円(坪)
-
THE PORTAL MITA
東京都港区三田3-2-8
坪数:104.69 坪
坪単価:30,000 円(坪)
-
グランファースト芝大門
東京都港区芝大門1-3-4
坪数:110.55 坪
坪単価:30,000 円(坪)
-
富士ビル
東京都港区芝大門2-11-1
坪数:92.5 坪
坪単価:11,750 円(坪)
-
機械振興会館
東京都港区芝公園3-5-8
坪数:112.03 坪
坪単価:15,000 円(坪)
-
大東芝浦ビル
東京都港区海岸3-7-19
坪数:113 坪
坪単価:9,500 円(坪)
-
+SHIFT MITA
東京都港区芝5-3-2
坪数:145.28 坪
坪単価:29,000 円(坪)
-
三田三好ビル
東京都港区三田3-9-7
坪数:87.31 坪
坪単価:17,000 円(坪)
-
五色橋ビル
東京都港区海岸3-5-13
坪数:98.68 坪
坪単価:12,000 円(坪)