新大宗ビル3号館(物件No:91087097)
新大宗ビル3号館は、渋谷区道玄坂にある貸事務所物件です。最寄駅は各線渋谷駅です。1975年竣工で、基準階が100.00坪の賃貸オフィスビルです。床はPタイルとなっています。トイレは室外男女別で、空調は個別空調です。エレベーターは2基あり、セキュリティは有人警備です。駐車場が利用可能です。渋谷駅の近くで数多くの店舗が立ち並び、交通アクセスもよく利便性の高い渋谷区道玄坂の貸事務所です。
| 階 | 面積 | 賃料 | 共益費 | 敷金 | 入居日 | お問合せ | お気に入り | |
|---|---|---|---|---|---|---|---|---|
|
4F
(431区画) |
42 坪 138.84 ㎡ |
※現在空室情報はございません |
※現在空室情報は 確認する |
|||||
-
物件情報
-
設備情報
- トイレ
- 室外男女別
- 床
- -
- 空調
- 個別空調
- セキュリティ
- -
- 駐車場
- 有
- 会議室
- -
- エレベーター
- 2基
- 天井高
- -
-
間取り図
-
近隣相場情報
道玄坂2丁目(40~50坪)の相場
32333 円 (坪)
※ビルサク調べ
周辺施設情報
| コンビニ |
セブンイレブン/渋谷道玄坂中央/92m(徒歩1分) ミニストップ/道玄坂2丁目店/74m(徒歩1分) |
|---|---|
| 郵便局/銀行 |
スルガ銀行/渋谷支店/[営業時間]平日 09:00-15:00 土曜日 ー 日曜・祝日 ー [ATM]平日 9:00-18:00 土曜日 ー 日曜・祝日 ー/200m(徒歩3分) みずほ銀行/ATM 京王渋谷駅中央口出張所/[営業時間]ATM 平日 /Monday - Friday 5:00~24:00 土曜日/Saturday 5:00~22:00 日曜日/Sunday 8:00~21:00 祝日・振替休日 /Public Holidays 曜日に準ずる 備考 *月曜日の5:00~7:00はご利用いただけません。 通/200m(徒歩2分) |
| 飲食店 |
ハヌリ渋谷店/11時30分~0時00分/48m(徒歩1分) SHANTi 渋谷店/11時30分~22時00分/110m(徒歩2分) |
| カフェ |
エクセルシオール/カフェ バリスタ 渋谷マークシティ店/[営業時間]平 日:07:00 - 23:00 土曜日:07:00 - 23:00 日 祝:07:00 - 23:00 [休業日]なし [備考]総席数:118 禁煙席:98 喫煙席:20/16m(徒歩1分) ホレホレ カフェ&ダイナー 渋谷店/11時30分~23時00分/250m(徒歩3分) |
| コインパーキング |
三井のリパーク/道玄坂2丁目第4 [料金] 全日 00:00~24:00 20分/400円 [台数]17 GSパーク/プレミア道玄坂ビル [料金] 【月~土】 時間割料金 08:30~22:30 20分 300円 【日祝】 時間割料金 09:00~22:00 20分 300円 [最大料金] 【月~土】 平面 最大料金 時間帯内最大 08:30~22:30 3,000円、機械式 最大料金 時間帯内最大 08:30~22:30 1,500円 【日祝】 平面 最大料金 時間帯内最大 09:00~22:00 3,000円、機械式 最大料金 時間帯内最大 09:00~22:00 1,500円 [台数]16台 |
周辺地図
新大宗ビル3号館は、渋谷区道玄坂にある貸事務所物件です。最寄駅は各線渋谷駅です。1975年竣工で、基準階が100.00坪の賃貸オフィスビルです。床はPタイルとなっています。トイレは室外男女別で、空調は個別空調です。エレベーターは2基あり、セキュリティは有人警備です。駐車場が利用可能です。渋谷駅の近くで数多くの店舗が立ち並び、交通アクセスもよく利便性の高い渋谷区道玄坂の貸事務所です。
全フロア情報
更新日:2022年9月9日
| 階 | 面積 | 賃料 | 共益費 | 敷金 | 入居日 | お問合せ | お気に入り | |
|---|---|---|---|---|---|---|---|---|
|
B1F
(015区画) |
60 坪 198.35 ㎡ |
※現在空室情報はございません |
※現在空室情報は 確認する |
|||||
| 1F |
45.00 坪 148.76 ㎡ |
※現在空室情報はございません |
※現在空室情報は 確認する |
|||||
| 2F |
15.30 坪 50.58 ㎡ |
※現在空室情報はございません |
※現在空室情報は 確認する |
|||||
| 3F |
31.00 坪 102.48 ㎡ |
※現在空室情報はございません |
※現在空室情報は 確認する |
|||||
|
3F
(337区画) |
16.00 坪 52.89 ㎡ |
※現在空室情報はございません |
※現在空室情報は 確認する |
|||||
|
4F
(1区画) |
19.70 坪 65.12 ㎡ |
※現在空室情報はございません |
※現在空室情報は 確認する |
|||||
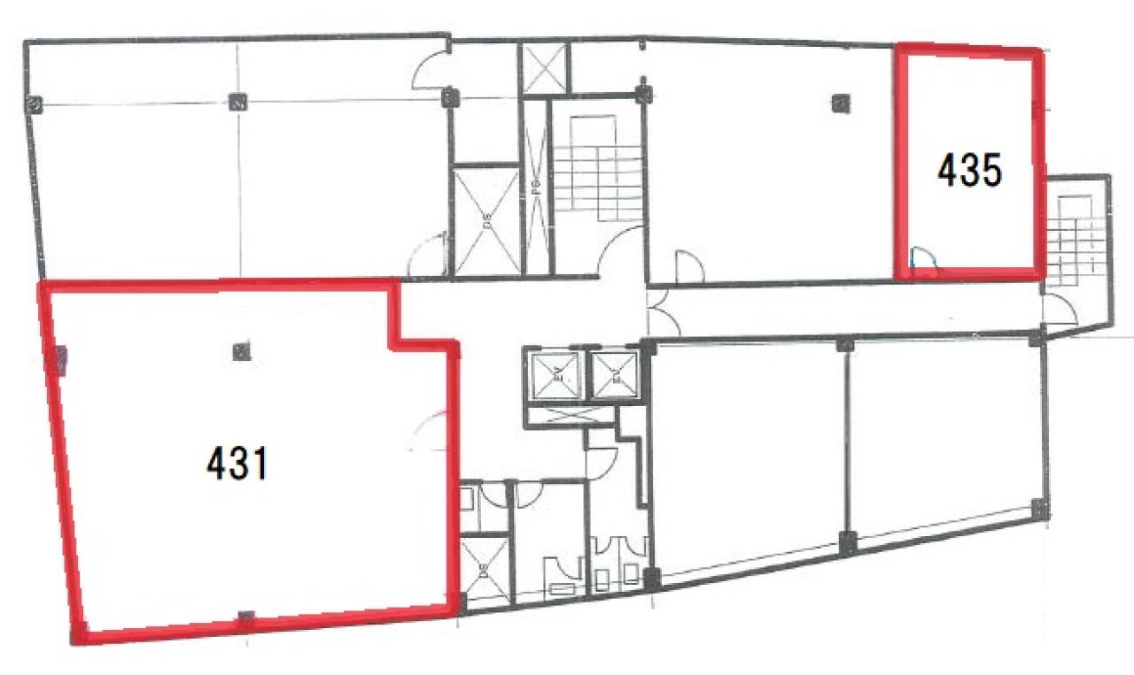
|
4F
(431区画) |
42 坪 138.84 ㎡ |
※現在空室情報はございません |
※現在空室情報は 確認する |
|||||
|
4F
(435区画) |
11.00 坪 36.36 ㎡ |
※現在空室情報はございません |
※現在空室情報は 確認する |
|||||
|
4F
(436区画) |
14.80 坪 48.93 ㎡ |
※現在空室情報はございません |
※現在空室情報は 確認する |
|||||
|
5F
(2区画) |
29.80 坪 98.51 ㎡ |
※現在空室情報はございません |
※現在空室情報は 確認する |
|||||
|
5F
(533区画) |
31.00 坪 102.48 ㎡ |
※現在空室情報はございません |
※現在空室情報は 確認する |
|||||
|
6F
(632区画) |
29.80 坪 98.51 ㎡ |
※現在空室情報はございません |
※現在空室情報は 確認する |
|||||
|
6F
(633区画) |
31.00 坪 102.48 ㎡ |
※現在空室情報はございません |
※現在空室情報は 確認する |
|||||
|
6F
(634区画) |
30.60 坪 101.16 ㎡ |
※現在空室情報はございません |
※現在空室情報は 確認する |
|||||
|
6F
(635区画) |
37.70 坪 124.63 ㎡ |
※現在空室情報はございません |
※現在空室情報は 確認する |
|||||
|
7F
(2区画) |
14.80 坪 48.93 ㎡ |
※現在空室情報はございません |
※現在空室情報は 確認する |
|||||
|
7F
(731区画) |
31 坪 102.48 ㎡ |
※現在空室情報はございません |
※現在空室情報は 確認する |
|||||
|
7F
(732区画) |
46.00 坪 152.07 ㎡ |
※現在空室情報はございません |
※現在空室情報は 確認する |
|||||
|
7F
(734区画) |
33.00 坪 109.10 ㎡ |
※現在空室情報はございません |
※現在空室情報は 確認する |
|||||
| 9F |
29.80 坪 98.51 ㎡ |
※現在空室情報はございません |
※現在空室情報は 確認する |
|||||
|
9F
(930区画) |
31.00 坪 102.48 ㎡ |
※現在空室情報はございません |
※現在空室情報は 確認する |
|||||
|
11F
(1131区画) |
16.60 坪 54.88 ㎡ |
※現在空室情報はございません |
※現在空室情報は 確認する |
|||||
|
11F
(1133区画) |
7.70 坪 25.45 ㎡ |
※現在空室情報はございません |
※現在空室情報は 確認する |
|||||
|
11F
(1134区画) |
17.30 坪 57.19 ㎡ |
※現在空室情報はございません |
※現在空室情報は 確認する |
|||||
| 12F |
32.00 坪 105.78 ㎡ |
※現在空室情報はございません |
※現在空室情報は 確認する |
|||||
お問い合わせ
似た条件の物件はこちら
-
冨貴ビル
東京都渋谷区神宮前6-9-1
坪数:47.25 坪
坪単価:27,937 円(坪)
-
清澤ビル
東京都渋谷区渋谷3-17-2
坪数:38.11 坪
坪単価:25,500 円(坪)
-
倉島渋谷ビル
東京都渋谷区渋谷2-3-8
坪数:49.26 坪
坪単価:18,000 円(坪)
-
モドマルシェ渋谷桜丘
東京都渋谷区桜丘町10-4
坪数:33.71 坪
坪単価:18,000 円(坪)
-
桑原ビル
東京都渋谷区神宮前3-24-3
坪数:42.20 坪
坪単価:16,000 円(坪)
-
丸栄ビル
東京都渋谷区神南1-9-7
坪数:32.83 坪
坪単価:16,601 円(坪)
-
第27SYビル
東京都渋谷区渋谷1-8-7
坪数:34 坪
坪単価:25,000 円(坪)
-
ABC-MART公園通りビル
東京都渋谷区神南1-20-9
坪数:39.22 坪
坪単価:33,000 円(坪)
-
WIND EBISU Ⅲ BLDG
東京都渋谷区東2-17-10
坪数:34.77 坪
坪単価:22,000 円(坪)
-
グリーン・ファンタジアビル
東京都渋谷区神宮前1-11-11
坪数:36.11 坪
坪単価:13,847 円(坪)