江戸ビル(物件No:91085123)
江戸ビルは中央区日本橋本町にある2地上9階建ての賃貸事務所です。最寄駅は東京メトロ銀座線の三越前駅から徒歩3分、JR総武線快速の新日本橋駅から徒歩4分、東京メトロ半蔵門線の三越前駅から徒歩3分です。1990年8月竣工の基準階面積が113.89坪の鉄骨造です。設備としてはエレベーターが2基あり、機械警備もあります。トイレは男女別です。空調は個別空調です。床仕様はフリーアクセスです。耐震性は新耐震となっている、複数路線利用可能な、アクセスの良い中央区日本橋本町の賃貸オフィスです。
| 階 | 面積 | 賃料 | 共益費 | 敷金 | 入居日 | お問合せ | お気に入り |
|---|---|---|---|---|---|---|---|
|
5F
(503区画) |
39.81 坪 131.6 ㎡ |
716,580 円 18,000 円(坪) |
込 |
7,165,800 円 10 ヶ月 |
2026/04/01 |
|
|
| 階 | 面積 | 賃料 | 共益費 | 敷金 | 入居日 | お問合せ | お気に入り |
|---|---|---|---|---|---|---|---|
|
5F
(503区画) |
39.81 坪 131.6 ㎡ |
716,580 円 18,000 円(坪) |
込 |
7,165,800 円 10 ヶ月 |
2026/04/01 |
|
|
-
物件情報
-
設備情報
- トイレ
- 室外男女別
- 床
- フリーアクセス
- 空調
- 個別空調
- セキュリティ
- 有
- 駐車場
- 無
- 会議室
- -
- エレベーター
- 2基
- 天井高
- -
-
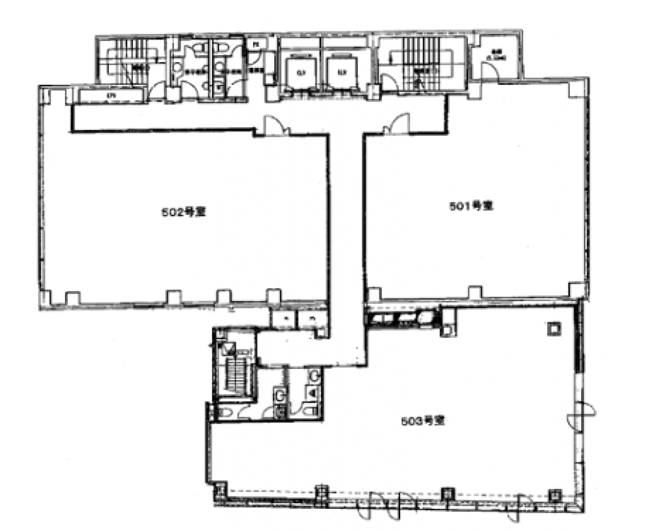
間取り図
-
近隣相場情報
日本橋本町2丁目(30~40坪)の相場
17234 円 (坪)
※ビルサク調べ
周辺施設情報
| コンビニ |
ローソン/日本橋本町二丁目/1m(徒歩1分) デイリーヤマザキ/日本橋室町店/180m(徒歩2分) |
|---|---|
| 郵便局/銀行 |
肥後銀行/東京支店/[窓口]平日 9:00~15:00/120m(徒歩2分) ローソン銀行/日本橋本町二丁目共同出張所/[営業時間]24時間 /1m(徒歩1分) |
| 飲食店 |
まんてん鮨コレド室町店/11時00分~14時00分 17時00分~21時30分/85m(徒歩1分) サクレフルール 日本橋/11時30分~15時00分 17時30分~23時00分/64m(徒歩1分) |
| カフェ |
ゴンチャ/デリバリー対応店 日本橋武田 グローバル本社 ビル店/[営業時間]平日:9:00~20:00 土日祝:10:00~20:00/46m(徒歩1分) ドトール/日本橋本町店/[営業時間]平日 7:00~19:30 土曜 10:30~18:30 日祝 -/32m(徒歩1分) |
| コインパーキング |
パークジャパン/日本橋ラングスパーク [料金] [料金]8:00~22:00 300円/10分 22:00~8:00 100円/60分 [最大料金] 最大料金6時間3,000円 [台数]1台 三井のリパーク/日本橋本町2丁目第4 [料金] [料金]平日 08:00~22:00 10分/300円 平日 22:00~08:00 60分/100円 [料金]日祝 08:00~22:00 15分/400円 日祝 22:00~08:00 60分/100円 [台数]5 |
周辺地図
江戸ビルは中央区日本橋本町にある2地上9階建ての賃貸事務所です。最寄駅は東京メトロ銀座線の三越前駅から徒歩3分、JR総武線快速の新日本橋駅から徒歩4分、東京メトロ半蔵門線の三越前駅から徒歩3分です。1990年8月竣工の基準階面積が113.89坪の鉄骨造です。設備としてはエレベーターが2基あり、機械警備もあります。トイレは男女別です。空調は個別空調です。床仕様はフリーアクセスです。耐震性は新耐震となっている、複数路線利用可能な、アクセスの良い中央区日本橋本町の賃貸オフィスです。
全フロア情報
更新日:2025年10月9日
| 階 | 面積 | 賃料 | 共益費 | 敷金 | 入居日 | お問合せ | お気に入り | |
|---|---|---|---|---|---|---|---|---|
|
2F
(201区画) |
26.53 坪 87.7 ㎡ |
※現在空室情報はございません |
※現在空室情報は 確認する |
|||||
|
2F
(204区画) |
41.02 坪 135.6 ㎡ |
※現在空室情報はございません |
※現在空室情報は 確認する |
|||||
|
3F
(301区画) |
34 坪 112.4 ㎡ |
※現在空室情報はございません |
※現在空室情報は 確認する |
|||||
|
3F
(302区画) |
11.49 坪 37.98 ㎡ |
※現在空室情報はございません |
※現在空室情報は 確認する |
|||||
|
5F
(503区画) |
39.81 坪 131.6 ㎡ |
716,580 円 18,000 円(坪) |
込 |
7,165,800 円 10 ヶ月 |
2026/04/01 |
|
|
|
|
9F
(901区画) |
57.86 坪 191.27 ㎡ |
※現在空室情報はございません |
※現在空室情報は 確認する |
|||||
| 新館2F |
41.02 坪 135.6 ㎡ |
※現在空室情報はございません |
※現在空室情報は 確認する |
|||||
お問い合わせ
似た条件の物件はこちら
-
京橋エー・エスビルディング
東京都中央区京橋2-9-9
坪数:29.25 坪
坪単価:15,000 円(坪)
-
日本橋グレイスビル
東京都中央区日本橋2-12-9
坪数:31.2 坪
坪単価:17,000 円(坪)
-
キムラヤビル
東京都中央区京橋2-5-22
坪数:40.18 坪
坪単価:19,300 円(坪)
-
仁大ビル
東京都中央区京橋2-8-21
坪数:42.03 坪
坪単価:32,000 円(坪)
-
山三ビル
東京都中央区日本橋2-6-13
坪数:29.58 坪
坪単価:11,500 円(坪)
-
金葉ビル
東京都中央区京橋1-6-13
坪数:43.25 坪
坪単価:20,000 円(坪)
-
サカキビル
東京都中央区京橋2-12-12
坪数:40.5 坪
坪単価:15,500 円(坪)
-
八重洲山川ビル
東京都中央区日本橋3-3-3
坪数:45.7 坪
坪単価:22,000 円(坪)
-
東和八重洲ビル
東京都中央区日本橋3-4-16
坪数:36.73 坪
坪単価:44,000 円(坪)
-
新槇町ビル
東京都中央区八重洲1-8-17
坪数:37 坪
坪単価:55,000 円(坪)