VICOLO南青山(物件No:91084175)
VICOLO南青山は港区南青山にある地上3階建ての賃貸事務所です。最寄駅は東京メトロ銀座線の表参道駅から徒歩6分、東京メトロ半蔵門線の表参道駅から徒歩6分、東京メトロ千代田線の表参道駅から徒歩6分です。1992年竣工の鉄筋コンクリート造です。設備としては、駐車場があります。空調は個別空調です。耐震設計となっている、複数路線利用可能なアクセスの良い港区南青山の賃貸オフィスです。
-
物件情報
-
設備情報
- トイレ
- 室内男女共用
- 床
- -
- 空調
- 個別空調
- セキュリティ
- -
- 駐車場
- 有
- 会議室
- -
- エレベーター
- -
- 天井高
- -
-
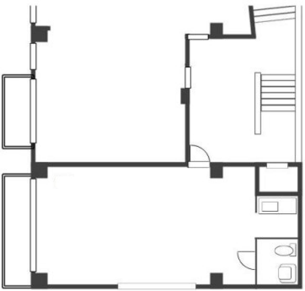
間取り図
-
近隣相場情報
南青山4丁目(20坪以下)の相場
調査中
周辺施設情報
| コンビニ |
ファミリーマート/西麻布霞町店/750m(徒歩9分) セブンイレブン/港区南青山3丁目/220m(徒歩3分) |
|---|---|
| 郵便局/銀行 |
イーネット/ファミリーマート南青山四丁目/[営業時間]0:00~24:00/120m(徒歩2分) 三井住友銀行/ATM 青山共同出張所/[営業時間] [ATM]平日 0:00~24:00 土曜 0:00~23:50 日曜 4:00~21:00/850m(徒歩12分) |
| 飲食店 |
とりよし 青山店/11時30分~14時30分、17時00分~4時30分/500m(徒歩6分) いち太/17時30分~23時00分/200m(徒歩3分) |
| カフェ |
Cafeteria Maravilla/13時00分~17時00分/450m(徒歩5分) 風花/11時30分~20時00分/260m(徒歩3分) |
| コインパーキング |
NPD/FROM 1st駐車場 [料金] 通常 400円/20分 平日 2500円/300分 土日 2500円/300分 [最大料金] 宿泊料金 1000円 備考:当日料金3500円(営業時間内) タイムズ駐車場/南青山4丁目第2 [料金] [全日]07:00-19:00 15分 300円 [全日]19:00-07:00 60分 100円 [最大料金] [全日]駐車後6時間 最大料金3500円 [台数]6 |
周辺地図
VICOLO南青山は港区南青山にある地上3階建ての賃貸事務所です。最寄駅は東京メトロ銀座線の表参道駅から徒歩6分、東京メトロ半蔵門線の表参道駅から徒歩6分、東京メトロ千代田線の表参道駅から徒歩6分です。1992年竣工の鉄筋コンクリート造です。設備としては、駐車場があります。空調は個別空調です。耐震設計となっている、複数路線利用可能なアクセスの良い港区南青山の賃貸オフィスです。
全フロア情報
更新日:2025年10月27日
| 階 | 面積 | 賃料 | 共益費 | 敷金 | 入居日 | お問合せ | お気に入り | |
|---|---|---|---|---|---|---|---|---|
| 1F |
16.68 坪 55.14 ㎡ |
※現在空室情報はございません |
※現在空室情報は 確認する |
|||||
| 2F |
15.95 坪 52.73 ㎡ |
※現在空室情報はございません |
※現在空室情報は 確認する |
|||||
お問い合わせ
似た条件の物件はこちら
-
メゾン青山
東京都港区北青山2-7-26
坪数:18.75 坪
坪単価:20,267 円(坪)
-
たつむら青山マンション(青南吉川興産ビル)
東京都港区南青山5-4-35
坪数:11.4 坪
坪単価:19,298 円(坪)
-
青山アレー
東京都港区南青山6-4-6
坪数:16.2 坪
坪単価:26,543 円(坪)
-
南青山ユニハイツ
東京都港区南青山6-12-3
坪数:18.31 坪
坪単価:18,569 円(坪)
-
ティアック青山
東京都港区北青山3-10-21
坪数:16.52 坪
坪単価:22,397 円(坪)
-
リーラ乃木坂
東京都港区南青山1-15-18
坪数:17.2 坪
坪単価:18,000 円(坪)
-
クレアトゥール南青山
東京都港区南青山3-8-7
坪数:13.59 坪
坪単価:16,924 円(坪)
-
南青山セピアコート
東京都港区南青山6-8-3
坪数:18.09 坪
坪単価:21,006 円(坪)
-
シグマ南青山ビル
東京都港区南青山2-11-14
坪数:14.16 坪
坪単価:40,000 円(坪)
-
美松ビル
東京都港区南青山1-4-17
坪数:18.91 坪
坪単価:20,624 円(坪)