西池袋第一生命ビル(物件No:91082138)
西池袋第一生命ビルは豊島区池袋にある地上10階建ての賃貸事務所です。最寄駅はJR線の池袋駅から徒歩4分、東京メトロ副都心線の池袋駅から徒歩2分です。1991年9月竣工の基準階面積が36.42坪の鉄骨鉄筋コンクリート造です。設備としては、エレベーターが1基あります。セキュリティは機械警備です。トイレは男女別です。空調は個別空調です。床仕様は2WAYです。天高は2500mmです。耐震設計となっている、最寄駅から近くて便利な豊島区池袋の賃貸オフィスです。
- 
                    
物件情報
 - 
                        
設備情報
- トイレ
 - 男女別
 - 床
 - 2WAY
 - 空調
 - 個別空調
 - セキュリティ
 - -
 - 駐車場
 - -
 - 会議室
 - -
 - エレベーター
 - -
 - 天井高
 - 2500mm
 
 - 
                        
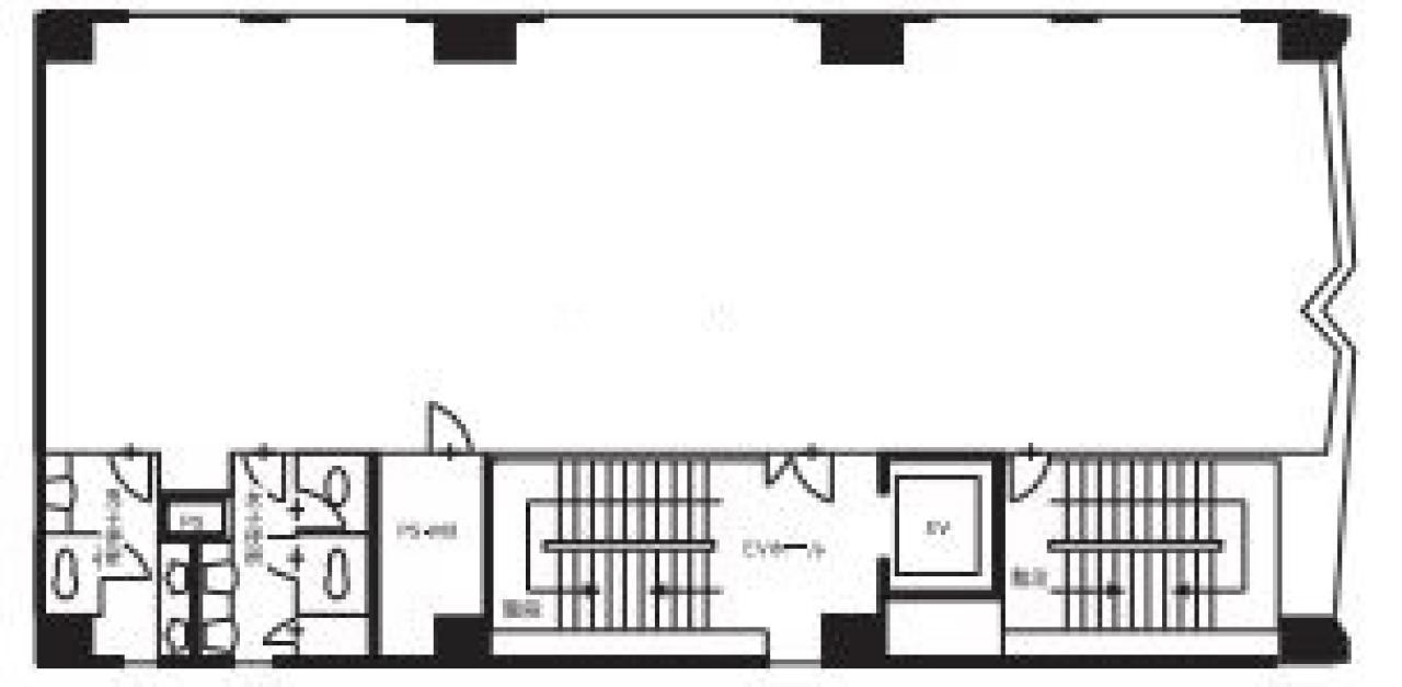
間取り図
 - 
                    
近隣相場情報
池袋2丁目(30~40坪)の相場
11250 円 (坪)
※ビルサク調べ 
周辺施設情報
| コンビニ | 
                                                                                                                     ローソン/池袋二丁目/200m(徒歩2分) セブンイレブン/池袋西一番街中央通り/250m(徒歩4分)  | 
                
|---|---|
| 郵便局/銀行 | 
                                                                                                                     西京信用金庫/池袋支店/350m(徒歩5分) セブン銀行/東京メトロ 副都心線 池袋駅/[営業時間]5:00~24:00 [備考]1 台/400m(徒歩5分)  | 
                
| 飲食店 | 
                                                                                                                     オステリア サンテ/11時30分~14時30分、17時30分~22時00分/69m(徒歩1分) 焼肉 彩伽亭/17時00分~23時30分/150m(徒歩2分)  | 
                
| カフェ | 
                                                                                                                     星乃珈琲店/池袋東武ホープセンター店/[営業時間]8:00~22:00(LO 21:15)モーニング Open~11:00 ランチ(平日)11:00~14:00 [備考]禁煙/450m(徒歩6分) クリスピークリーム/エチカ池袋店/[営業時間]10:00~21:00/300m(徒歩4分)  | 
                
| コインパーキング | 
                                                                                     タイムズ/池袋第12 [料金] [月~土]通常料金 8:00~2:00 20分 440円 2:00~8:00 30分 110円 [日・祝]通常料金 8:00~2:00 20分 440円 2:00~8:00 30分 110円 [最大料金] [月~土]最大料金(繰り返し適用)- [日・祝]最大料金(繰り返し適用)当日1日最大料金2200円(24時迄) [台数]3台 NPC24H/池袋ロサ [料金] 全日 8:00~18:00 300円/15分 全日 18:00~8:00 200円/60分 [最大料金] 全日 区間最大 8:00~18:00/2400円 全日 区間最大 18:00~8:00/1400円 [台数]15台  | 
                
周辺地図
西池袋第一生命ビルは豊島区池袋にある地上10階建ての賃貸事務所です。最寄駅はJR線の池袋駅から徒歩4分、東京メトロ副都心線の池袋駅から徒歩2分です。1991年9月竣工の基準階面積が36.42坪の鉄骨鉄筋コンクリート造です。設備としては、エレベーターが1基あります。セキュリティは機械警備です。トイレは男女別です。空調は個別空調です。床仕様は2WAYです。天高は2500mmです。耐震設計となっている、最寄駅から近くて便利な豊島区池袋の賃貸オフィスです。
全フロア情報
更新日:2021年4月7日
| 階 | 面積 | 賃料 | 共益費 | 敷金 | 入居日 | お問合せ | お気に入り | |
|---|---|---|---|---|---|---|---|---|
| 1F | 
             26.09 坪 86.25 ㎡  | 
                    ※現在空室情報はございません | 
                 ※現在空室情報は 確認する  | 
            |||||
| 2F | 
             36.27 坪 119.90 ㎡  | 
                    ※現在空室情報はございません | 
                 ※現在空室情報は 確認する  | 
            |||||
| 3F | 
             36.42 坪 120.40 ㎡  | 
                    ※現在空室情報はございません | 
                 ※現在空室情報は 確認する  | 
            |||||
| 4F | 
             36.42 坪 120.40 ㎡  | 
                    ※現在空室情報はございません | 
                 ※現在空室情報は 確認する  | 
            |||||
| 5F | 
             36.42 坪 120.40 ㎡  | 
                    ※現在空室情報はございません | 
                 ※現在空室情報は 確認する  | 
            |||||
| 6F | 
             36.42 坪 120.40 ㎡  | 
                    ※現在空室情報はございません | 
                 ※現在空室情報は 確認する  | 
            |||||
| 7F | 
             36.42 坪 120.40 ㎡  | 
                    ※現在空室情報はございません | 
                 ※現在空室情報は 確認する  | 
            |||||
| 8F | 
             36.42 坪 120.40 ㎡  | 
                    ※現在空室情報はございません | 
                 ※現在空室情報は 確認する  | 
            |||||
| 9F | 
             36.42 坪 120.40 ㎡  | 
                    ※現在空室情報はございません | 
                 ※現在空室情報は 確認する  | 
            |||||
| 10F | 
             36.42 坪 120.40 ㎡  | 
                    ※現在空室情報はございません | 
                 ※現在空室情報は 確認する  | 
            |||||
お問い合わせ
似た条件の物件はこちら
- 
                    
                        
池袋MIBビル
東京都豊島区池袋2-68-9
坪数:43.12 坪
坪単価:10,436 円(坪)
 - 
                    
                        
サンポウ池袋ビル
東京都豊島区池袋4-32-8
坪数:41.87 坪
坪単価:13,000 円(坪)
 - 
                    
                        
いちご東池袋ビル
東京都豊島区東池袋1-34-5
坪数:27.97 坪
坪単価:19,000 円(坪)
 - 
                    
                        
いちご南池袋ビル
東京都豊島区南池袋2-27-17
坪数:41.32 坪
坪単価:21,500 円(坪)
 - 
                    
                        
三仲ビル
東京都豊島区西池袋1-15-8
坪数:30 坪
坪単価:25,000 円(坪)
 - 
                    
                        
コスモス26上池袋
東京都豊島区上池袋1-25-2
坪数:27.47 坪
坪単価:18,493 円(坪)
 - 
                    
                        
日興池袋ビル(旧 トウセン池袋ビル)
東京都豊島区池袋4-29-11
坪数:37.5 坪
坪単価:10,600 円(坪)
 - 
                    
                        
東都自動車ビルディング
東京都豊島区西池袋5-13-13
坪数:37.51 坪
坪単価:11,978 円(坪)
 - 
                    
                        
新東第一ビル
東京都豊島区西池袋1-16-1
坪数:36.48 坪
坪単価:22,994 円(坪)
 - 
                    
                        
第5アムスビル
東京都豊島区東池袋1-15-10
坪数:37.17 坪
坪単価:33,629 円(坪)