ニューリバー51ビル(物件No:91081136)
ニューリバー51ビルは新宿区新小川町にある地上9階建ての賃貸事務所です。最寄駅はJR中央・総武線の飯田橋駅から徒歩8分、都営大江戸線の飯田橋駅から徒歩8分、東京メトロ南北線の飯田橋駅から徒歩8分、東京メトロ東西線の飯田橋駅から徒歩8分、東京メトロ有楽町線の飯田橋駅から徒歩8分です。1986年竣工の基準階面積が47.58坪の鉄骨鉄筋コンクリート造です。設備としてはエレベーターが1基あり、機械警備もあります。トイレは男女別です。空調は個別空調です。床仕様はフリーアクセスです。耐震性は新耐震となっている、複数路線利用可能な新宿区新小川町の賃貸オフィスです。
-
物件情報
-
設備情報
- トイレ
- 室内男女別
- 床
- -
- 空調
- -
- セキュリティ
- 有
- 駐車場
- 有
- 会議室
- -
- エレベーター
- 1基
- 天井高
- -
-
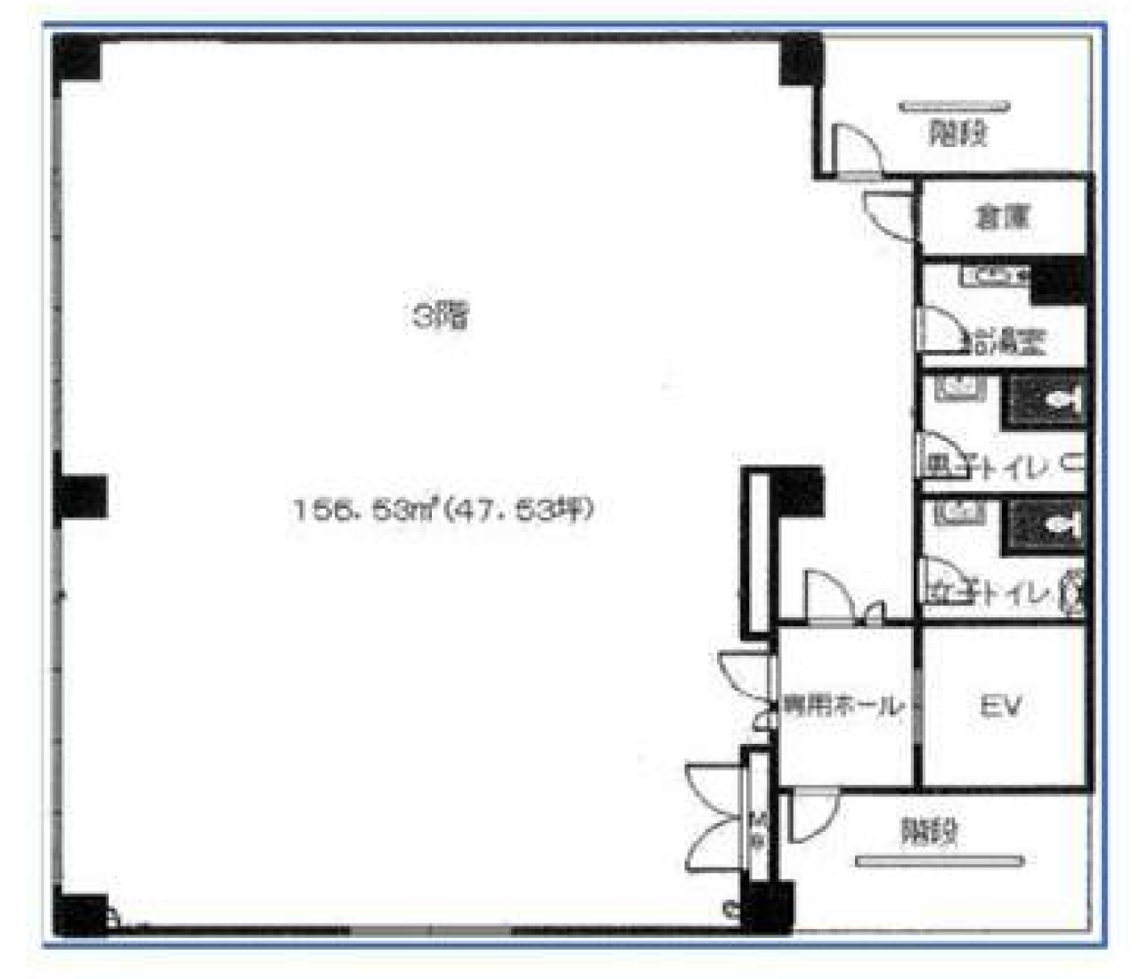
間取り図
-
近隣相場情報
新小川町5丁目(40~50坪)の相場
調査中
周辺施設情報
| コンビニ |
まいばすけっと/北新宿1丁目店/30m(徒歩1分) セブンイレブン/北新宿1丁目/110m(徒歩1分) |
|---|---|
| 郵便局/銀行 |
みずほ銀行/ATM まいばすけっと北新宿1丁目店出張所/[ATM]平日 8:00~23:00 土曜日 8:00~22:00 日曜日 8:00~23:00/30m(徒歩1分) セブン銀行/北新宿1丁目店/[営業時間]24時間営業/110m(徒歩1分) |
| 飲食店 |
大地の恵 吟造/11時30分~14時00分 17時00分~0時00分/84m(徒歩1分) タカマル鮮魚店 4号店 西新宿店/10時00分~23時00分/130m(徒歩2分) |
| カフェ |
サンマルクカフェ/住友不動産新宿グランドタワー店/[営業時間]7:00~21:00/700m(徒歩9分) ドトール/西武新宿北口店/■通常営業時間 平日 7:00~21:00 土曜 8:00~20:00 日祝 8:00~20:00/400m(徒歩5分) |
| コインパーキング |
東洋CARMAX/北新宿1丁目第2 [料金] (全日)0:00~24:00 ¥300 20分 [最大料金] (全日)入庫後12時間以内 ¥2000 [台数]4 ショウワパーク/北新宿1丁目 [料金] [基本料金]全日 0:00~24:00 20分/300円 [最大料金] 最大料金 (全日) 7:00~19:00 2300円 19:00~7:00 500円 (№8・9) 7:00~19:00 2000円 繰り返し○ [台数]17台 |
周辺地図
ニューリバー51ビルは新宿区新小川町にある地上9階建ての賃貸事務所です。最寄駅はJR中央・総武線の飯田橋駅から徒歩8分、都営大江戸線の飯田橋駅から徒歩8分、東京メトロ南北線の飯田橋駅から徒歩8分、東京メトロ東西線の飯田橋駅から徒歩8分、東京メトロ有楽町線の飯田橋駅から徒歩8分です。1986年竣工の基準階面積が47.58坪の鉄骨鉄筋コンクリート造です。設備としてはエレベーターが1基あり、機械警備もあります。トイレは男女別です。空調は個別空調です。床仕様はフリーアクセスです。耐震性は新耐震となっている、複数路線利用可能な新宿区新小川町の賃貸オフィスです。
全フロア情報
更新日:2025年10月24日
| 階 | 面積 | 賃料 | 共益費 | 敷金 | 入居日 | お問合せ | お気に入り | |
|---|---|---|---|---|---|---|---|---|
|
1F
(102区画) |
15.52 坪 51.31 ㎡ |
※現在空室情報はございません |
※現在空室情報は 確認する |
|||||
| 3F |
47.53 坪 156.53 ㎡ |
※現在空室情報はございません |
※現在空室情報は 確認する |
|||||
| 5F |
39.83 坪 131.67 ㎡ |
※現在空室情報はございません |
※現在空室情報は 確認する |
|||||
| 7F |
46.12 坪 152.46 ㎡ |
※現在空室情報はございません |
※現在空室情報は 確認する |
|||||
| 8F |
19.37 坪 64.03 ㎡ |
※現在空室情報はございません |
※現在空室情報は 確認する |
|||||
|
8F
(A区画) |
26.02 坪 86 ㎡ |
299,000 円 11,491 円(坪) |
39,000 円 1,499 円(坪) |
897,000 円 3 ヶ月 |
相談 |
|
|
|
お問い合わせ
似た条件の物件はこちら
-
赤城ビル
東京都新宿区築地町13
坪数:37.93 坪
坪単価:10,018 円(坪)
-
NOVEL WORK Ichigaya
東京都新宿区市谷本村町2-3
坪数:43.2 坪
坪単価:29,000 円(坪)
-
外濠スカイビルディング
東京都新宿区市谷本村町2-11
坪数:46.77 坪
坪単価:8,000 円(坪)
-
Primegate飯田橋(S&Sビル)
東京都新宿区新小川町6-36
坪数:53.06 坪
坪単価:18,000 円(坪)
-
第二山田ビル
東京都新宿区住吉町3-2
坪数:54.74 坪
坪単価:11,500 円(坪)
-
市谷東ビル
東京都新宿区市谷田町2-1-3
坪数:39.97 坪
坪単価:14,499 円(坪)
-
宝ビル
東京都新宿区水道町4-29
坪数:39.99 坪
坪単価:8,252 円(坪)
-
三田村ビル
東京都新宿区改代町26
坪数:41.41 坪
坪単価:8,452 円(坪)
-
市ヶ谷キャナルコート
東京都新宿区市谷本村町2-21
坪数:55.88 坪
坪単価:28,000 円(坪)
-
神楽坂升本ビル
東京都新宿区矢来町113-1
坪数:40.57 坪
坪単価:11,000 円(坪)
関連エリアから探す
- 赤城下町
- 市谷加賀町
- 揚場町
- 河田町
- 市谷砂土原町
- 市谷左内町
- 市谷田町
- 市谷台町
- 市谷長延寺町
- 市谷仲之町
- 市谷八幡町
- 市谷船河原町
- 市谷本村町
- 市谷薬王寺町
- 市谷柳町
- 市谷山伏町
- 岩戸町
- 榎町
- 改代町
- 神楽河岸
- 神楽坂
- 北町
- 北山伏町
- 細工町
- 下宮比町
- 白銀町
- 新小川町
- 水道町
- 箪笥町
- 築地町
- 筑土八幡町
- 津久戸町
- 天神町
- 富久町
- 中里町
- 中町
- 納戸町
- 西五軒町
- 二十騎町
- 払方町
- 東榎町
- 東五軒町
- 袋町
- 南町
- 南山伏町
- 山吹町
- 矢来町
- 横寺町
- 余丁町
- 住吉町