浅草SPビル(物件No:91080119)
浅草SPビル(旧:志村ビル)は、台東区西浅草にある貸事務所物件です。最寄り駅は、つくばエクスプレス、東京メトロ銀座線、都営浅草線の浅草駅、東京メトロ日比谷線の入谷駅、東京メトロ銀座線の田原町駅、稲荷町駅です。1992年竣工で、基準階が20.06坪の賃貸オフィスビルです。床は3WAYとなっております。空調は個別空調で、エレベーターは1基あります。複数路線利用可能な、アクセスの良い台東区西浅草の貸事務所です。
-
物件情報
-
設備情報
- トイレ
- 室外
- 床
- 3WAY
- 空調
- 個別空調
- セキュリティ
- -
- 駐車場
- 無
- 会議室
- -
- エレベーター
- 1基
- 天井高
- -
-
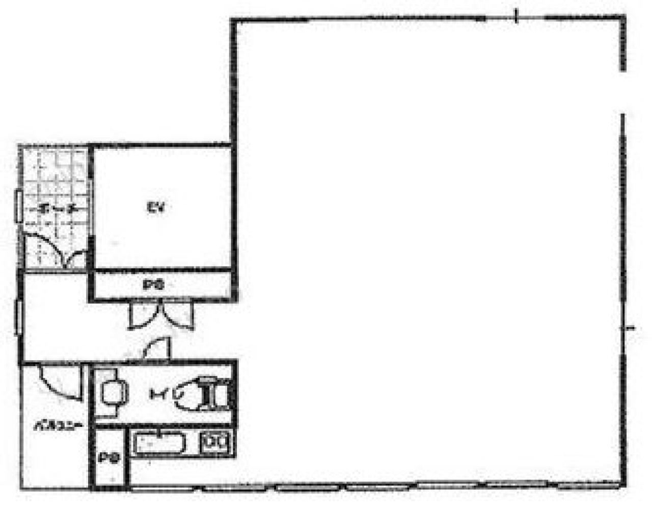
間取り図
-
近隣相場情報
西浅草2丁目(20~30坪)の相場
15952 円 (坪)
※ビルサク調べ
周辺地図
浅草SPビル(旧:志村ビル)は、台東区西浅草にある貸事務所物件です。最寄り駅は、つくばエクスプレス、東京メトロ銀座線、都営浅草線の浅草駅、東京メトロ日比谷線の入谷駅、東京メトロ銀座線の田原町駅、稲荷町駅です。1992年竣工で、基準階が20.06坪の賃貸オフィスビルです。床は3WAYとなっております。空調は個別空調で、エレベーターは1基あります。複数路線利用可能な、アクセスの良い台東区西浅草の貸事務所です。
全フロア情報
更新日:2026年3月6日
| 階 | 面積 | 賃料 | 共益費 | 敷金 | 入居日 | お問合せ | お気に入り | |
|---|---|---|---|---|---|---|---|---|
| 1-2F |
30.55 坪 100.99 ㎡ |
※現在空室情報はございません |
※現在空室情報は 確認する |
|||||
| 3F |
20.06 坪 66.31 ㎡ |
※現在空室情報はございません |
※現在空室情報は 確認する |
|||||
| 4F |
20.06 坪 66.31 ㎡ |
※現在空室情報はございません |
※現在空室情報は 確認する |
|||||
| 5F |
20.06 坪 66.31 ㎡ |
320,000 円 15,952 円(坪) |
相談 |
1,600,000 円 5 ヶ月 |
即日 |
|
|
|
| 6F |
19.39 坪 64.1 ㎡ |
※現在空室情報はございません |
※現在空室情報は 確認する |
|||||
| 7F |
20.06 坪 66.31 ㎡ |
※現在空室情報はございません |
※現在空室情報は 確認する |
|||||
| 8F |
20.06 坪 66.31 ㎡ |
※現在空室情報はございません |
※現在空室情報は 確認する |
|||||
お問い合わせ
似た条件の物件はこちら
-
岡安ビル
東京都台東区蔵前3-12-8
坪数:23.86 坪
坪単価:11,000 円(坪)
-
大島屋浅草橋ビル
東京都台東区柳橋1-13-5
坪数:16 坪
坪単価:15,625 円(坪)
-
大手山ビル
東京都台東区柳橋1-7-7
坪数:15.70 坪
坪単価:10,000 円(坪)
-
原田ビル
東京都台東区浅草橋5-9-7
坪数:19.63 坪
坪単価:9,424 円(坪)
-
プルミエⅠ
東京都台東区柳橋2-18-13
坪数:21.24 坪
坪単価:12,712 円(坪)
-
浅草橋STビル
東京都台東区浅草橋1-13-6
坪数:21.25 坪
坪単価:9,500 円(坪)
-
ラッキー浅草橋ビル
東京都台東区浅草橋5-27-11
坪数:18.05 坪
坪単価:5,769 円(坪)
-
サンポービル
東京都台東区元浅草1-19-9
坪数:23.88 坪
坪単価:9,000 円(坪)
-
松田ビル
東京都台東区浅草橋4-10-2
坪数:17.3 坪
坪単価:8,092 円(坪)
-
鈴武浅草橋駅前ビル
東京都台東区浅草橋1-11-5
坪数:23.53 坪
坪単価:13,000 円(坪)