山田コートビレジ(物件No:83909316)
山田コートビレジは、渋谷区代々木にある地上3階建ての貸店舗事務所です。最寄駅は小田急小田原線の参宮橋駅から徒歩2分、小田急小田原線の南新宿駅から徒歩9分です。1991年4月竣工の鉄筋コンクリート造です。設備としては、トイレは室内です。空調は個別空調です。耐震設計となっている、最寄駅から近くて便利な渋谷区代々木の貸店舗事務所です。
| 階 | 面積 | 賃料 | 共益費 | 敷金 | 入居日 | お問合せ | お気に入り | |
|---|---|---|---|---|---|---|---|---|
|
1F
(102区画) |
13.94 坪 46.08 ㎡ |
※現在空室情報はございません |
※現在空室情報は 確認する |
|||||
-
物件情報
-
設備情報
- トイレ
- 室内
- 床
- -
- 空調
- 個別空調
- セキュリティ
- -
- 駐車場
- -
- 会議室
- -
- エレベーター
- -
- 天井高
- -
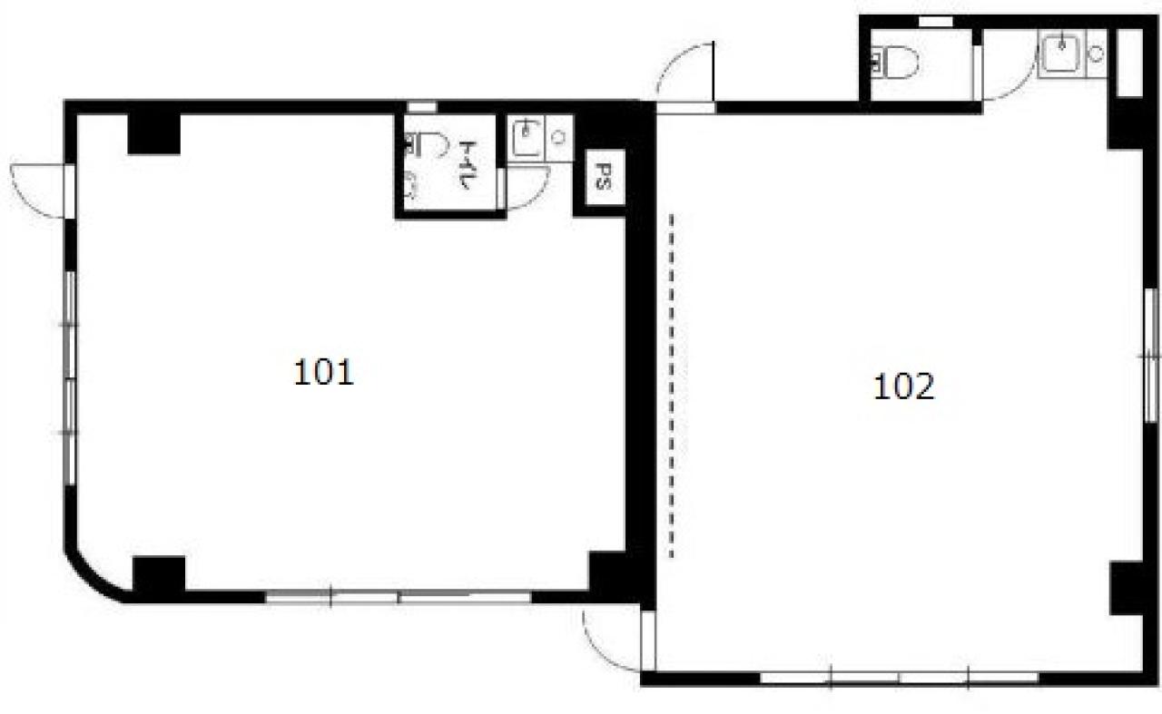
-
間取り図
-
近隣相場情報
代々木3丁目(20坪以下)の相場
14798 円 (坪)
※ビルサク調べ
周辺施設情報
| コンビニ |
ファミリーマート/山野学苑/S店/850m(徒歩11分) ローソン/ナチュラル 代々木駅西/700m(徒歩9分) |
|---|---|
| 郵便局/銀行 |
イーネット/ファミリーマート代々木二丁目北/[営業時間]0:00~24:00/1000m(徒歩13分) 三菱UFJ銀行/ATM 新宿文化クイントビル/[営業時間] [ATM]平日 7:00~23:00 土曜日 7:00~23:00 日・祝日 7:00~23:00 *毎月第2土曜日の21:00~翌朝7:00はご利用いただけません/1000m(徒歩12分) |
| 飲食店 |
喜多方ラーメン坂内 新宿パークタワー店/11時00分~21時00分/900m(徒歩12分) キノシタ/12時00分~14時30分、17時00分~20時00分/270m(徒歩4分) |
| カフェ |
UKICHI COFFEE/11時30分~18時00分/850m(徒歩12分) 代々木花カフェ/10時00分~17時00分/1100m(徒歩14分) |
| コインパーキング |
パークジャパン/代々木第12 [料金] 8:00~20:00 200円/20分 20:00~8:00 100円/30分 [最大料金] 8:00~20:00 最大料金1,700円 20:00~8:00 最大料金500円 [台数]6台 タイムズ/西参道第2 [料金] [全日]8:00~22:00 15分 220円 [全日]22:00~8:00 60分 110円 [最大料金] [全日]最大料金(繰り返し適用)駐車後24時間 最大料金2200円 [台数]19台 |
周辺地図
山田コートビレジは、渋谷区代々木にある地上3階建ての貸店舗事務所です。最寄駅は小田急小田原線の参宮橋駅から徒歩2分、小田急小田原線の南新宿駅から徒歩9分です。1991年4月竣工の鉄筋コンクリート造です。設備としては、トイレは室内です。空調は個別空調です。耐震設計となっている、最寄駅から近くて便利な渋谷区代々木の貸店舗事務所です。
全フロア情報
更新日:2025年12月9日
| 階 | 面積 | 賃料 | 共益費 | 敷金 | 入居日 | お問合せ | お気に入り | |
|---|---|---|---|---|---|---|---|---|
|
1F
(01-02区画) |
27.84 坪 92.03 ㎡ |
※現在空室情報はございません |
※現在空室情報は 確認する |
|||||
|
1F
(102区画) |
13.94 坪 46.08 ㎡ |
※現在空室情報はございません |
※現在空室情報は 確認する |
|||||
|
2F
(201区画) |
15.88 坪 52.48 ㎡ |
※現在空室情報はございません |
※現在空室情報は 確認する |
|||||
お問い合わせ
似た条件の物件はこちら
-
さくらビル
東京都渋谷区代々木1-31-15
坪数:15 坪
坪単価:15,000 円(坪)
-
三浦ビル
東京都渋谷区千駄ヶ谷1-28-4
坪数:15.56 坪
坪単価:13,496 円(坪)
-
シグマロイヤルハイツA
東京都渋谷区代々木3-5-7
坪数:10.28 坪
坪単価:10,700 円(坪)
-
ベルテ代々木Ⅱ
東京都渋谷区代々木2-21-11
坪数:17.38 坪
坪単価:20,138 円(坪)
-
御苑レジデンス
東京都渋谷区千駄ヶ谷5-5
坪数:14.99 坪
坪単価:15,010 円(坪)
-
エタニティーマンション和田第3
東京都渋谷区代々木1-4-9
坪数:17.02 坪
坪単価:15,276 円(坪)
-
代々木エアハイツビル
東京都渋谷区千駄ヶ谷5-16-10
坪数:17.98 坪
坪単価:13,901 円(坪)
-
向陽ビル
東京都渋谷区代々木1-37-8
坪数:18 坪
坪単価:13,000 円(坪)
-
原宿ニュースカイハイツアネックス
東京都渋谷区千駄ヶ谷3-52-5
坪数:13.05 坪
坪単価:19,004 円(坪)
-
メゾン代々木
東京都渋谷区代々木2-39-7
坪数:16.21 坪
坪単価:14,189 円(坪)