巣鴨桜並木通りビル(物件No:83530141)
巣鴨桜並木通りビルは、豊島区巣鴨にある地上5階建ての貸店舗事務所です。最寄駅はJR山手線の巣鴨駅から徒歩4分、東京メトロ丸ノ内線の新大塚駅から徒歩15分、都電荒川線の大塚駅前駅から徒歩8分です。1987年7月竣工の鉄骨造です。設備としては、トイレは室内です。空調は個別空調です。複数駅利用可能なアクセスの良い豊島区巣鴨の貸店舗事務所です。
| 階 | 面積 | 賃料 | 共益費 | 敷金 | 入居日 | お問合せ | お気に入り | |
|---|---|---|---|---|---|---|---|---|
|
3F
(301区画) |
17.22 坪 56.93 ㎡ |
※現在空室情報はございません |
※現在空室情報は 確認する |
|||||
| 階 | 面積 | 賃料 | 共益費 | 敷金 | 入居日 | お問合せ | お気に入り | |
|---|---|---|---|---|---|---|---|---|
|
3F
(301区画) |
17.22 坪 56.93 ㎡ |
※現在空室情報はございません |
※現在空室情報は 確認する |
|||||
-
物件情報
-
設備情報
- トイレ
- 室内男女共用
- 床
- -
- 空調
- 個別空調
- セキュリティ
- -
- 駐車場
- 無
- 会議室
- -
- エレベーター
- -
- 天井高
- -
-
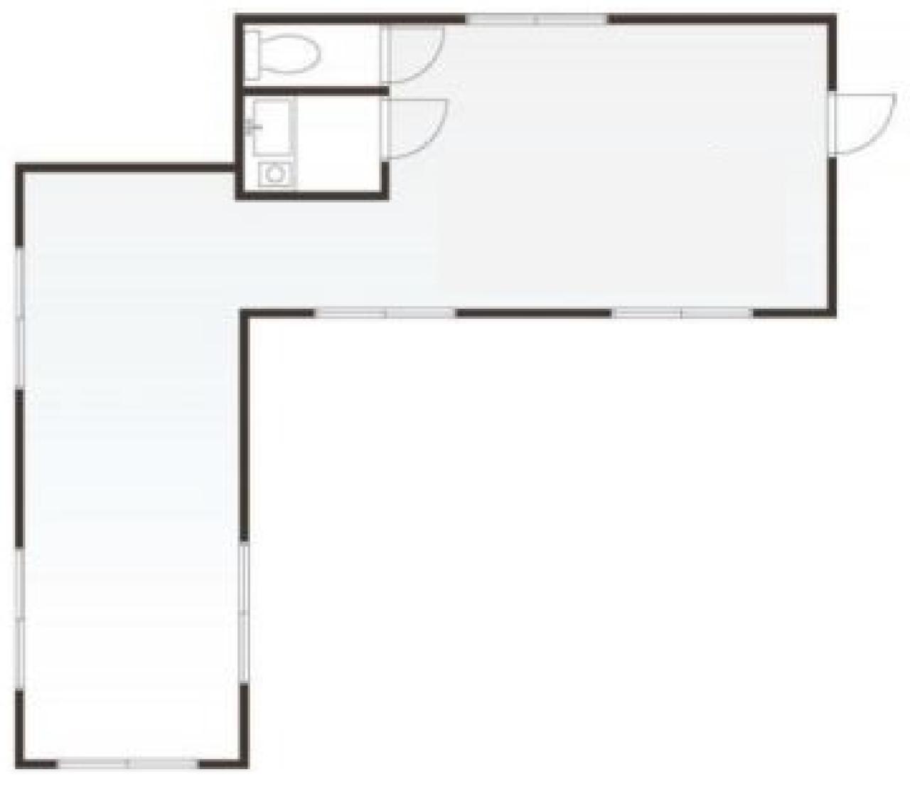
間取り図
-
近隣相場情報
巣鴨3丁目(20坪以下)の相場
11273 円 (坪)
※ビルサク調べ
周辺施設情報
| コンビニ |
ファミリーマート/巣鴨駅前店/250m(徒歩3分) ローソン/巣鴨江戸橋通/100m(徒歩1分) |
|---|---|
| 郵便局/銀行 |
ゆうちょ/ATM 本店 西友巣鴨店内出張所/[営業時間] [ATM]平日 7:00~23:00 土曜日 8:00~23:00 日曜日・休日 8:00~21:00 [駐車場]なし [取扱]ATM/500m(徒歩7分) 巣鴨信用金庫/本店営業部/500m(徒歩7分) |
| 飲食店 |
上海料理 大吉縁/11時30分~14時30分、17時00分~21時00分/34m(徒歩1分) りょう/17時30分~23時00分/110m(徒歩1分) |
| カフェ |
ア・ラ・カンパーニュ/巣鴨店/[営業時間]11:00~22:00(LOフード20:00 / ドリンク21:00) [備考]38席/400m(徒歩6分) タリーズ/アトレヴィ巣鴨店/[営業時間]月曜日 10:00~22:00 火曜日 10:00~22:00 水曜日 10:00~22:00 木曜日 10:00~22:00 金曜日 10:00~22:00 土曜日 10:00~21:00 日曜日 10:00~21:00 [備考]Tully's Wi-Fi/禁煙/450m(徒歩6分) |
| コインパーキング |
SANパーク/巣鴨 5 [料金] オールタイム20分200円 [最大料金] 24時間以内1600円 夜間最大(20時~8時)500円 [台数]車:3台 タイムズ/巣鴨3丁目第2 [料金] [全日]8:00~19:00 20分 220円 [全日]19:00~8:00 60分 110円 [最大料金] [全日]最大料金(繰り返し適用)8:00~19:00 最大料金1500円 [全日]19:00~8:00 最大料金400円 [台数]9台 |
周辺地図
巣鴨桜並木通りビルは、豊島区巣鴨にある地上5階建ての貸店舗事務所です。最寄駅はJR山手線の巣鴨駅から徒歩4分、東京メトロ丸ノ内線の新大塚駅から徒歩15分、都電荒川線の大塚駅前駅から徒歩8分です。1987年7月竣工の鉄骨造です。設備としては、トイレは室内です。空調は個別空調です。複数駅利用可能なアクセスの良い豊島区巣鴨の貸店舗事務所です。
全フロア情報
更新日:2026年2月13日
| 階 | 面積 | 賃料 | 共益費 | 敷金 | 入居日 | お問合せ | お気に入り | |
|---|---|---|---|---|---|---|---|---|
|
3F
(301区画) |
17.22 坪 56.93 ㎡ |
※現在空室情報はございません |
※現在空室情報は 確認する |
|||||
|
4F
(401区画) |
19.28 坪 63.74 ㎡ |
250,000 円 12,967 円(坪) |
込 |
1,000,000 円 4 ヶ月 |
即日 |
|
|
|
お問い合わせ
似た条件の物件はこちら
-
中島第3ビル
東京都豊島区南大塚3-46-5
坪数:18.45 坪
坪単価:9,756 円(坪)
-
ザ・スカイタワー
東京都豊島区巣鴨1-11-5
坪数:17.34 坪
坪単価:11,541 円(坪)
-
コーポ大塚台
東京都豊島区南大塚3-38-10
坪数:14.97 坪
坪単価:11,356 円(坪)
-
白石ビル
東京都豊島区巣鴨1-48-3
坪数:21.29 坪
坪単価:6,811 円(坪)
-
スクウェア新大塚
東京都豊島区南大塚2-11-13
坪数:14.18 坪
坪単価:11,283 円(坪)
-
ライフ・キャッスル
東京都豊島区南大塚2-16-4
坪数:15.19 坪
坪単価:9,217 円(坪)
-
KMビル
東京都豊島区巣鴨1-27-5
坪数:21.18 坪
坪単価:11,804 円(坪)
-
六興ビル
東京都豊島区駒込2-3-1
坪数:21.5 坪
坪単価:10,000 円(坪)
-
大塚キャリアビル
東京都豊島区北大塚2-17-4
坪数:17.9 坪
坪単価:11,173 円(坪)
-
アーバングリーン
東京都豊島区南大塚2-35-10
坪数:20.81 坪
坪単価:16,098 円(坪)