AZABUDAI1918ビル(物件No:83207882)
AZABUDAI1918ビルは、東京都港区麻布台にある地上5階建ての賃貸事務所です。最寄駅は東京メトロ日比谷線の神谷町駅から徒歩6分、東京メトロ南北線の六本木一丁目駅から徒歩11分、都営大江戸線の赤羽橋駅から徒歩8分です。1986年7月竣工の鉄筋コンクリート造です。設備としては、エレベーターが1基あり、セキュリティは機械警備です。トイレは室内男女別です。空調は個別空調です。床仕様はフローリングです。天高は2450mmです。耐震設計となっている、複数駅利用可能なアクセスの良い東京都港区麻布台の賃貸オフィスです。
-
物件情報
-
設備情報
- トイレ
- 室内男女別
- 床
- -
- 空調
- 個別空調
- セキュリティ
- 有
- 駐車場
- 無
- 会議室
- -
- エレベーター
- 1基
- 天井高
- 2450mm
-
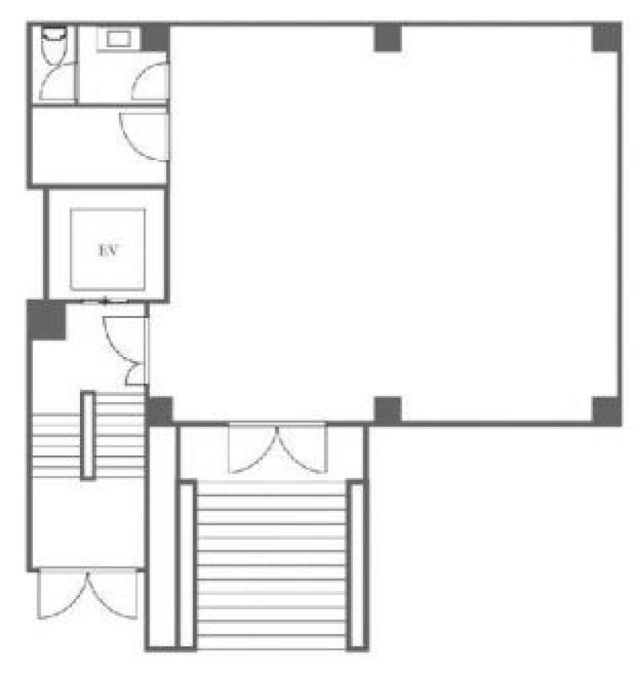
間取り図
-
近隣相場情報
麻布台1丁目(20~30坪)の相場
13000 円 (坪)
※ビルサク調べ
周辺施設情報
| コンビニ |
セブンイレブン/港区飯倉/78m(徒歩1分) ローソン/芝公園四丁目/290m(徒歩3分) |
|---|---|
| 郵便局/銀行 |
セブン銀行/港区飯倉店/[営業時間]24時間営業 [ATM台数]1/20m(徒歩1分) ローソン銀行/ローソン 芝公園四丁目共同出張所/[営業時間]8:00~20:00 [取扱]海外発行カード対応、視覚障害者対応 [備考]ご利用可能な金融機関 当店のATM管理はローソン銀行です/290m(徒歩3分) |
| 飲食店 |
ミンスクの台所/ディナー 17:00~22:30(L.O.22:00)/36m(徒歩1分) 内埜勝覚/11時30分~19時00分/160m(徒歩2分) |
| カフェ |
スターバックス/TSUTAYA 神谷町駅前店/[営業時間]07:00~23:00 [休業日]不定休 [備考]無線LAN:STARBUCKS/docomo/FLET’S(東)/Softbank/au/Wi2 300/450m(徒歩6分) 猿田彦珈琲/神谷町オレンジ店/[営業時間]平日/8:00~19:00/230m(徒歩3分) |
| コインパーキング |
三井のリパーク/麻布台1丁目第5 [料金] 全日 08:00~00:00 15分/400円 全日 00:00~08:00 60分/100円 [最大料金] 【全日】0:00~8:00以内 最大料金500円 【全日】8:00~0:00以内 最大料金3600円 [台数]6 ユアー・パーキング/麻布台第1 [料金] 【全日】 08時~20時 30分/400円 【全日】 20時~08時 60分/100円 [最大料金] 昼間最大(08時~20時の間)3,800円 夜間最大(20時~08時の間)400円 [台数]2 |
周辺地図
AZABUDAI1918ビルは、東京都港区麻布台にある地上5階建ての賃貸事務所です。最寄駅は東京メトロ日比谷線の神谷町駅から徒歩6分、東京メトロ南北線の六本木一丁目駅から徒歩11分、都営大江戸線の赤羽橋駅から徒歩8分です。1986年7月竣工の鉄筋コンクリート造です。設備としては、エレベーターが1基あり、セキュリティは機械警備です。トイレは室内男女別です。空調は個別空調です。床仕様はフローリングです。天高は2450mmです。耐震設計となっている、複数駅利用可能なアクセスの良い東京都港区麻布台の賃貸オフィスです。
全フロア情報
更新日:2026年3月6日
| 階 | 面積 | 賃料 | 共益費 | 敷金 | 入居日 | お問合せ | お気に入り | |
|---|---|---|---|---|---|---|---|---|
| 1F |
27.87 坪 92.13 ㎡ |
※現在空室情報はございません |
※現在空室情報は 確認する |
|||||
| 1-5F |
122.3 坪 404.3 ㎡ |
※現在空室情報はございません |
※現在空室情報は 確認する |
|||||
| 2F |
29.25 坪 96.69 ㎡ |
※現在空室情報はございません |
※現在空室情報は 確認する |
|||||
| 3F |
29.25 坪 96.69 ㎡ |
※現在空室情報はございません |
※現在空室情報は 確認する |
|||||
| 4-5F |
35.92 坪 118.74 ㎡ |
※現在空室情報はございません |
※現在空室情報は 確認する |
|||||
お問い合わせ
似た条件の物件はこちら
-
センチュリオン六本木タワーⅡ
東京都港区西麻布3-6-1
坪数:21.76 坪
坪単価:20,000 円(坪)
-
サイビルディング
東京都港区西麻布3-1-22
坪数:34.87 坪
坪単価:20,935 円(坪)
-
麻布エンパイアマンション
東京都港区西麻布4-11-28
坪数:17.61 坪
坪単価:12,803 円(坪)
-
六本木メイフラワーハイツ
東京都港区六本木4-1-2
坪数:25 坪
坪単価:30,000 円(坪)
-
NS麻布十番ビル
東京都港区麻布十番3-6-2
坪数:35.01 坪
坪単価:22,000 円(坪)
-
レ・フルール西麻布
東京都港区西麻布1-4-35
坪数:28.3 坪
坪単価:15,194 円(坪)
-
飯倉カムフィーホームズ
東京都港区麻布台3-4-4
坪数:19.03 坪
坪単価:11,000 円(坪)
-
井門西麻布ビル
東京都港区西麻布1-14-1
坪数:35.2 坪
坪単価:15,000 円(坪)
-
ランドコム麻布台
東京都港区麻布台1-9-14
坪数:23.49 坪
坪単価:13,000 円(坪)
-
秀和六本木レジデンス
東京都港区六本木7-17-22
坪数:18.14 坪
坪単価:16,262 円(坪)