東3丁目ビル(物件No:83043597)
東3丁目ビルは、渋谷区東にある地上4階建ての貸店舗事務所です。最寄駅はJR線の恵比寿駅から徒歩6分、東京メトロ日比谷線の恵比寿駅から徒歩6分です。1968年3月竣工の鉄筋コンクリート造です。コンビニや飲食店などの周辺施設が充実した渋谷区東の貸店舗事務所です。
-
物件情報
-
設備情報
- トイレ
- -
- 床
- -
- 空調
- -
- セキュリティ
- -
- 駐車場
- -
- 会議室
- -
- エレベーター
- -
- 天井高
- -
-
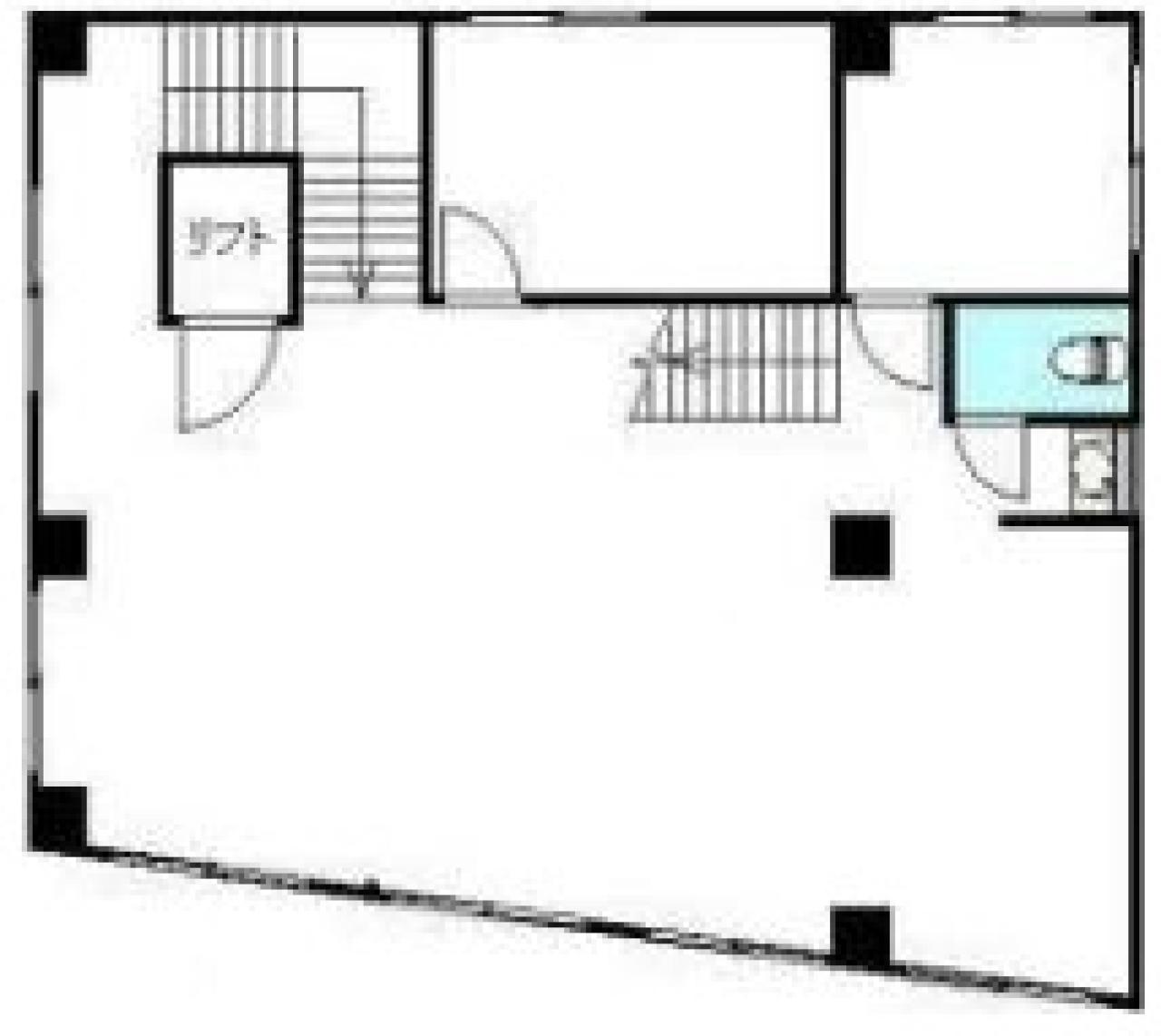
間取り図
-
近隣相場情報
東3丁目(20~30坪)の相場
21995 円 (坪)
※ビルサク調べ
周辺施設情報
| コンビニ |
ファミリーマート/渋谷東二丁目店/300m(徒歩4分) ローソン/渋谷東三丁目/500m(徒歩6分) |
|---|---|
| 郵便局/銀行 |
さわやか信用金庫/恵比寿駅前支店/300m(徒歩4分) イオン銀行/ATM ミニストップ広尾1丁目店出張所/[営業時間]24時間/800m(徒歩10分) |
| 飲食店 |
ベリータ 東店/11時30分~14時00分、17時00分~21時30分/240m(徒歩3分) 魚竹/11時45分~14時30分、17時00分~23時00分/450m(徒歩6分) |
| カフェ |
ドトール/恵比寿東店/[営業時間]平日 6:00~20:00 土曜 6:30~20:00 日祝 7:00~19:00 [備考]総席数:20(禁煙席:20 喫煙席:0)/喫煙ブース(紙・加熱)/550m(徒歩7分) Dining House とし(喫茶室とし』/10時00分~0時00分/700m(徒歩9分) |
| コインパーキング |
タイムズ/渋谷東3丁目 [料金] [全日]通常料金 0:00~0:00 20分 220円 [最大料金] [全日]最大料金(繰り返し適用)駐車後24時間 最大料金2420円 [全日]19:00~8:00 最大料金660円 [台数]5台 エコロパーク/恵比寿第14 [料金] 全日 終日 12分300円 [最大料金] 全日 4時間 最大1800円 [台数]2 |
周辺地図
東3丁目ビルは、渋谷区東にある地上4階建ての貸店舗事務所です。最寄駅はJR線の恵比寿駅から徒歩6分、東京メトロ日比谷線の恵比寿駅から徒歩6分です。1968年3月竣工の鉄筋コンクリート造です。コンビニや飲食店などの周辺施設が充実した渋谷区東の貸店舗事務所です。
全フロア情報
更新日:2021年6月10日
| 階 | 面積 | 賃料 | 共益費 | 敷金 | 入居日 | お問合せ | お気に入り | |
|---|---|---|---|---|---|---|---|---|
| 1F |
24.71 坪 81.69 ㎡ |
※現在空室情報はございません |
※現在空室情報は 確認する |
|||||
| 1-4F |
94.96 坪 313.92 ㎡ |
※現在空室情報はございません |
※現在空室情報は 確認する |
|||||
| 2F |
22.11 坪 73.09 ㎡ |
※現在空室情報はございません |
※現在空室情報は 確認する |
|||||
| 3F |
22.11 坪 73.09 ㎡ |
※現在空室情報はございません |
※現在空室情報は 確認する |
|||||
| 4F |
26.01 坪 85.98 ㎡ |
※現在空室情報はございません |
※現在空室情報は 確認する |
|||||
お問い合わせ
似た条件の物件はこちら
-
エトワールUビル
東京都渋谷区渋谷3-13-9
坪数:23.68 坪
坪単価:17,249 円(坪)
-
ルート神南ビル
東京都渋谷区神南1-5-13
坪数:31.78 坪
坪単価:25,000 円(坪)
-
ビラ・ビアンカ
東京都渋谷区神宮前2-33-12
坪数:18.79 坪
坪単価:16,450 円(坪)
-
渋谷3丁目ビル
東京都渋谷区渋谷3-18-4
坪数:17.43 坪
坪単価:26,000 円(坪)
-
シャトレー渋谷
東京都渋谷区東2-20-13
坪数:31.04 坪
坪単価:20,006 円(坪)
-
第一暁ビルディング
東京都渋谷区道玄坂1-19-9
坪数:24.14 坪
坪単価:20,713 円(坪)
-
三貴ビル
東京都渋谷区渋谷2-12-12
坪数:18.7 坪
坪単価:24,000 円(坪)
-
ベリータ
東京都渋谷区東3-12-13
坪数:31.67 坪
坪単価:20,500 円(坪)
-
倉島渋谷ビル
東京都渋谷区渋谷2-3-8
坪数:20.53 坪
坪単価:18,000 円(坪)
-
アクシーズ7号館ビル
東京都渋谷区渋谷3-17-4
坪数:18 坪
坪単価:20,000 円(坪)