N AOYAMA(物件No:82884982)
N AOYAMAは、港区南青山にある地上5階建ての賃貸事務所です。最寄駅は東京メトロ銀座線の表参道駅から徒歩12分、東京メトロ日比谷線の広尾駅から徒歩14分です。2000年6月竣工の鉄筋コンクリート造です。設備としては、駐車場があります。床仕様はスケルトンです。天高は3000mmです。耐震設計となっている、ビジネス街として人気のある港区南青山の賃貸オフィスです。
-
物件情報
-
設備情報
- トイレ
- -
- 床
- スケルトン
- 空調
- -
- セキュリティ
- -
- 駐車場
- 有
- 会議室
- -
- エレベーター
- 0基
- 天井高
- 3150mm
-
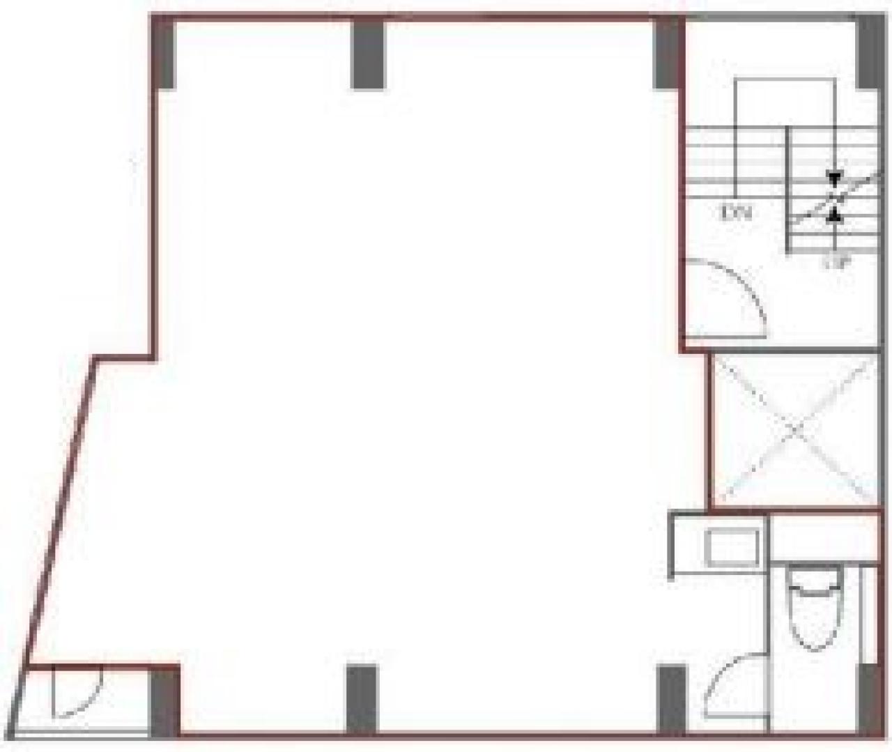
間取り図
-
近隣相場情報
南青山7丁目(20坪以下)の相場
調査中
周辺施設情報
| コンビニ |
ファミリーマート/西麻布霞町店/700m(徒歩9分) ローソン/青山骨董通/750m(徒歩10分) |
|---|---|
| 郵便局/銀行 |
みずほ銀行/ATM ミニストップ南青山6丁目店出張所/[営業時間] [ATM]平日 0:00~24:00 土曜日 0:00~22:00 日曜日 8:00~24:00 祝日・振替休日 曜日に準ずる 備考 通帳繰越機 設置なし/300m(徒歩5分) 三井住友銀行/麻布支店/[営業時間] [窓口]平日 9:00~15:00 土曜 - 日曜 - [ATM]平日 7:00~24:00 土曜 7:00~24:00 日曜 7:00~21:00/600m(徒歩7分) |
| 飲食店 |
虎萬元 南青山店/11時30分~15時30分、17時30分~22時00分/78m(徒歩1分) 一汁三菜/[月~金]12:00~14:30(L.O)、18:00~21:30(L.O)/220m(徒歩3分) |
| カフェ |
丸作 広尾店/12時00分~20時00分/700m(徒歩8分) 28CafE南青山/11:00~18:00 /400m(徒歩5分) |
| コインパーキング |
タイムズ駐車場/南青山7丁目第3 [料金] [月~土]通常料金 / 07:00-19:00 20分 400円 19:00-07:00 120分 100円 [日・祝]通常料金 / 07:00-19:00 60分 200円 19:00-07:00 120分 100円 [最大料金] [月~土]駐車後6時間 最大料金2800円 [日・祝]駐車後6時間 最大料金2800円 [台数]4 ナビパーク/渋谷第2 [料金] 全曜日 24:00~24:00 15分/400円 [最大料金] オールタイム 当日最大(日・祝)2,600円 夜間最大(全曜日)18:00~8:00 600円 繰返し有 [台数]5台 |
周辺地図
N AOYAMAは、港区南青山にある地上5階建ての賃貸事務所です。最寄駅は東京メトロ銀座線の表参道駅から徒歩12分、東京メトロ日比谷線の広尾駅から徒歩14分です。2000年6月竣工の鉄筋コンクリート造です。設備としては、駐車場があります。床仕様はスケルトンです。天高は3000mmです。耐震設計となっている、ビジネス街として人気のある港区南青山の賃貸オフィスです。
全フロア情報
更新日:2026年3月6日
| 階 | 面積 | 賃料 | 共益費 | 敷金 | 入居日 | お問合せ | お気に入り | |
|---|---|---|---|---|---|---|---|---|
| 2F |
15.15 坪 50.08 ㎡ |
※現在空室情報はございません |
※現在空室情報は 確認する |
|||||
お問い合わせ
似た条件の物件はこちら
-
メゾン青山
東京都港区北青山2-7-26
坪数:18.75 坪
坪単価:20,267 円(坪)
-
たつむら青山マンション(青南吉川興産ビル)
東京都港区南青山5-4-35
坪数:11.4 坪
坪単価:19,298 円(坪)
-
青山アレー
東京都港区南青山6-4-6
坪数:16.2 坪
坪単価:26,543 円(坪)
-
南青山ユニハイツ
東京都港区南青山6-12-3
坪数:18.31 坪
坪単価:18,569 円(坪)
-
ティアック青山
東京都港区北青山3-10-21
坪数:16.52 坪
坪単価:22,397 円(坪)
-
リーラ乃木坂
東京都港区南青山1-15-18
坪数:17.2 坪
坪単価:18,000 円(坪)
-
クレアトゥール南青山
東京都港区南青山3-8-7
坪数:13.59 坪
坪単価:16,924 円(坪)
-
南青山セピアコート
東京都港区南青山6-8-3
坪数:18.09 坪
坪単価:21,006 円(坪)
-
シグマ南青山ビル
東京都港区南青山2-11-14
坪数:14.16 坪
坪単価:40,000 円(坪)
-
美松ビル
東京都港区南青山1-4-17
坪数:18.91 坪
坪単価:20,624 円(坪)