ヒルメゾンシブヤ(物件No:82765075)
ヒルメゾンシブヤは渋谷区桜丘町にある地下1階、地上5階建ての賃貸事務所です。最寄駅は東急田園都市線の渋谷駅から徒歩5分、JR線の渋谷駅から徒歩6分です。1988年9月竣工の鉄筋コンクリート造です。設備としては、エレベーターが1基あります。トイレは室内男女別です。空調は個別空調です。耐震設計となっている、ビジネス街として人気のある渋谷区桜丘町の賃貸オフィスです。
| 階 | 面積 | 賃料 | 共益費 | 敷金 | 入居日 | お問合せ | お気に入り |
|---|---|---|---|---|---|---|---|
|
1F
(105区画) |
13.39 坪 44.28 ㎡ |
180,000 円 13,443 円(坪) |
無 |
540,000 円 3 ヶ月 |
2026/5 |
|
|
| 階 | 面積 | 賃料 | 共益費 | 敷金 | 入居日 | お問合せ | お気に入り |
|---|---|---|---|---|---|---|---|
|
1F
(105区画) |
13.39 坪 44.28 ㎡ |
180,000 円 13,443 円(坪) |
無 |
540,000 円 3 ヶ月 |
2026/5 |
|
|
-
物件情報
-
設備情報
- トイレ
- 室内男女共用
- 床
- タイルカーペット
- 空調
- 個別空調
- セキュリティ
- -
- 駐車場
- -
- 会議室
- -
- エレベーター
- 1基
- 天井高
- -
-
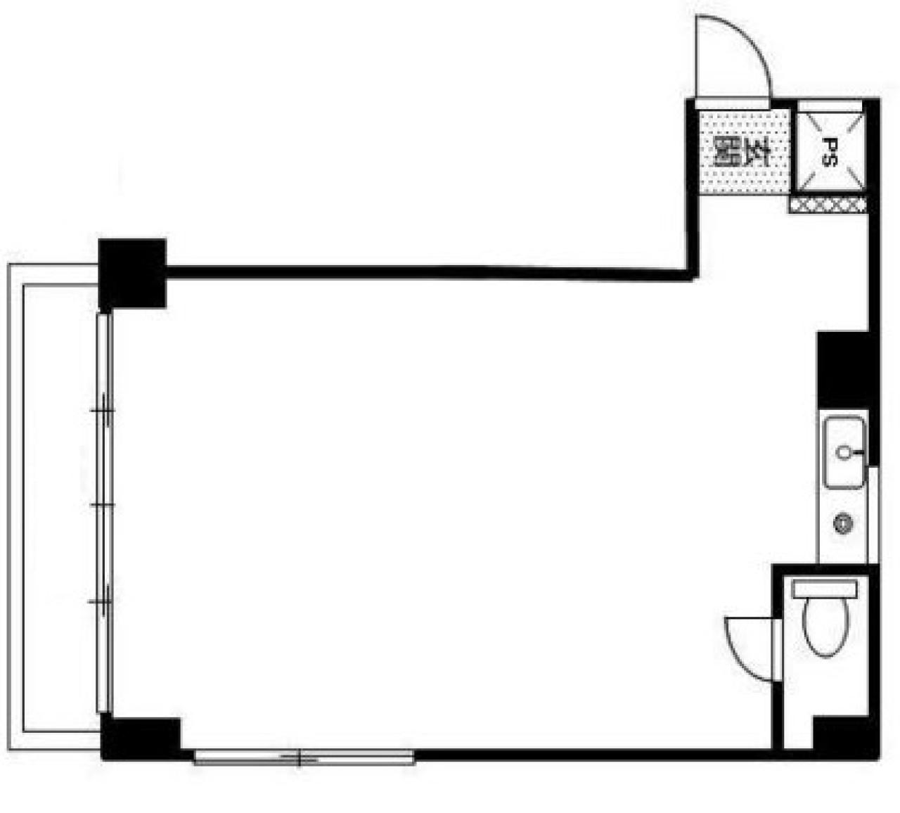
間取り図
-
近隣相場情報
桜丘町22丁目(20坪以下)の相場
17938 円 (坪)
※ビルサク調べ
周辺施設情報
| コンビニ |
セブンイレブン/渋谷セルリアンタワー/400m(徒歩5分) ローソン/渋谷桜丘町南/200m(徒歩3分) |
|---|---|
| 郵便局/銀行 |
三井住友銀行/ATM 代官山町出張所/[営業時間] [ATM]平日 7:00~24:00 土曜 7:00~24:00 日曜 7:00~21:00/550m(徒歩7分) イオン銀行/ATM マルエツプチ渋谷神泉店出張所/[営業時間]24時間/850m(徒歩11分) |
| 飲食店 |
やむなし/17時00分~23時00分/300m(徒歩4分) BAR 夜行-BAR YAKOH-/18時00分~3時00分/350m(徒歩5分) |
| カフェ |
桜丘カフェ/11時00分~21時00分/200m(徒歩3分) カフェドクリエ/グラン 渋谷桜丘スクエア店/[営業時間]【平日】7:00~21:00【土日祝】(土)7:00~20:00(日/祝)8:00~20:00 [備考]喫煙可能室あり/350m(徒歩5分) |
| コインパーキング |
タイムズ/桜丘町第4 [料金] [月~土]通常料金 / 0:00~0:00 12分 330円 [日・祝]通常料金 / 0:00~0:00 12分 330円 [最大料金] [月~土]9:00~19:00 最大料金3520円 19:00~9:00 最大料金660円 [日・祝]9:00~19:00 最大料金1980円 19:00~9:00 最大料金660円 [台数]11 三井のリパーク/渋谷鶯谷町第2 [料金] 全日 00:00~24:00 15分/400円 [最大料金] 【全日】最大料金入庫後3時間以内2500円 [台数]4 |
周辺地図
ヒルメゾンシブヤは渋谷区桜丘町にある地下1階、地上5階建ての賃貸事務所です。最寄駅は東急田園都市線の渋谷駅から徒歩5分、JR線の渋谷駅から徒歩6分です。1988年9月竣工の鉄筋コンクリート造です。設備としては、エレベーターが1基あります。トイレは室内男女別です。空調は個別空調です。耐震設計となっている、ビジネス街として人気のある渋谷区桜丘町の賃貸オフィスです。
全フロア情報
更新日:2026年4月2日
| 階 | 面積 | 賃料 | 共益費 | 敷金 | 入居日 | お問合せ | お気に入り | |
|---|---|---|---|---|---|---|---|---|
|
1F
(105区画) |
13.39 坪 44.28 ㎡ |
180,000 円 13,443 円(坪) |
無 |
540,000 円 3 ヶ月 |
2026/5 |
|
|
|
|
2F
(205区画) |
13.39 坪 44.28 ㎡ |
※現在空室情報はございません |
※現在空室情報は 確認する |
|||||
|
3F
(303区画) |
11.71 坪 38.7 ㎡ |
※現在空室情報はございません |
※現在空室情報は 確認する |
|||||
|
4F
(403区画) |
28.59 坪 94.5 ㎡ |
※現在空室情報はございません |
※現在空室情報は 確認する |
|||||
お問い合わせ
似た条件の物件はこちら
-
フタミビル
東京都渋谷区神宮前2-16-9
坪数:12.1 坪
坪単価:14,876 円(坪)
-
ビラ・モデルナ
東京都渋谷区渋谷1-3-18
坪数:10.58 坪
坪単価:22,212 円(坪)
-
三貴ビル
東京都渋谷区渋谷2-12-12
坪数:13.8 坪
坪単価:22,000 円(坪)
-
フォーラム神宮前
東京都渋谷区神宮前4-6-2
坪数:13.16 坪
坪単価:22,796 円(坪)
-
アクシーズ7号館ビル
東京都渋谷区渋谷3-17-4
坪数:18 坪
坪単価:20,000 円(坪)
-
秀和外苑レジデンス
東京都渋谷区神宮前2-6-6
坪数:11 坪
坪単価:21,818 円(坪)
-
若葉ビル
東京都渋谷区道玄坂1-22-10
坪数:16.1 坪
坪単価:15,300 円(坪)
-
浜之上ビル
東京都渋谷区道玄坂2-7-4
坪数:15 坪
坪単価:24,267 円(坪)
-
渋谷フラットビル
東京都渋谷区渋谷1-24-7
坪数:13.57 坪
坪単価:29,035 円(坪)
-
日興パレス外苑
東京都渋谷区神宮前2-13-7
坪数:12.3 坪
坪単価:14,634 円(坪)